Apartamento T3 para Venda em Tavarede
229.000 €
Tipo
Apartamento
Negócio
Venda
Ano de Construção
1979
Quartos
3
Casas de Banho
2
Área Bruta
91 m²
Área Útil
91 m²
Condição
Usado
Certificado Energético
E
Área do Terreno
91 m²
Apartamento T3 Remodelado em Tavarede, Coimbra
Apartamento T3 localizado em Tavarede, Figueira da Foz, atualmente em fase final de acabamentos, resultado de uma remodelação profunda e integral executada de raiz.
Este não é apenas mais um apartamento renovado é um imóvel pensado para oferecer tranquilidade, eficiência e durabilidade a longo prazo.
Todas as infraestruturas foram completamente substituídas: eletricidade, canalizações, esgotos e telecomunicações. Um fator decisivo para quem quer comprar com segurança e evitar surpresas futuras.
PRINCIPAIS CARACTERÍSTICAS
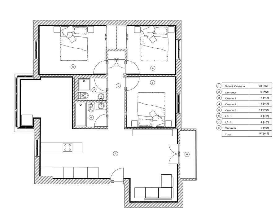
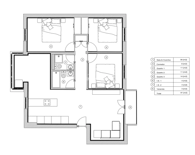
Sala e cozinha em open space com ilha central
Cozinha equipada com placa de indução, exaustor de ilha, forno, micro-ondas e termoacumulador Haier Slim 80L
Três quartos amplos e bem distribuídos
Duas casas de banho completas
Varanda com boa exposição solar
CONFORTO E TECNOLOGIA
Caixilharia em PVC Classe A+ com vidro duplo e estores térmicos elétricos
Isolamento térmico e acústico reforçado
Iluminação LED embutida em todo o apartamento
Pré-instalação de ar condicionado em todas as divisões principais
Pré-instalação para carregamento de veículo elétrico
Sensores magnéticos em portas e janelas (preparado para alarme e domótica)
Cablagem oculta com múltiplas opções para TV
Inclui ainda manual técnico com fotografias da obra, garantindo total transparência sobre o que foi executado um diferencial raro no mercado.
SOBRE O EDIFÍCIO
Prédio tranquilo e bem cuidado
Cobertura totalmente renovada em 2025 (sem custos futuros)
Condomínio reduzido (~16/mês)
Sem elevador (menor custo de manutenção)
3.º andar com excelente luminosidade e privacidade
LOCALIZAÇÃO
Zona residencial prática e bem servida, com acesso rápido a comércio, escolas e serviços:
Lidl 11 min a pé
Mercadona 16 min a pé
Intermarché 4 min de carro
Escolas a poucos minutos
Praia de Buarcos 6 min
Centro e Casino 7 min
VALOR
229.000
Um excelente investimento para quem procura um imóvel moderno, sem necessidade de obras e preparado para o futuro.
CONCLUSÃO DA OBRA
Março de 2026
Se procura um apartamento onde tudo já foi feito e bem feito esta pode ser a oportunidade certa.
Agende já a sua visita e venha conhecer o potencial deste imóvel.
Este não é apenas mais um apartamento renovado é um imóvel pensado para oferecer tranquilidade, eficiência e durabilidade a longo prazo.
Todas as infraestruturas foram completamente substituídas: eletricidade, canalizações, esgotos e telecomunicações. Um fator decisivo para quem quer comprar com segurança e evitar surpresas futuras.
PRINCIPAIS CARACTERÍSTICAS
Sala e cozinha em open space com ilha central
Cozinha equipada com placa de indução, exaustor de ilha, forno, micro-ondas e termoacumulador Haier Slim 80L
Três quartos amplos e bem distribuídos
Duas casas de banho completas
Varanda com boa exposição solar
CONFORTO E TECNOLOGIA
Caixilharia em PVC Classe A+ com vidro duplo e estores térmicos elétricos
Isolamento térmico e acústico reforçado
Iluminação LED embutida em todo o apartamento
Pré-instalação de ar condicionado em todas as divisões principais
Pré-instalação para carregamento de veículo elétrico
Sensores magnéticos em portas e janelas (preparado para alarme e domótica)
Cablagem oculta com múltiplas opções para TV
Inclui ainda manual técnico com fotografias da obra, garantindo total transparência sobre o que foi executado um diferencial raro no mercado.
SOBRE O EDIFÍCIO
Prédio tranquilo e bem cuidado
Cobertura totalmente renovada em 2025 (sem custos futuros)
Condomínio reduzido (~16/mês)
Sem elevador (menor custo de manutenção)
3.º andar com excelente luminosidade e privacidade
LOCALIZAÇÃO
Zona residencial prática e bem servida, com acesso rápido a comércio, escolas e serviços:
Lidl 11 min a pé
Mercadona 16 min a pé
Intermarché 4 min de carro
Escolas a poucos minutos
Praia de Buarcos 6 min
Centro e Casino 7 min
VALOR
229.000
Um excelente investimento para quem procura um imóvel moderno, sem necessidade de obras e preparado para o futuro.
CONCLUSÃO DA OBRA
Março de 2026
Se procura um apartamento onde tudo já foi feito e bem feito esta pode ser a oportunidade certa.
Agende já a sua visita e venha conhecer o potencial deste imóvel.
Localização
Tavarede, Figueira da Foz, Coimbra
Informação do anúncio
ID do anúncio
1768326
Referência Externa
25022-06
Atualizado em
25/04/2026 00:43:59
Apartamento T3 para Venda em Tavarede