Apartamento T3 para Venda em Lordelo do Ouro e Massarelos
900.000 €
Tipo
Apartamento
Negócio
Venda
Ano de Construção
2026
Quartos
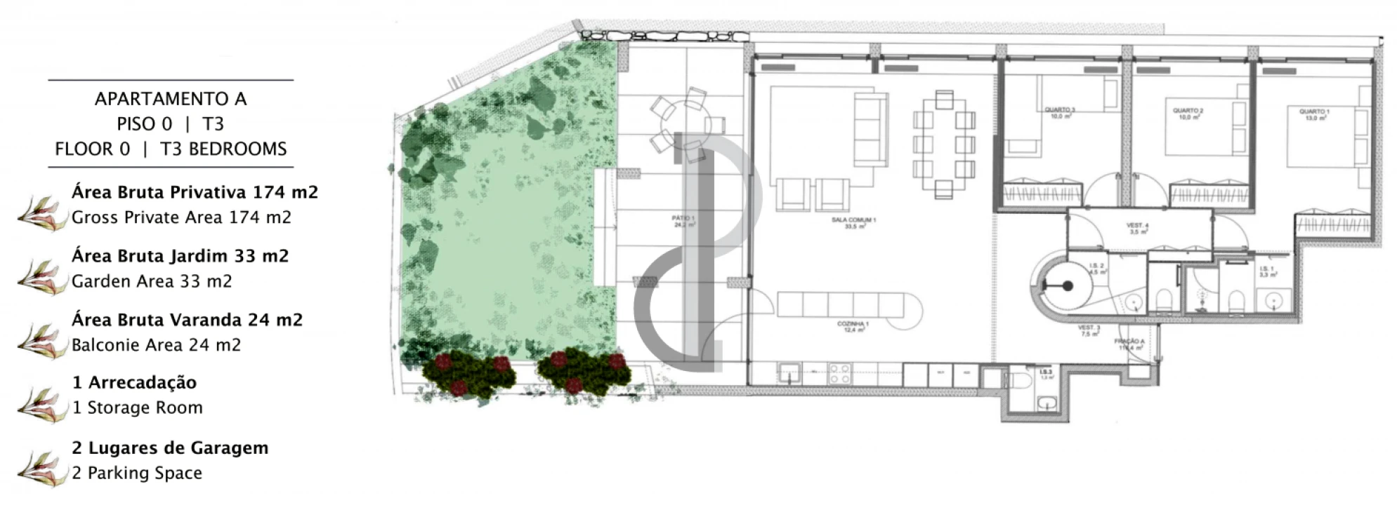
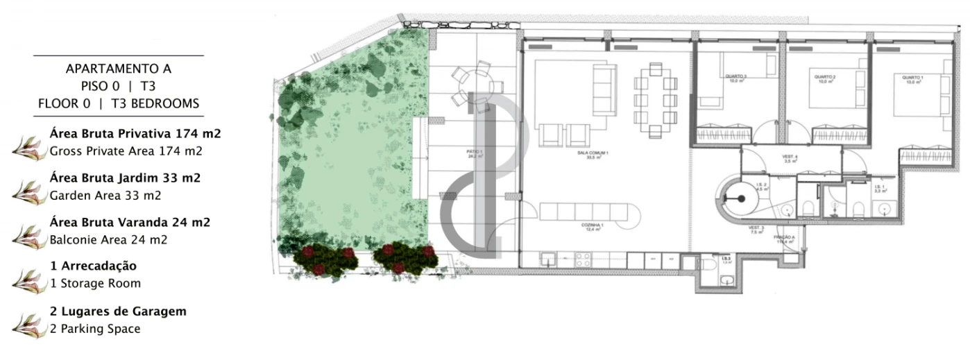
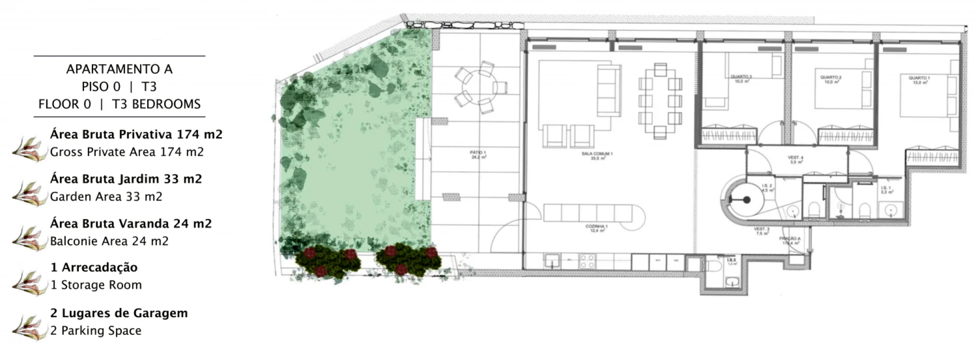
3
Área Bruta
173 m²
Área Útil
116 m²
Condição
Novo
Certificado Energético
A
Apartamento Premium T3 com jardim, ao Parque da cidade - Porto
Fração A
Sublime Apartamento T3 com jardim
Exclusividade no coração do Porto
•Empreendimento premium com apenas 6 apartamentos T2 e T3
•Unidades com varandas e terraços privativos
•Um projeto pensado para quem procura sofisticação, conforto e privacidade
Uma localização de excelência
•Situado numa das zonas mais prestigiadas do Porto
•A poucos passos de:
-Avenida da Boavista
-Parque da Cidade
-Praias do Porto
•Envolvido por uma oferta completa de:
-Colégios e universidades
-Comércio e serviços
-Transportes
Design que inspira
•Arquitetura elegante e intemporal, assinada por gabinete de referência
•Apenas 3 pisos, garantindo um ambiente exclusivo e tranquilo
•Espaços amplos e luminosos, com ligação fluida ao exterior
•Varandas e terraços que convidam a viver o melhor do indoor/outdoor
Acabamentos de excelência
•Materiais nobres e seleção criteriosa de detalhes
•Pavimentos exteriores em granito “Amarelo Real”
•Interiores com soalho de madeira natural
•Guardas em ferro pintado com design clássico e sofisticado
Cada fração inclui:
-Lugar de garagem
-Espaço de arrumação
Viver com qualidade
•A poucos minutos do mar e rodeado de natureza
•Um refúgio urbano que combina:
-Tranquilidade
-Prestígio
-Proximidade ao essencial
Ideal para quem valoriza um estilo de vida exclusivo e equilibrado
Previsão de conclusão: Final de 2026
Orientação Norte/Poente
Piso 0
2 Lugares de garagem
- Planta e tabela com imóveis disponíveis na secção de fotografias
- Fotografias 3D gerais do empreendimento
Agende já a sua visita!
Douro Project Real Estate
Sublime Apartamento T3 com jardim
Exclusividade no coração do Porto
•Empreendimento premium com apenas 6 apartamentos T2 e T3
•Unidades com varandas e terraços privativos
•Um projeto pensado para quem procura sofisticação, conforto e privacidade
Uma localização de excelência
•Situado numa das zonas mais prestigiadas do Porto
•A poucos passos de:
-Avenida da Boavista
-Parque da Cidade
-Praias do Porto
•Envolvido por uma oferta completa de:
-Colégios e universidades
-Comércio e serviços
-Transportes
Design que inspira
•Arquitetura elegante e intemporal, assinada por gabinete de referência
•Apenas 3 pisos, garantindo um ambiente exclusivo e tranquilo
•Espaços amplos e luminosos, com ligação fluida ao exterior
•Varandas e terraços que convidam a viver o melhor do indoor/outdoor
Acabamentos de excelência
•Materiais nobres e seleção criteriosa de detalhes
•Pavimentos exteriores em granito “Amarelo Real”
•Interiores com soalho de madeira natural
•Guardas em ferro pintado com design clássico e sofisticado
Cada fração inclui:
-Lugar de garagem
-Espaço de arrumação
Viver com qualidade
•A poucos minutos do mar e rodeado de natureza
•Um refúgio urbano que combina:
-Tranquilidade
-Prestígio
-Proximidade ao essencial
Ideal para quem valoriza um estilo de vida exclusivo e equilibrado
Previsão de conclusão: Final de 2026
Orientação Norte/Poente
Piso 0
2 Lugares de garagem
- Planta e tabela com imóveis disponíveis na secção de fotografias
- Fotografias 3D gerais do empreendimento
Agende já a sua visita!
Douro Project Real Estate
Localização
Lordelo do Ouro e Massarelos, Porto, Porto
Informação do anúncio
ID do anúncio
1768800
Referência Externa
DP054
Atualizado em
09/04/2026 08:35:47
Anunciante
Chamada para a rede móvel nacional
Douro Project Real Estate
AMI 26843
Referência do imóvel:
DP054
Apartamento T3 para Venda em Lordelo do Ouro e Massarelos