Voltar
Terreno para Venda em Funchal (São Pedro) Foto 1
Terreno para Venda em Funchal (São Pedro) Foto 2
Terreno para Venda em Funchal (São Pedro) Foto 3
Terreno para Venda em Funchal (São Pedro) Foto 4
Terreno para Venda em Funchal (São Pedro) Foto 5

Terreno para Venda em Funchal (São Pedro)

300.000 €

Tipo
Terreno
Negócio
Venda
Área Bruta
487 m²
Área Útil
487 m²
Condição
Não Aplicável
Certificado Energético
Não se aplica
Área do Terreno
487 m²

Terreno - Vista Mar - Achada - Funchal

Este terreno situa-se na zona da Achada, uma das melhores localizações do Funchal.
A propriedade é totalmente plana e solarenga, com classificação urbana, oferecendo condições ideais para construção.
Dispõe de uma vista mar aberta e encontra-se apenas a 1 minuto do centro do Funchal, numa zona calma que garante tranquilidade sem perder proximidade ao centro.
O terreno está pronto para construir, reunindo todas as condições necessárias para habitação unifamiliar.

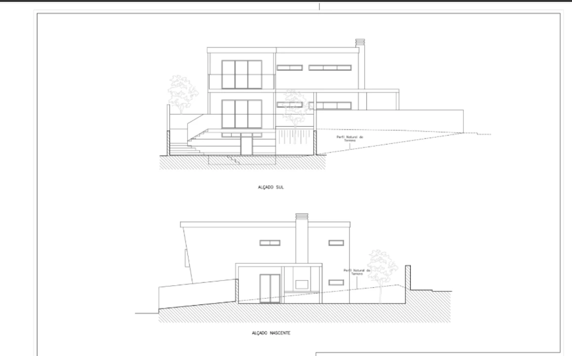
Condições do terreno:
Área total de 487 m2.
Finalidade destinada a habitação unifamiliar.
Área de implantação de 146,10 m2.
Área de construção de 194,80 m2.
Possibilidade de 2 pisos mais cave.
Número de fogos permitido: 1.
Cércea definida em 6 metros.
Cota de soleira de 84,50 m.

Localização: https://maps.app.goo.gl/rKNTHyv1ZZUusKBi7
Link: https://www.d31imo.biz/imovel--6193601
Vídeo: https://youtu.be/Pp_YdSN0DR0

Não hesite e agende já a sua visita!
Se você é um consultor imobiliário, não hesite em entrar em contacto connosco para uma parceria de 50%-50%.
Sousa
967 924 403
D31 AMI 23602
https://www.d31imo.biz/
https://www.d31.biz/

Localização

Funchal (São Pedro), Funchal, Ilha da Madeira

Informação do anúncio

ID do anúncio 1771945
Referência Externa AU_DV_04
Atualizado em 12/04/2026 08:33:14
D31IMO AMI 23602
Referência do imóvel: AU_DV_04
Phone
Chamada para a rede móvel nacional
D31IMO AMI 23602
Referência do imóvel: AU_DV_04
Phone
Chamada para a rede móvel nacional
1 / 18
Terreno para Venda em Funchal (São Pedro) Foto 1
Terreno para Venda em Funchal (São Pedro) Foto 2
Terreno para Venda em Funchal (São Pedro) Foto 3
Terreno para Venda em Funchal (São Pedro) Foto 4
Terreno para Venda em Funchal (São Pedro) Foto 5
Terreno para Venda em Funchal (São Pedro) Foto 6
Terreno para Venda em Funchal (São Pedro) Foto 7
Terreno para Venda em Funchal (São Pedro) Foto 8
Terreno para Venda em Funchal (São Pedro) Foto 9
Terreno para Venda em Funchal (São Pedro) Foto 10
Terreno para Venda em Funchal (São Pedro) Foto 11
Terreno para Venda em Funchal (São Pedro) Foto 12
Terreno para Venda em Funchal (São Pedro) Foto 13
Terreno para Venda em Funchal (São Pedro) Foto 14
Terreno para Venda em Funchal (São Pedro) Foto 15
Terreno para Venda em Funchal (São Pedro) Foto 16
Terreno para Venda em Funchal (São Pedro) Foto 17
Terreno para Venda em Funchal (São Pedro) Foto 18
Planta 1 / 12
Terreno para Venda em Funchal (São Pedro) Planta 1
Terreno para Venda em Funchal (São Pedro) Planta 2
Terreno para Venda em Funchal (São Pedro) Planta 3
Terreno para Venda em Funchal (São Pedro) Planta 4
Terreno para Venda em Funchal (São Pedro) Planta 5
Terreno para Venda em Funchal (São Pedro) Planta 6
Terreno para Venda em Funchal (São Pedro) Planta 7
Terreno para Venda em Funchal (São Pedro) Planta 8
Terreno para Venda em Funchal (São Pedro) Planta 9
Terreno para Venda em Funchal (São Pedro) Planta 10
Terreno para Venda em Funchal (São Pedro) Planta 11
Terreno para Venda em Funchal (São Pedro) Planta 12
Clicky