Moradia T1 para Venda em Darque
190.000 €
Tipo
Moradia
Negócio
Venda
Ano de Construção
1988
Quartos
1
Casas de Banho
1
Área Bruta
49 m²
Área Útil
45 m²
Área do Terreno
150 m²
Moradia térrea T1 em Darque de 45,8 m²
MORADIA T1+1 TÉRREA COM JARDIM EM DARQUE
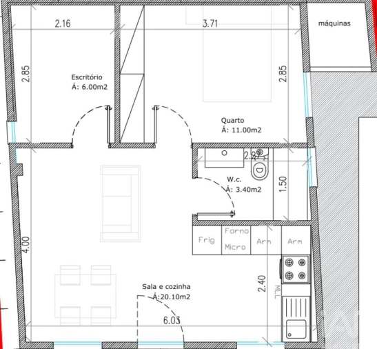
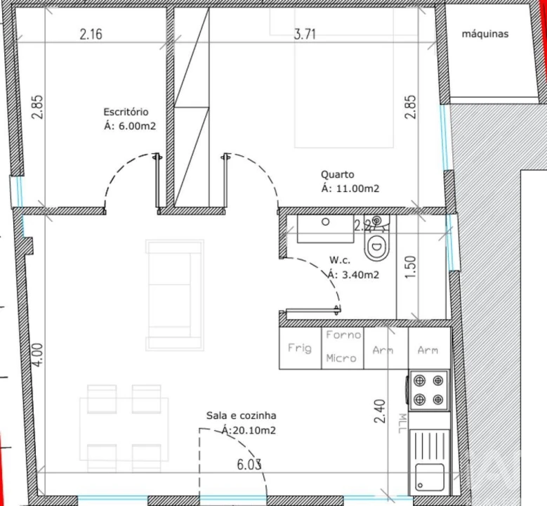
Esta moradia T1+1 em Darque é a solução ideal para quem procura o equilíbrio perfeito entre a funcionalidade de um apartamento e a independência de uma moradia com espaço exterior. Com uma área total de terreno de 151 m², destaca-se pela sua planta funcional e pelos acabamentos atuais, garantindo conforto sem complicações.
Composta por uma sala e cozinha em conceito open space com cerca de 20 m², equipada com placa, forno, exaustor e micro-ondas, garante que a sua mudança seja simples e prática.
Na zona privada, encontramos um quarto principal de 11 m² e um escritório adicional de 6 m², uma divisão versátil que se adapta facilmente às necessidades de quem trabalha a partir de casa ou procura um espaço extra para arrumação ou visitas.
No exterior, o jardim oferece uma área privada para momentos de lazer ao ar livre, complementado por um lugar de estacionamento privativo e uma sala de máquinas independente, que permite manter a organização doméstica fora da área social.
Situada na margem esquerda do Rio Lima, na freguesia de Darque, significa estar a um passo de tudo, a cinco minutos do centro de Viana do castelo, escolas, centro de saúde, farmácia e zonas comerciais.
Com conclusão prevista para julho de 2026, esta é uma oportunidade única de adquirir um imóvel novo, com garantia de qualidade, numa localização estratégica e tranquila. Se procura um espaço acolhedor onde se sinta verdadeiramente em casa, esta moradia em Darque foi projetada a pensar em si. Venha visitar.
#ref: 872612
Esta moradia T1+1 em Darque é a solução ideal para quem procura o equilíbrio perfeito entre a funcionalidade de um apartamento e a independência de uma moradia com espaço exterior. Com uma área total de terreno de 151 m², destaca-se pela sua planta funcional e pelos acabamentos atuais, garantindo conforto sem complicações.
Composta por uma sala e cozinha em conceito open space com cerca de 20 m², equipada com placa, forno, exaustor e micro-ondas, garante que a sua mudança seja simples e prática.
Na zona privada, encontramos um quarto principal de 11 m² e um escritório adicional de 6 m², uma divisão versátil que se adapta facilmente às necessidades de quem trabalha a partir de casa ou procura um espaço extra para arrumação ou visitas.
No exterior, o jardim oferece uma área privada para momentos de lazer ao ar livre, complementado por um lugar de estacionamento privativo e uma sala de máquinas independente, que permite manter a organização doméstica fora da área social.
Situada na margem esquerda do Rio Lima, na freguesia de Darque, significa estar a um passo de tudo, a cinco minutos do centro de Viana do castelo, escolas, centro de saúde, farmácia e zonas comerciais.
Com conclusão prevista para julho de 2026, esta é uma oportunidade única de adquirir um imóvel novo, com garantia de qualidade, numa localização estratégica e tranquila. Se procura um espaço acolhedor onde se sinta verdadeiramente em casa, esta moradia em Darque foi projetada a pensar em si. Venha visitar.
#ref: 872612
Localização
Darque, Viana do Castelo, Viana do Castelo
Informação do anúncio
ID do anúncio
1779781
Referência Externa
872612
Atualizado em
25/04/2026 23:40:33
Moradia T1 para Venda em Darque
Vídeo