Terreno P/ Prédio para Venda em Canidelo Foto 1
Terreno P/ Prédio para Venda em Canidelo Foto 2
Terreno P/ Prédio para Venda em Canidelo Foto 3
Terreno P/ Prédio para Venda em Canidelo Foto 4
Terreno P/ Prédio para Venda em Canidelo Foto 5

Terreno P/ Prédio para Venda em Canidelo

270.000 €

Tipo
Terreno P/ Prédio
Negócio
Venda
Área Útil
252 m²
Área do Terreno
662 m²

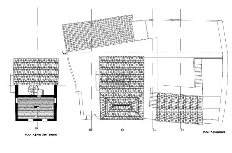
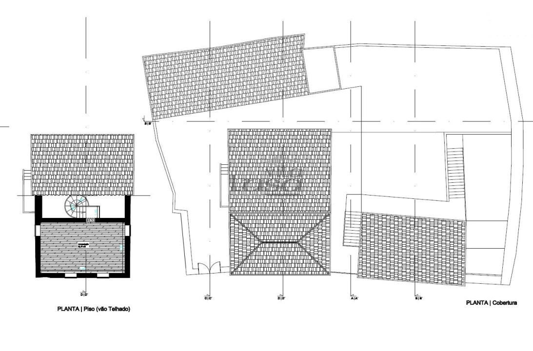
Construção/Reabilitação de Moradia em Gaia Canidelo

Construção/reabilitação de uma moradia unifamilar, inserida num terreno com 662 m² de área total, localizado na freguesia de Canidelo, Vila Nova de Gaia, numa zona residencial próxima das praias da Madalena e Salgueiros.

O projeto prevê a construção/reabilitação de uma moradia com 252 m² de área de implantação e 297,50 m² de área bruta de construção, distribuída de forma funcional e harmoniosa, tirando partido da dimensão do terreno e da envolvente urbana.

A intervenção terá como objetivo criar uma habitação moderna e confortável, respeitando as normas urbanísticas em vigor e garantindo qualidade construtiva, eficiência energética e integração com a envolvente.

A moradia destinar-se-á a habitação, beneficiando de uma localização privilegiada, próxima de diversos serviços e acessibilidades, nomeadamente:

Praias da Madalena e Salgueiros a cerca de 3 minutos

Autoestrada A1 (Nó do Fojo) a cerca de 3 minutos

Centro do Porto (Boavista e Baixa) a aproximadamente 10 minutos

Centro de Vila Nova de Gaia a cerca de 7 minutos

Pingo Doce da Madalena a cerca de 2 minutos (8 minutos a pé)

Transportes públicos a curta distância pedonal.

Esta localização proporciona uma excelente qualidade de vida, combinando a proximidade ao mar com rápidos acessos ao centro urbano do Porto e de Vila Nova de Gaia.

Localização

Canidelo, Vila Nova de Gaia, Porto

Informação do anúncio

ID do anúncio 1784999
Referência Externa 801253055
Atualizado em 26/04/2026 08:05:49
Loja 01 - VILA LUSA - Gaia AMI 7917
Referência do imóvel: 801253055
Phone
Chamada para a rede fixa nacional
Bruno Aguiar
Bruno Aguiar
Phone
Chamada para a rede móvel nacional
Loja 01 - VILA LUSA - Gaia AMI 7917
Referência do imóvel: 801253055
Phone
Chamada para a rede fixa nacional
Bruno Aguiar
Bruno Aguiar
Phone
Chamada para a rede móvel nacional
1 / 22
Terreno P/ Prédio para Venda em Canidelo Foto 1
Terreno P/ Prédio para Venda em Canidelo Foto 2
Terreno P/ Prédio para Venda em Canidelo Foto 3
Terreno P/ Prédio para Venda em Canidelo Foto 4
Terreno P/ Prédio para Venda em Canidelo Foto 5
Terreno P/ Prédio para Venda em Canidelo Foto 6
Terreno P/ Prédio para Venda em Canidelo Foto 7
Terreno P/ Prédio para Venda em Canidelo Foto 8
Terreno P/ Prédio para Venda em Canidelo Foto 9
Terreno P/ Prédio para Venda em Canidelo Foto 10
Terreno P/ Prédio para Venda em Canidelo Foto 11
Terreno P/ Prédio para Venda em Canidelo Foto 12
Terreno P/ Prédio para Venda em Canidelo Foto 13
Terreno P/ Prédio para Venda em Canidelo Foto 14
Terreno P/ Prédio para Venda em Canidelo Foto 15
Terreno P/ Prédio para Venda em Canidelo Foto 16
Terreno P/ Prédio para Venda em Canidelo Foto 17
Terreno P/ Prédio para Venda em Canidelo Foto 18
Terreno P/ Prédio para Venda em Canidelo Foto 19
Terreno P/ Prédio para Venda em Canidelo Foto 20
Terreno P/ Prédio para Venda em Canidelo Foto 21
Terreno P/ Prédio para Venda em Canidelo Foto 22
Clicky