Apartamento T3 para Venda em Paranhos
625.000 €
Tipo
Apartamento
Negócio
Venda
Ano de Construção
2027
Quartos
3
Casas de Banho
1
Área Bruta
152 m²
Área Útil
65 m²
Condição
Como novo
Certificado Energético
A
Apartamento T3 com 3 Suítes, Jardim Privativo e Terraço
Apartamento T3 com 3 Suítes, Jardim Privativo e Terraço – Exclusividade e Conforto
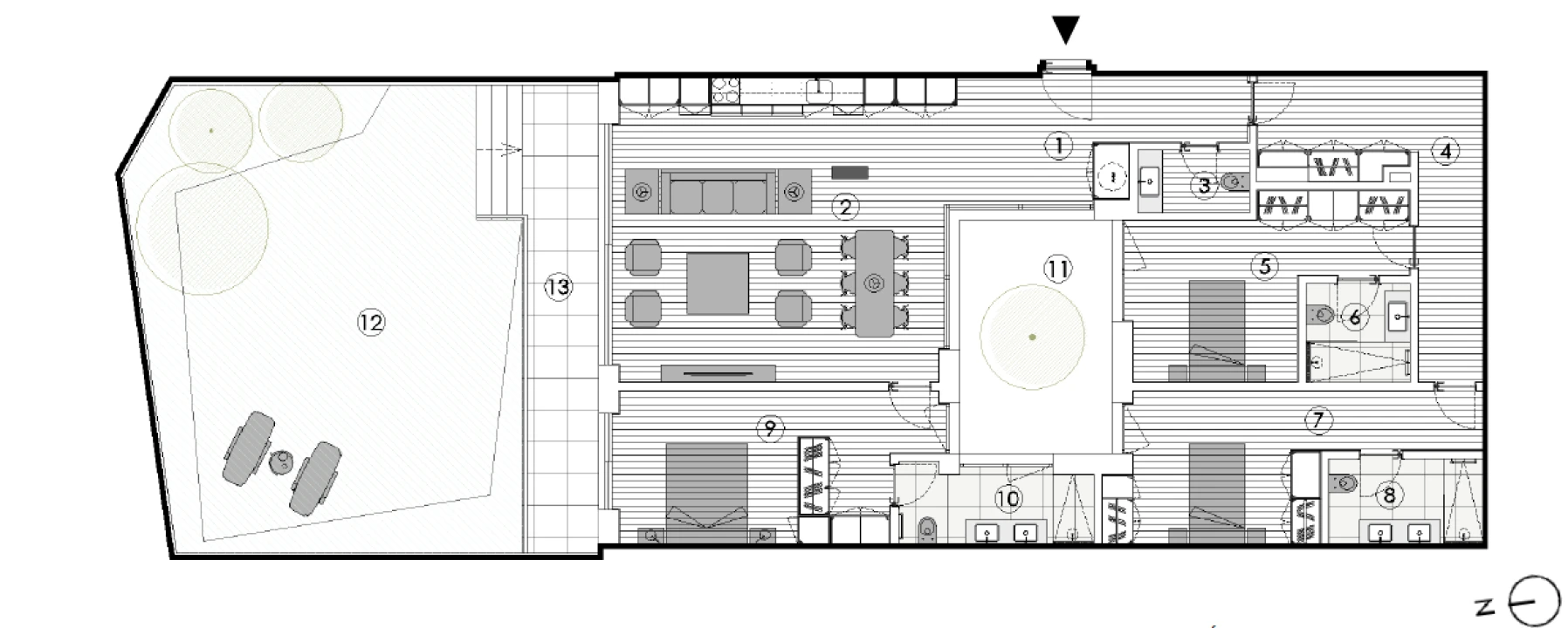
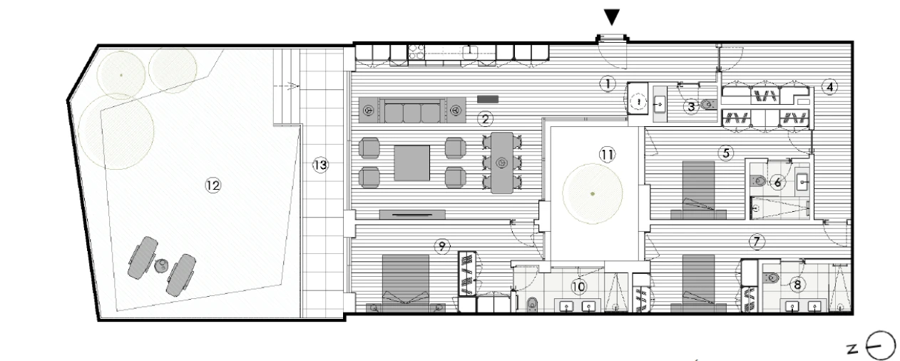
Apresentamos este amplo e sofisticado apartamento T3, localizado no Piso 1 (Fração B), com uma generosa área bruta de 152 m², ideal para quem procura conforto, privacidade e espaços exteriores de excelência.
A zona social destaca-se por uma espaçosa sala em open space com cozinha, com cerca de 42 m², perfeita para momentos de convívio e lazer. Este espaço beneficia de uma excelente ligação ao exterior, proporcionando grande luminosidade natural e uma agradável continuidade entre interior e exterior.
Na zona privada, o imóvel oferece um conceito diferenciador: três suítes, todas com casa de banho privativa, garantindo total conforto e independência para toda a família ou convidados. Existe ainda uma casa de banho de serviço de apoio à zona social.
O apartamento conta também com uma circulação bem organizada e um átrio de entrada amplo, que reforça a sensação de espaço e funcionalidade.
No exterior, destaca-se pelos seus generosos espaços privados: um pátio acolhedor, um jardim com mais de 70 m² e ainda um terraço, ideais para desfrutar de momentos ao ar livre com total privacidade.
Finalizado no primeiro trimestre de 2027
Principais áreas:
Sala/Cozinha: 41,68 m²
Suíte 1: 15,38 m²
Suíte 2: 15,64 m²
Suíte 3: 15,78 m²
Jardim: 71,75 m²
Terraço: 14,63 m²
Uma solução perfeita para quem valoriza qualidade de vida, áreas amplas e um imóvel único com características exclusivas.
Apresentamos este amplo e sofisticado apartamento T3, localizado no Piso 1 (Fração B), com uma generosa área bruta de 152 m², ideal para quem procura conforto, privacidade e espaços exteriores de excelência.
A zona social destaca-se por uma espaçosa sala em open space com cozinha, com cerca de 42 m², perfeita para momentos de convívio e lazer. Este espaço beneficia de uma excelente ligação ao exterior, proporcionando grande luminosidade natural e uma agradável continuidade entre interior e exterior.
Na zona privada, o imóvel oferece um conceito diferenciador: três suítes, todas com casa de banho privativa, garantindo total conforto e independência para toda a família ou convidados. Existe ainda uma casa de banho de serviço de apoio à zona social.
O apartamento conta também com uma circulação bem organizada e um átrio de entrada amplo, que reforça a sensação de espaço e funcionalidade.
No exterior, destaca-se pelos seus generosos espaços privados: um pátio acolhedor, um jardim com mais de 70 m² e ainda um terraço, ideais para desfrutar de momentos ao ar livre com total privacidade.
Finalizado no primeiro trimestre de 2027
Principais áreas:
Sala/Cozinha: 41,68 m²
Suíte 1: 15,38 m²
Suíte 2: 15,64 m²
Suíte 3: 15,78 m²
Jardim: 71,75 m²
Terraço: 14,63 m²
Uma solução perfeita para quem valoriza qualidade de vida, áreas amplas e um imóvel único com características exclusivas.
Localização
Paranhos, Porto, Porto
Informação do anúncio
ID do anúncio
1788926
Referência Externa
CB06-54.2 (2)
Atualizado em
17/04/2026 08:36:22
Anunciante
Chamada para a rede móvel nacional
CASABELO
AMI 24770
Referência do imóvel:
CB06-54.2 (2)
Apartamento T3 para Venda em Paranhos