Apartamento T2 para Venda em Paranhos
450.000 €
Tipo
Apartamento
Negócio
Venda
Ano de Construção
2027
Quartos
2
Casas de Banho
1
Área Bruta
106 m²
Área Útil
83 m²
Condição
Como novo
Certificado Energético
A
Apartamento T2 com Escritório e Varanda
Apartamento T2 com Escritório e Varanda
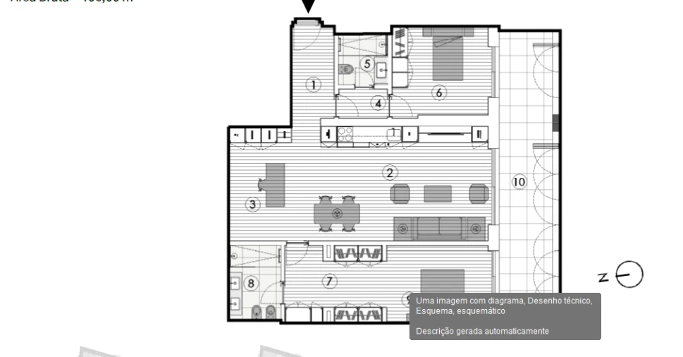
Apresentamos este elegante apartamento T2, localizado no Piso 1 (Fração I), com uma área bruta de 106 m², ideal para quem valoriza espaços bem distribuídos e versatilidade no dia a dia.
Ao entrar, encontramos um agradável átrio de entrada que dá acesso à zona social, composta por uma sala e cozinha em open space com cerca de 32 m². Este espaço destaca-se pela sua luminosidade e ligação direta a uma generosa varanda com quase 23 m², perfeita para momentos de lazer ao ar livre.
Uma das mais-valias deste imóvel é a existência de um espaço adicional destinado a escritório, ideal para teletrabalho ou como zona multifuncional.
Na zona privada, o apartamento dispõe de dois quartos, incluindo uma confortável suíte com casa de banho privativa e zona de antecâmara/closet. O segundo quarto é apoiado por uma casa de banho completa.
A disposição dos espaços foi pensada para garantir privacidade e funcionalidade, com uma clara separação entre zona social e zona de descanso.
Finalizado no primeiro semestre de 2027
Principais áreas:
Sala/Cozinha: 31,92 m²
Suíte: 14,25 m²
Quarto: 11,52 m²
Escritório: 8,40 m²
Varanda: 22,89 m²
Uma excelente oportunidade para quem procura um apartamento moderno, com espaço exterior e área extra para trabalhar ou adaptar às suas necessidades.
CASABELO - Mediação Imobiliária
ID do Imóvel: CB06-54.1
AMI 24770
www.casabelo.pt
Av. Dr. Germano Vieira 1108, Gueifães, Maia
Autógrafos Diários Lda
Intermediário de Crédito Vinculado nº 0007133 registado no Banco de Portugal.
CASABELO – Mediação Imobiliária (AMI 24770)
Somos uma imobiliária sediada na Maia, especializada na compra e venda de imóveis no Grande Porto: Maia, Porto, Matosinhos, Vila Nova de Gaia, Gondomar, Trofa e arredores.
A nossa equipa garante um acompanhamento próximo, transparente e profissional em todo o processo de compra, venda ou arrendamento, bem como no acesso ao crédito habitação através da nossa intermediação de crédito (serviço gratuito para o cliente).
Se procura uma imobiliária de confiança na Maia e no Porto, contacte a CASABELO. Transformamos planos em realidade.
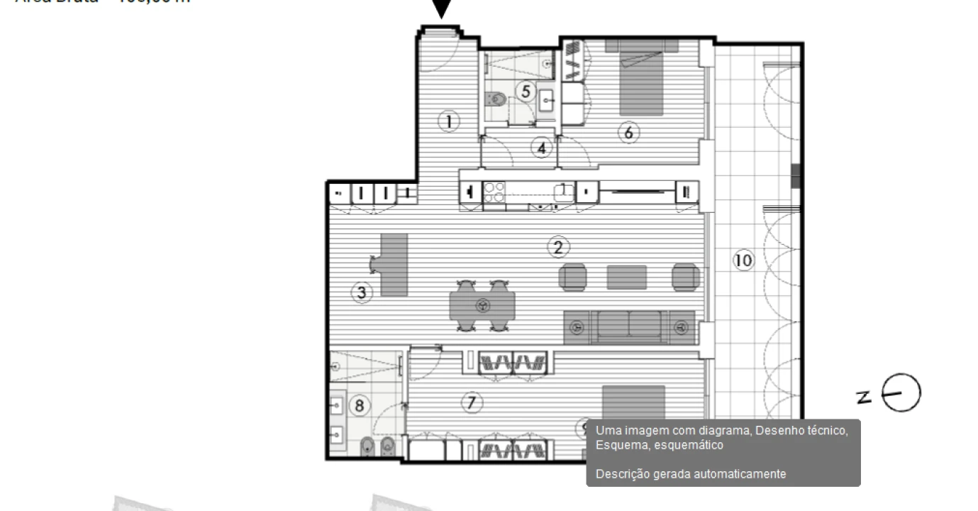
Apresentamos este elegante apartamento T2, localizado no Piso 1 (Fração I), com uma área bruta de 106 m², ideal para quem valoriza espaços bem distribuídos e versatilidade no dia a dia.
Ao entrar, encontramos um agradável átrio de entrada que dá acesso à zona social, composta por uma sala e cozinha em open space com cerca de 32 m². Este espaço destaca-se pela sua luminosidade e ligação direta a uma generosa varanda com quase 23 m², perfeita para momentos de lazer ao ar livre.
Uma das mais-valias deste imóvel é a existência de um espaço adicional destinado a escritório, ideal para teletrabalho ou como zona multifuncional.
Na zona privada, o apartamento dispõe de dois quartos, incluindo uma confortável suíte com casa de banho privativa e zona de antecâmara/closet. O segundo quarto é apoiado por uma casa de banho completa.
A disposição dos espaços foi pensada para garantir privacidade e funcionalidade, com uma clara separação entre zona social e zona de descanso.
Finalizado no primeiro semestre de 2027
Principais áreas:
Sala/Cozinha: 31,92 m²
Suíte: 14,25 m²
Quarto: 11,52 m²
Escritório: 8,40 m²
Varanda: 22,89 m²
Uma excelente oportunidade para quem procura um apartamento moderno, com espaço exterior e área extra para trabalhar ou adaptar às suas necessidades.
CASABELO - Mediação Imobiliária
ID do Imóvel: CB06-54.1
AMI 24770
www.casabelo.pt
Av. Dr. Germano Vieira 1108, Gueifães, Maia
Autógrafos Diários Lda
Intermediário de Crédito Vinculado nº 0007133 registado no Banco de Portugal.
CASABELO – Mediação Imobiliária (AMI 24770)
Somos uma imobiliária sediada na Maia, especializada na compra e venda de imóveis no Grande Porto: Maia, Porto, Matosinhos, Vila Nova de Gaia, Gondomar, Trofa e arredores.
A nossa equipa garante um acompanhamento próximo, transparente e profissional em todo o processo de compra, venda ou arrendamento, bem como no acesso ao crédito habitação através da nossa intermediação de crédito (serviço gratuito para o cliente).
Se procura uma imobiliária de confiança na Maia e no Porto, contacte a CASABELO. Transformamos planos em realidade.
Localização
Paranhos, Porto, Porto
Informação do anúncio
ID do anúncio
1788928
Referência Externa
CB06-54.1 (2)
Atualizado em
17/04/2026 08:36:22
Anunciante
Chamada para a rede móvel nacional
CASABELO
AMI 24770
Referência do imóvel:
CB06-54.1 (2)
Apartamento T2 para Venda em Paranhos