Terreno para Venda em Vieira de Leiria
44.000 €
Tipo
Terreno
Negócio
Venda
Área do Terreno
537 m²
Terreno para construção em Vieira de Leiria
Terreno Projeto aprovado | Construçao | Vieira de Leiria | Marinha Grande | Leiria
Construa a sua moradia de sonho sem esperas nem burocracias!
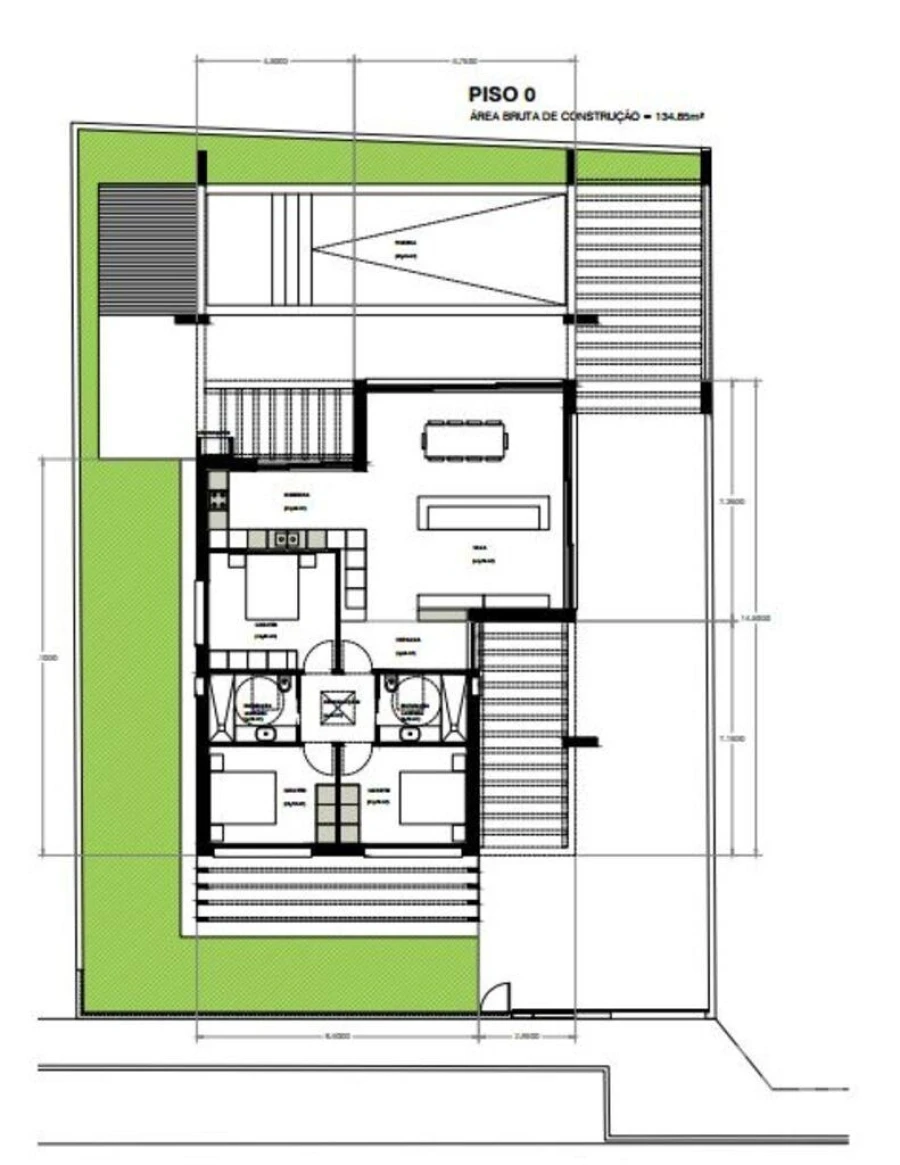
Apresentamos este excelente terreno de 537 m², com uma área bruta de construção de 134.85 m², localizado na freguesia de Vieira de Leiria, a poucos minutos da praia da Vieira.
A grande vantagem deste imóvel - Já possui projeto aprovado e licença pronta a levantamento, permitindo-lhe iniciar a construção da sua nova moradia de imediato!
A Moradia (Projeto):
Trata-se de uma moradia individual de arquitetura moderna, desenhada para oferecer o máximo conforto e funcionalidade:
• Zona Social:
Hall de entrada acolhedor que conduz a uma ampla sala de estar e jantar em Open Space, com varanda e muita luz natural, ligada a uma cozinha funcional.
• Zona Privada:
Três quartos, com roupeiro e duas casas de banho.
• Exterior:
O logradouro oferece o espaço ideal para criar um jardim privativo e uma piscina.
Localização e Envolvência:
Situado em Casal de Anja, este terreno beneficia de uma excelente exposição solar e da tranquilidade de uma zona residencial, mantendo a proximidade a todos os serviços essenciais e aos acessos rápidos à cidade e á praia.
Porquê este terreno?
• Projeto moderno e otimizado.
• Licença a levantamento (pode começar a construir).
• Áreas equilibradas para fácil manutenção.
Não perca tempo com processos de licenciamento morosos.
Esta é a solução para quem quer construir com rapidez e segurança.
Marque já a sua visita!
Valério Fonseca, Consultor Imobiliário Independente | iad Portugal
#ref: 875181
Construa a sua moradia de sonho sem esperas nem burocracias!
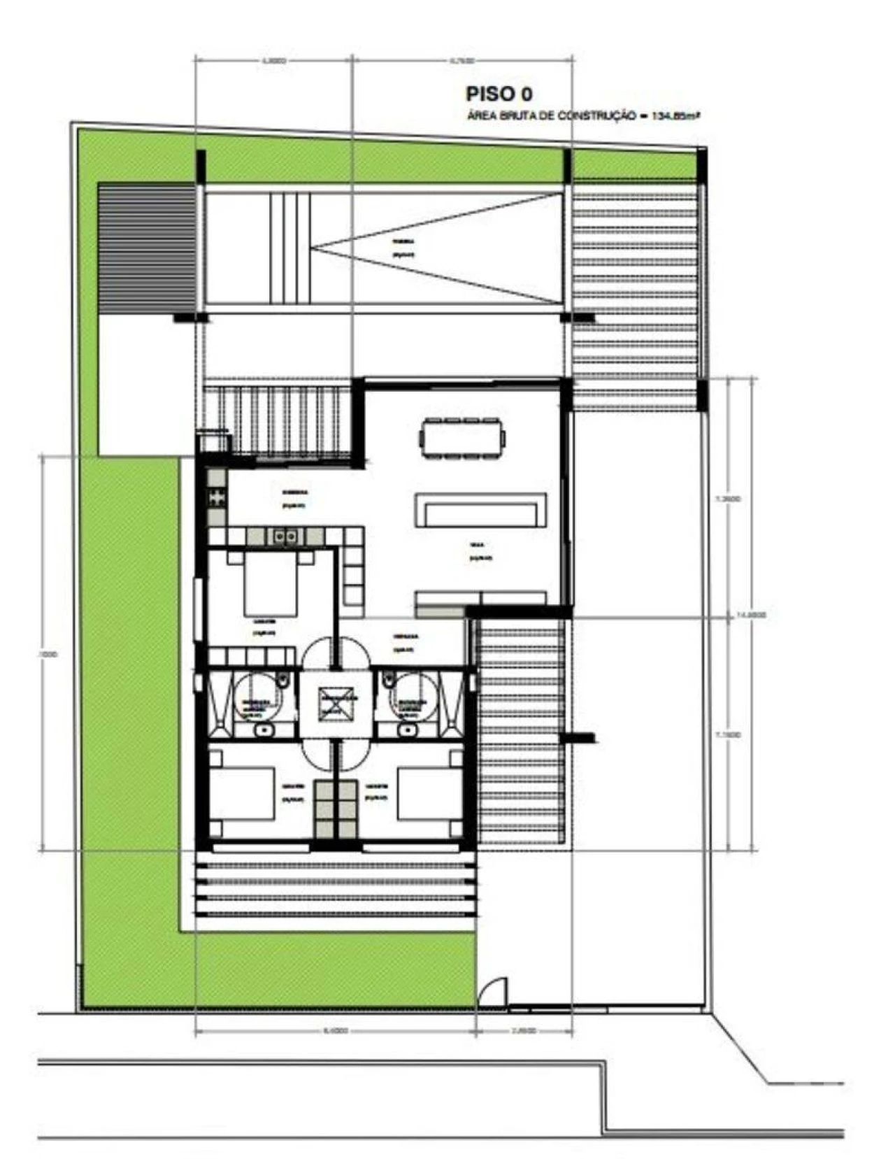
Apresentamos este excelente terreno de 537 m², com uma área bruta de construção de 134.85 m², localizado na freguesia de Vieira de Leiria, a poucos minutos da praia da Vieira.
A grande vantagem deste imóvel - Já possui projeto aprovado e licença pronta a levantamento, permitindo-lhe iniciar a construção da sua nova moradia de imediato!
A Moradia (Projeto):
Trata-se de uma moradia individual de arquitetura moderna, desenhada para oferecer o máximo conforto e funcionalidade:
• Zona Social:
Hall de entrada acolhedor que conduz a uma ampla sala de estar e jantar em Open Space, com varanda e muita luz natural, ligada a uma cozinha funcional.
• Zona Privada:
Três quartos, com roupeiro e duas casas de banho.
• Exterior:
O logradouro oferece o espaço ideal para criar um jardim privativo e uma piscina.
Localização e Envolvência:
Situado em Casal de Anja, este terreno beneficia de uma excelente exposição solar e da tranquilidade de uma zona residencial, mantendo a proximidade a todos os serviços essenciais e aos acessos rápidos à cidade e á praia.
Porquê este terreno?
• Projeto moderno e otimizado.
• Licença a levantamento (pode começar a construir).
• Áreas equilibradas para fácil manutenção.
Não perca tempo com processos de licenciamento morosos.
Esta é a solução para quem quer construir com rapidez e segurança.
Marque já a sua visita!
Valério Fonseca, Consultor Imobiliário Independente | iad Portugal
#ref: 875181
Localização
Vieira de Leiria, Marinha Grande, Leiria
Informação do anúncio
ID do anúncio
1792298
Referência Externa
875181
Atualizado em
18/04/2026 23:43:33
Terreno para Venda em Vieira de Leiria
Vídeo
Terreno para Venda em Vieira de Leiria