Moradia T3 para Venda em Folgosa
465.000 €
Tipo
Moradia
Negócio
Venda
Ano de Construção
2024
Quartos
3
Casas de Banho
3
Área Bruta
410 m²
Área Útil
376 m²
Condição
Como novo
Certificado Energético
A+
Área do Terreno
480 m²
Moradia T3 | Suíte | Logradouro exterior | Varandas | Folgosa – Maia
Imagine viver com a sua família num espaço onde o conforto, a modernidade e a tranquilidade se unem na perfeição.
Uma moradia pensada para proporcionar qualidade de vida, bem-estar e momentos inesquecíveis, com jardim privativo e potencial para piscina, o cenário ideal para quem procura mais do que uma casa: procura um verdadeiro lar.
Apresentamos esta moradia T3 de duas frentes, em fase avançada de construção, já com possibilidade de agendamento de visitas, situada na Praceta do Olheiro, em Folgosa, Maia.
Inserida numa zona residencial calma e familiar, cada vez mais valorizada, esta localização destaca-se pela segurança, ambiente tranquilo e excelente proximidade a escolas, comércio, serviços e transportes. Aqui, encontra o equilíbrio perfeito entre serenidade e conveniência, com rápidos acessos aos principais eixos rodoviários da região.
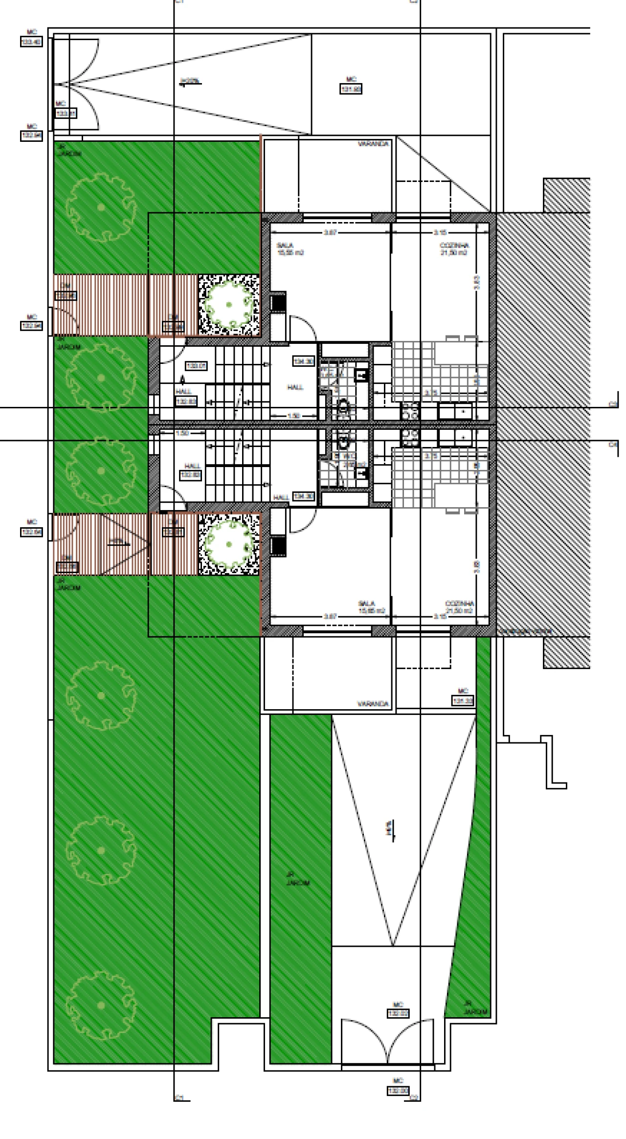
Com cerca de 195 m² de área de construção, esta moradia desenvolve-se por cave, rés do chão e andar, apresentando uma distribuição harmoniosa e funcional, pensada ao detalhe para responder às exigências do dia a dia de uma família moderna.
No piso térreo, a zona social convida a viver e a receber. A sala de estar e jantar, ampla e luminosa, beneficia de ligação direta a uma varanda, permitindo uma excelente entrada de luz natural e criando um ambiente acolhedor e elegante para momentos de convívio. A cozinha, com um design contemporâneo e sofisticado, encontra-se totalmente equipada com eletrodomésticos Siemens, oferecendo a combinação perfeita entre estética, funcionalidade e qualidade.
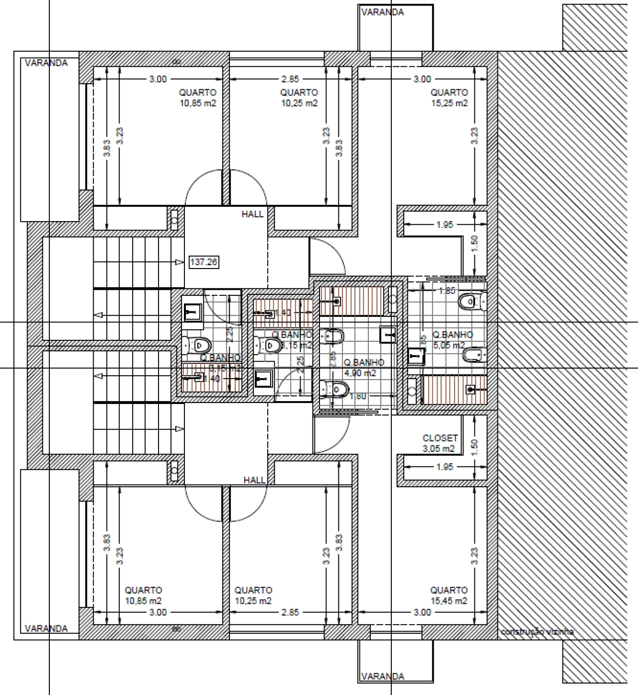
No piso superior, a área privada foi concebida para garantir máximo conforto. Os três quartos apresentam boas áreas e ótima luminosidade natural. A suíte principal assume-se como um verdadeiro refúgio, com closet espaçoso e varanda privativa, ideal para desfrutar de momentos de descanso e tranquilidade. Os restantes quartos, um deles também com varanda, adaptam-se facilmente a diferentes necessidades, seja como quartos de crianças, escritório ou espaços multifuncionais.
No exterior, destaca-se uma agradável área privativa com cerca de 120 m², perfeita para desfrutar de refeições ao ar livre, criar uma zona de lazer ou até concretizar o sonho de uma piscina.
Na cave, encontra-se uma prática lavandaria e uma garagem fechada para 2 viaturas, assegurando toda a comodidade e funcionalidade que a vida familiar exige.
Ao nível do conforto e eficiência, esta moradia está equipada com ar condicionado por splits individuais, caixilharia térmica Cortizo com vidro duplo, estores elétricos, aspiração central e bomba de calor para águas sanitárias, oferecendo bem-estar em todas as estações do ano e excelente eficiência energética.
A segurança também merece destaque, com sistema de alarme, videovigilância e portões elétricos, proporcionando maior proteção e tranquilidade no dia a dia.
A localização é outro dos seus grandes trunfos: inserida numa zona residencial serena, beneficia da proximidade a escolas, supermercados, farmácias, comércio local e zonas de lazer. Além disso, conta com acessos rápidos à Via Diagonal, N14 e A41, facilitando as ligações à Maia, Porto e restantes zonas da Área Metropolitana. Os transportes públicos nas proximidades reforçam ainda mais a conveniência desta localização.
Esta é a oportunidade ideal para garantir uma moradia moderna, elegante e funcional, com acabamentos de qualidade e possibilidade de personalização nos últimos detalhes antes da mudança.
Uma casa preparada para acompanhar a sua família hoje e no futuro.
NOTA:
Áreas conforme documentação do imóvel
Uma moradia pensada para proporcionar qualidade de vida, bem-estar e momentos inesquecíveis, com jardim privativo e potencial para piscina, o cenário ideal para quem procura mais do que uma casa: procura um verdadeiro lar.
Apresentamos esta moradia T3 de duas frentes, em fase avançada de construção, já com possibilidade de agendamento de visitas, situada na Praceta do Olheiro, em Folgosa, Maia.
Inserida numa zona residencial calma e familiar, cada vez mais valorizada, esta localização destaca-se pela segurança, ambiente tranquilo e excelente proximidade a escolas, comércio, serviços e transportes. Aqui, encontra o equilíbrio perfeito entre serenidade e conveniência, com rápidos acessos aos principais eixos rodoviários da região.
Com cerca de 195 m² de área de construção, esta moradia desenvolve-se por cave, rés do chão e andar, apresentando uma distribuição harmoniosa e funcional, pensada ao detalhe para responder às exigências do dia a dia de uma família moderna.
No piso térreo, a zona social convida a viver e a receber. A sala de estar e jantar, ampla e luminosa, beneficia de ligação direta a uma varanda, permitindo uma excelente entrada de luz natural e criando um ambiente acolhedor e elegante para momentos de convívio. A cozinha, com um design contemporâneo e sofisticado, encontra-se totalmente equipada com eletrodomésticos Siemens, oferecendo a combinação perfeita entre estética, funcionalidade e qualidade.
No piso superior, a área privada foi concebida para garantir máximo conforto. Os três quartos apresentam boas áreas e ótima luminosidade natural. A suíte principal assume-se como um verdadeiro refúgio, com closet espaçoso e varanda privativa, ideal para desfrutar de momentos de descanso e tranquilidade. Os restantes quartos, um deles também com varanda, adaptam-se facilmente a diferentes necessidades, seja como quartos de crianças, escritório ou espaços multifuncionais.
No exterior, destaca-se uma agradável área privativa com cerca de 120 m², perfeita para desfrutar de refeições ao ar livre, criar uma zona de lazer ou até concretizar o sonho de uma piscina.
Na cave, encontra-se uma prática lavandaria e uma garagem fechada para 2 viaturas, assegurando toda a comodidade e funcionalidade que a vida familiar exige.
Ao nível do conforto e eficiência, esta moradia está equipada com ar condicionado por splits individuais, caixilharia térmica Cortizo com vidro duplo, estores elétricos, aspiração central e bomba de calor para águas sanitárias, oferecendo bem-estar em todas as estações do ano e excelente eficiência energética.
A segurança também merece destaque, com sistema de alarme, videovigilância e portões elétricos, proporcionando maior proteção e tranquilidade no dia a dia.
A localização é outro dos seus grandes trunfos: inserida numa zona residencial serena, beneficia da proximidade a escolas, supermercados, farmácias, comércio local e zonas de lazer. Além disso, conta com acessos rápidos à Via Diagonal, N14 e A41, facilitando as ligações à Maia, Porto e restantes zonas da Área Metropolitana. Os transportes públicos nas proximidades reforçam ainda mais a conveniência desta localização.
Esta é a oportunidade ideal para garantir uma moradia moderna, elegante e funcional, com acabamentos de qualidade e possibilidade de personalização nos últimos detalhes antes da mudança.
Uma casa preparada para acompanhar a sua família hoje e no futuro.
NOTA:
Áreas conforme documentação do imóvel
Localização
Folgosa, Maia, Porto
Informação do anúncio
ID do anúncio
1798333
Referência Externa
SR0055
Atualizado em
21/04/2026 08:46:22
Anunciante
Chamada para a rede móvel nacional
Patrícia Tiago Unipessoal, lda
AMI 22918
Referência do imóvel:
SR0055
Consultor
HT Consultores
Moradia T3 para Venda em Folgosa