Quinta T4 para Venda em Santa Catarina da Fonte do Bispo
445.000 €
Tipo
Quinta
Negócio
Venda
Quartos
4
Casas de Banho
2
Área Bruta
153 m²
Área Útil
123 m²
Condição
Recuperado
Certificado Energético
D
Área do Terreno
574 m²
QUINTA TRADICIONAL RENOVADA COM QUATRO QUARTOS MAIS UM GRANDE TERRAÇO COM VISTAS INCRÍVEIS
QUINTA TRADICIONAL RENOVADA COM QUATRO QUARTOS MAIS UM GRANDE TERRAÇO COM VISTAS INCRÍVEIS PARA O CAMPO NUM LOTE DE 529,00. M²
LOCALIZAÇÃO
A propriedade está localizada no campo, apenas a 30 minutos de carro da vila de Santa Catarina e a 35 minutos da cidade costeira de Tavira e das praias mais próximas. O Aeroporto Internacional e a cidade de Faro encontram-se a aproximadamente 50 minutos. A cidade de Faro e o Aeroporto Internacional ficam a aproximadamente 50 minutos, enquanto os campos de golfe ficam apenas a 25 minutos. A Espanha pode ser alcançada em 45 minutos.
TIPO DE IMÓVEL
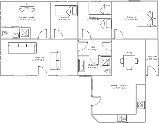
Esta propriedade totalmente renovada está situada num único piso, oferecendo comodidade e conforto. A casa tradicional dispõe de uma espaçosa cozinha e área de refeições, uma generosa sala de estar, quatro quartos (um com casa de banho privativa) e uma casa de banho completa adicional. No exterior existe uma útil despensa e um amplo terraço com mais de 146,00 m².
A dimensão total da construção é de 153,00 m².
A propriedade está ligada à electricidade e dispõe de abastecimento de água através de furo através de cisterna.
ALOJAMENTO
Cozinha/Área de refeições - 30,50 m²
Sala - 25,90 m²
Quarto 1 em suite - 12,30+2,55 m²
Quarto 2 - 9,80 m²
Quarto 3 - 11,90 m²
Quarto 4 - 16,90 m²
Casa de banho 2 - 4,10 m²
Hall - 4,50 m²
Despensa - 4,55 m²
Esplanada: - Aprox. 146,00 m²
ACESSO
O acesso à propriedade é feito por estrada alcatroada.
RECURSOS GERAIS
Estores de alumínio nas janelas
Janelas e portas em alumínio com vidro duplo
Aparelho de ar condicionado na sala
Área de churrasco
Estacionamento externo
Cozinha totalmente equipada
Classificação de Desempenho Energético 'D'
COMENTÁRIOS
A propriedade está localizada na tranquila e encantadora zona rural de Santa Catarina.
A partir do terraço, feito com os tradicionais azulejos de terracota, pode desfrutar de vistas espetaculares sobre as colinas e o mar, criando um cenário pitoresco.
O terreno tem 574,00 m² e suporta algumas árvores locais, incluindo laranjeiras e figueiras.
Restaurantes, bares, lojas, correios e bancos estão a 20 minutos da propriedade.
Esta propriedade oferece um excelente potencial tanto para uso pessoal como para investimento. Poderá facilmente ser transformada numa encantadora casa de férias, numa espaçosa e confortável residência permanente, ou numa rentável propriedade para arrendamento, dependendo das suas necessidades e visão.
LOCALIZAÇÃO
A propriedade está localizada no campo, apenas a 30 minutos de carro da vila de Santa Catarina e a 35 minutos da cidade costeira de Tavira e das praias mais próximas. O Aeroporto Internacional e a cidade de Faro encontram-se a aproximadamente 50 minutos. A cidade de Faro e o Aeroporto Internacional ficam a aproximadamente 50 minutos, enquanto os campos de golfe ficam apenas a 25 minutos. A Espanha pode ser alcançada em 45 minutos.
TIPO DE IMÓVEL
Esta propriedade totalmente renovada está situada num único piso, oferecendo comodidade e conforto. A casa tradicional dispõe de uma espaçosa cozinha e área de refeições, uma generosa sala de estar, quatro quartos (um com casa de banho privativa) e uma casa de banho completa adicional. No exterior existe uma útil despensa e um amplo terraço com mais de 146,00 m².
A dimensão total da construção é de 153,00 m².
A propriedade está ligada à electricidade e dispõe de abastecimento de água através de furo através de cisterna.
ALOJAMENTO
Cozinha/Área de refeições - 30,50 m²
Sala - 25,90 m²
Quarto 1 em suite - 12,30+2,55 m²
Quarto 2 - 9,80 m²
Quarto 3 - 11,90 m²
Quarto 4 - 16,90 m²
Casa de banho 2 - 4,10 m²
Hall - 4,50 m²
Despensa - 4,55 m²
Esplanada: - Aprox. 146,00 m²
ACESSO
O acesso à propriedade é feito por estrada alcatroada.
RECURSOS GERAIS
Estores de alumínio nas janelas
Janelas e portas em alumínio com vidro duplo
Aparelho de ar condicionado na sala
Área de churrasco
Estacionamento externo
Cozinha totalmente equipada
Classificação de Desempenho Energético 'D'
COMENTÁRIOS
A propriedade está localizada na tranquila e encantadora zona rural de Santa Catarina.
A partir do terraço, feito com os tradicionais azulejos de terracota, pode desfrutar de vistas espetaculares sobre as colinas e o mar, criando um cenário pitoresco.
O terreno tem 574,00 m² e suporta algumas árvores locais, incluindo laranjeiras e figueiras.
Restaurantes, bares, lojas, correios e bancos estão a 20 minutos da propriedade.
Esta propriedade oferece um excelente potencial tanto para uso pessoal como para investimento. Poderá facilmente ser transformada numa encantadora casa de férias, numa espaçosa e confortável residência permanente, ou numa rentável propriedade para arrendamento, dependendo das suas necessidades e visão.
Localização
Santa Catarina da Fonte do Bispo, Tavira, Faro
Informação do anúncio
ID do anúncio
1803900
Referência Externa
CF475
Atualizado em
25/04/2026 12:40:56
Anunciante
Chamada para a rede móvel nacional
Aimcliff Properties - Mediação Imobiliária Unipessoal, Lda
AMI 427
Referência do imóvel:
CF475
Quinta T4 para Venda em Santa Catarina da Fonte do Bispo