Voltar
Terreno P/ Prédio para Venda em Aradas Foto 1
Terreno P/ Prédio para Venda em Aradas Foto 2
Terreno P/ Prédio para Venda em Aradas Foto 3
Terreno P/ Prédio para Venda em Aradas Foto 4
Terreno P/ Prédio para Venda em Aradas Foto 5

Terreno P/ Prédio para Venda em Aradas

170.000 €

Tipo
Terreno P/ Prédio
Negócio
Venda
Área Útil
305 m²
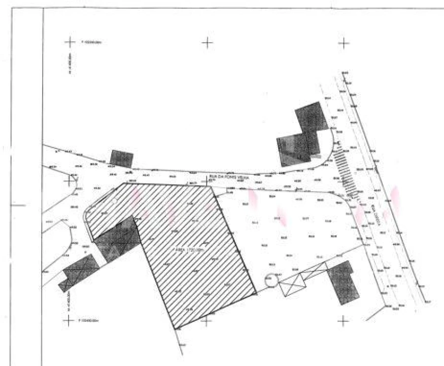
Área do Terreno
1720 m²

Terreno à venda em Aradas

Terreno com 1.720 m², localizado numa área tranquila e de fácil acesso na Quinta do Picado. O lote conta com um projeto aprovado para construção de 4 andares moradia T3.
Principais características:

Área total: 1.720 m²
Projeto aprovado para 4 andares moradia T3
Excelente exposição solar
Localização privilegiada, com fácil acesso a serviços e comércios da região.

Este terreno é perfeito para quem deseja personalizar a sua casa, combinando um espaço amplo com o conforto de um projeto moderno e funcional. Agende já a sua visita!

A Chave Nova é uma empresa portuguesa de Mediação Imobiliária fundada em 2001. Com vasta experiência no mercado, atua na área Metropolitana do Porto, Lisboa, Aveiro e Ilha da Madeira, comercializando dezenas de projetos imobiliários em regime de exclusividade. Comprometida com seriedade e honestidade, a Chave Nova oferece conveniência nas visitas aos imóveis e utiliza sólidos conhecimentos de mercado para entender e atender às necessidades de todos os clientes.

Localização

Aradas, Aveiro, Aveiro

Informação do anúncio

ID do anúncio 1806617
Referência Externa AVR/00594
Atualizado em 25/04/2026 08:13:17
CN Aveiro AMI 7142
Referência do imóvel: AVR/00594
Phone
Chamada para a rede móvel nacional
Chave Nova - AVEIRO
Chave Nova - AVEIRO
Phone
Chamada para a rede móvel nacional
CN Aveiro AMI 7142
Referência do imóvel: AVR/00594
Phone
Chamada para a rede móvel nacional
Chave Nova - AVEIRO
Chave Nova - AVEIRO
Phone
Chamada para a rede móvel nacional
1 / 8
Terreno P/ Prédio para Venda em Aradas Foto 1
Terreno P/ Prédio para Venda em Aradas Foto 2
Terreno P/ Prédio para Venda em Aradas Foto 3
Terreno P/ Prédio para Venda em Aradas Foto 4
Terreno P/ Prédio para Venda em Aradas Foto 5
Terreno P/ Prédio para Venda em Aradas Foto 6
Terreno P/ Prédio para Venda em Aradas Foto 7
Terreno P/ Prédio para Venda em Aradas Foto 8
Clicky