Loja para Venda em Pedroso e Seixezelo
3.999.000 €
Tipo
Loja
Negócio
Venda
Ano de Construção
2027
Área Bruta
4538 m²
Área Útil
2132 m²
Condição
Novo
Certificado Energético
Em execução
Área do Terreno
4538 m²
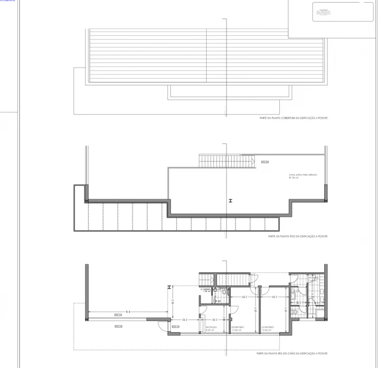
Armazém (construção nova) - EN1 Pedroso / Seixezelo
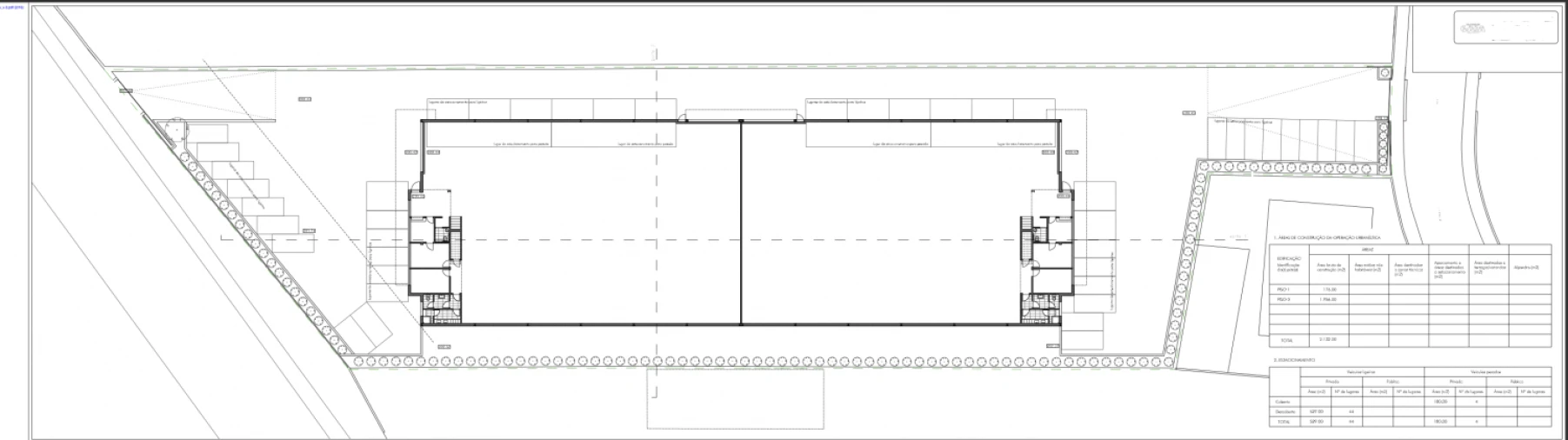
O armazém implanta-se numa parcela de terreno com uma área total de 4.538 m². Dispõe de estacionamento à superfície para 44 viaturas ligeiras, bem como capacidade para 4 viaturas pesadas no interior das naves. Possui ainda 2 cais de Cargas/Descargas com plataformas elevatórias.
Encontra-se numa localização premium, numa zona de elevada circulação, com acesso direto à EN1 e proximidade ao acesso da autoestrada.
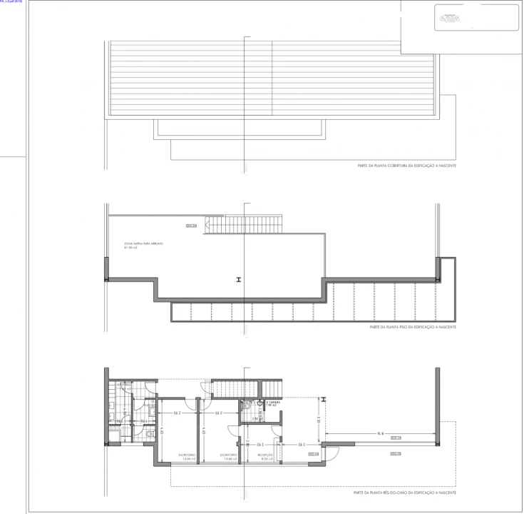
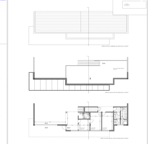
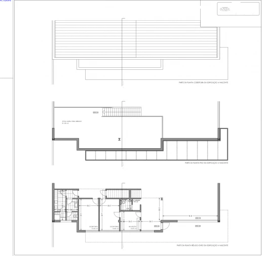
O edifício integra áreas sociais e de apoio, assim como espaços de escritórios em cada fração, incluindo instalações sanitárias concebidas de acordo com as normas de acessibilidade e mobilidade para todos.
Dados técnicos:
•Área do terreno: 4.538 m²
•Área de implantação: 1.956 m²
•Área total de construção: 2.132 m²
•Número de pisos acima da cota de soleira: 2
•Número de pisos abaixo da cota de soleira: 0
•Pé-direito: 10,5 m
•Duas frentes
A cobertura é executada em chapas metálicas isotérmicas assentes sobre estrutura metálica. A caixilharia exterior é em alumínio com acabamento à cor natural, equipada com vidro duplo na zona de escritórios e vidro de 4 mm nas restantes áreas.
A carpintaria interior é em madeira exótica devidamente tratada. Todos os compartimentos interiores são ventilados através de ventiladores elétricos/extratores, dotados de sistema de comando e temporizador.
Previsão de conclusão: Julho de 2027
O imóvel encontra-se disponível para venda e arrendamento (20 000€).
Para mais informações contacte:
Douro Project Real Estate
Encontra-se numa localização premium, numa zona de elevada circulação, com acesso direto à EN1 e proximidade ao acesso da autoestrada.
O edifício integra áreas sociais e de apoio, assim como espaços de escritórios em cada fração, incluindo instalações sanitárias concebidas de acordo com as normas de acessibilidade e mobilidade para todos.
Dados técnicos:
•Área do terreno: 4.538 m²
•Área de implantação: 1.956 m²
•Área total de construção: 2.132 m²
•Número de pisos acima da cota de soleira: 2
•Número de pisos abaixo da cota de soleira: 0
•Pé-direito: 10,5 m
•Duas frentes
A cobertura é executada em chapas metálicas isotérmicas assentes sobre estrutura metálica. A caixilharia exterior é em alumínio com acabamento à cor natural, equipada com vidro duplo na zona de escritórios e vidro de 4 mm nas restantes áreas.
A carpintaria interior é em madeira exótica devidamente tratada. Todos os compartimentos interiores são ventilados através de ventiladores elétricos/extratores, dotados de sistema de comando e temporizador.
Previsão de conclusão: Julho de 2027
O imóvel encontra-se disponível para venda e arrendamento (20 000€).
Para mais informações contacte:
Douro Project Real Estate
Localização
Pedroso e Seixezelo, Vila Nova de Gaia, Porto
Informação do anúncio
ID do anúncio
1807022
Referência Externa
DP081
Atualizado em
23/04/2026 08:35:27
Anunciante
Chamada para a rede móvel nacional
Douro Project Real Estate
AMI 26843
Referência do imóvel:
DP081
Loja para Venda em Pedroso e Seixezelo