Terreno para Venda em Peral
395.000 €
Tipo
Terreno
Negócio
Venda
Área do Terreno
327 m²
Terreno para construção em Peral
Terreno com Moradia T3 Térrea com Piscina – O Seu Novo Refúgio- Entregue Chave na Mão!
Procura viver numa zona tranquila, mas perto de tudo? Esta casa foi desenhada para proporcionar qualidade de vida e bem-estar em cada momento.
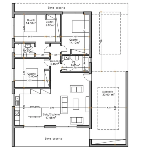
Com um terreno de 327.70m2 e uma área de construção de 198.70m2, a moradia é composta por:
- Sala e cozinha Open space ( 47.65m2)
- 2 Quartos com roupeiro embutido (13 e 14m2)
- Casa de banho (6m2)
- 1 Quarto Suite com closet ( 22m2)
- Alpendre
- Piscina ( 18m2)
- Logradouro
Caracteristicas:
- É possivel escolher a cor dos materiais
- Estores elétricos
- Janelas em Alumínio com vidro duplo
- Pré-instalação de Painéis Solares
- Pré-instalação de Ar Condicionado
- Isolamento com capoto
- Portas interiores e roupeiros lacados a branco mate
Aqui, cada detalhe conta. Desde a possibilidade de personalizar materiais ao seu gosto, até aos acabamentos modernos e eficientes , tudo foi pensado para o seu conforto presente e futuro.
Mais do que uma casa, este é um espaço onde pode criar memórias, viver com tranquilidade e ainda assim estar próximo de tudo o que precisa.
Uma oportunidade única de transformar o seu estilo de vida.
Este projeto refere-se à Moradia A, existindo ainda outra unidade disponível.
O Layout da casa encontra a harmonia perfeita entre o lazer e o quaotidiano. Oferece um espaço exterior unico, ideal para relaxar e apreciar o ar puro.
Uma moradia focada no isolamento térmico, no design moderno e num mindset perfeito!
Não deixe escapar a oportunidade de ter a sua moradia de sonho!
#ref: 878326
Procura viver numa zona tranquila, mas perto de tudo? Esta casa foi desenhada para proporcionar qualidade de vida e bem-estar em cada momento.
Com um terreno de 327.70m2 e uma área de construção de 198.70m2, a moradia é composta por:
- Sala e cozinha Open space ( 47.65m2)
- 2 Quartos com roupeiro embutido (13 e 14m2)
- Casa de banho (6m2)
- 1 Quarto Suite com closet ( 22m2)
- Alpendre
- Piscina ( 18m2)
- Logradouro
Caracteristicas:
- É possivel escolher a cor dos materiais
- Estores elétricos
- Janelas em Alumínio com vidro duplo
- Pré-instalação de Painéis Solares
- Pré-instalação de Ar Condicionado
- Isolamento com capoto
- Portas interiores e roupeiros lacados a branco mate
Aqui, cada detalhe conta. Desde a possibilidade de personalizar materiais ao seu gosto, até aos acabamentos modernos e eficientes , tudo foi pensado para o seu conforto presente e futuro.
Mais do que uma casa, este é um espaço onde pode criar memórias, viver com tranquilidade e ainda assim estar próximo de tudo o que precisa.
Uma oportunidade única de transformar o seu estilo de vida.
Este projeto refere-se à Moradia A, existindo ainda outra unidade disponível.
O Layout da casa encontra a harmonia perfeita entre o lazer e o quaotidiano. Oferece um espaço exterior unico, ideal para relaxar e apreciar o ar puro.
Uma moradia focada no isolamento térmico, no design moderno e num mindset perfeito!
Não deixe escapar a oportunidade de ter a sua moradia de sonho!
#ref: 878326
Localização
Peral, Cadaval, Lisboa
Informação do anúncio
ID do anúncio
1810560
Referência Externa
878326
Atualizado em
24/04/2026 00:00:40
Terreno para Venda em Peral
Vídeo