Quinta T5 para Venda em São Domingos e Vale de Água
885.000 €
Tipo
Quinta
Negócio
Venda
Quartos
5
Casas de Banho
4
Área Bruta
105 m²
Área Útil
105 m²
Condição
Usado
Certificado Energético
E
Área do Terreno
2245 m²
Descrição
Identificação do imóvel: ZMPT552646
Monte do Mirante, em Santiago do Cacém, umRefúgio com Alma Alentejana
Imagina acordar com o som dos pássaros, respirar fundo e sentir que o tempo abranda.
Aqui, a vida ganha outro ritmo, mais leve, mais presente, mais verdadeiro.
Localização Privilegiada
Este encantador monte alentejano, localizado em São Domingos e Vale de Água em Santiago do Cacém, oferece o equilíbrio perfeito entre tranquilidade absoluta e proximidade ao mar, a apenas 30 km de Porto Côvo, 1h da Comporta e menos de 2h de Lisboa.
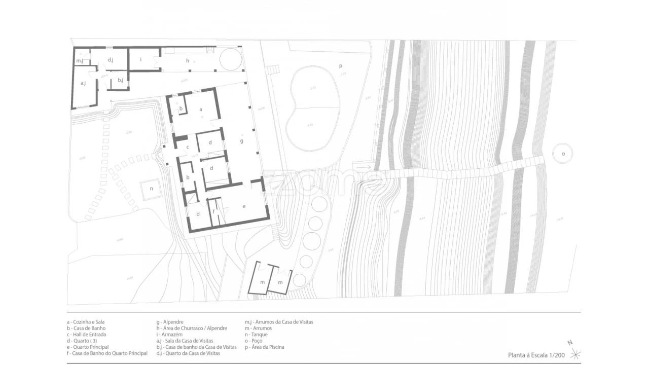
A casa principal
Pensada para quem valoriza conforto, simplicidade e autenticidade:
- Tipologia T4 com excelente luminosidade
- Sala e cozinha em open space, com ligação direta ao exterior
- Tetos em madeira maciça e salamandra, que criam um ambiente acolhedor
- 4 quartos (incluindo suíte)
- 3 casas de banho
Um espaço onde cada detalhe convida a abrandar e a viver com mais intenção.
Casa de Hóspedes Independente
Perfeita para receber, rentabilizar ou simplesmente dar mais liberdade:
- Totalmente separada da casa principal
- Sala, quarto e casa de banho
- Espaço funcional e acolhedor
Ideal para receber visitas com total privacidade. Totalmente separada da moradia principal, esta T1 é perfeita para receber amigos, familiares ou até rentabilizar.
- Sala com sofá-cama;
- Quarto com 2 camas individuais;
- Casa de banho com duche;
- Arrecadação.
O verdadeiro coração da propriedade: A piscina
A zona da piscina, com vista aberta sobre a natureza, é o ponto de encontro perfeito:
para mergulhos ao fim do dia, leituras ao sol ou longos finais de tarde com amigos.
Exterior pensado para viver
Um terreno que convida ao prazer simples:
- Jardim com rega automática
- Árvores de fruto, videiras e horta
- Zona de lazer com churrasqueira, forno a lenha e cozinha exterior
- Telheiro para várias viaturas
- Armazém e arrecadações
Aqui, cada canto tem potencial, seja para relaxar, receber ou criar.
Para quem é este lugar?
Para quem quer sair da correria e viver com mais qualidade
Para casa de férias ou escapadelas
Para quem sente que o corpo pede natureza, silêncio e espaço
Para um eventual projeto turístico
Simples. Bonito. Verdadeiramente Alentejano.
Marque já a sua visita e descubra este refúgio de sonho!
Consigo sempre na procura de imóvel | 3 razões para comprar com a Zome
+ Acompanhamento
Com uma preparação e experiência única no mercado imobiliário, os consultores Zome põem toda a sua dedicação em dar-lhe o melhor acompanhamento, orientando-o com a máxima confiança, na direção certa das suas necessidades e ambições.
Daqui para a frente, vamos criar uma relação próxima e escutar com atenção as suas expectativas, porque a nossa prioridade é a sua felicidade!
Porque é importante que sinta que está acompanhado, e que estamos consigo sempre.
+ Simples
Os consultores Zome têm uma formação única no mercado, ancorada na partilha de experiência prática entre profissionais e fortalecida pelo conhecimento de neurociência aplicada que lhes permite simplificar e tornar mais eficaz a sua experiência imobiliária.
Deixe para trás os pesadelos burocráticos porque na Zome encontra o apoio total de uma equipa experiente e multidisciplinar que lhe dá suporte prático em todos os aspetos fundamentais, para que a sua experiência imobiliária supere as expectativas.
+ Feliz
O nosso maior valor é entregar-lhe felicidade! Liberte-se de preocupações e ganhe o tempo de qualidade que necessita para se dedicar ao que lhe faz mais feliz.
Agimos diariamente para trazer mais valor à sua vida com o aconselhamento fiável de que precisa para, juntos, conseguirmos atingir os melhores resultados.
Com a Zome nunca vai estar perdido ou desacompanhado e encontrará algo que não tem preço: a sua máxima tranquilidade!
É assim que se vai sentir ao longo de toda a experiência: Tranquilo, seguro, confortável e... FELIZ!
Notas:
1. Caso seja um consultor imobiliário, este imóvel está disponível para partilha de negócio. Não hesite em apresentar aos seus clientes compradores e fale connosco para agendar a sua visita.
2. Para maior facilidade na identificação deste imóvel, por favor, refira o respetivo ID ZMPT ou o respetivo agente que lhe tenha enviado a sugestão.
Monte do Mirante, em Santiago do Cacém, umRefúgio com Alma Alentejana
Imagina acordar com o som dos pássaros, respirar fundo e sentir que o tempo abranda.
Aqui, a vida ganha outro ritmo, mais leve, mais presente, mais verdadeiro.
Localização Privilegiada
Este encantador monte alentejano, localizado em São Domingos e Vale de Água em Santiago do Cacém, oferece o equilíbrio perfeito entre tranquilidade absoluta e proximidade ao mar, a apenas 30 km de Porto Côvo, 1h da Comporta e menos de 2h de Lisboa.
A casa principal
Pensada para quem valoriza conforto, simplicidade e autenticidade:
- Tipologia T4 com excelente luminosidade
- Sala e cozinha em open space, com ligação direta ao exterior
- Tetos em madeira maciça e salamandra, que criam um ambiente acolhedor
- 4 quartos (incluindo suíte)
- 3 casas de banho
Um espaço onde cada detalhe convida a abrandar e a viver com mais intenção.
Casa de Hóspedes Independente
Perfeita para receber, rentabilizar ou simplesmente dar mais liberdade:
- Totalmente separada da casa principal
- Sala, quarto e casa de banho
- Espaço funcional e acolhedor
Ideal para receber visitas com total privacidade. Totalmente separada da moradia principal, esta T1 é perfeita para receber amigos, familiares ou até rentabilizar.
- Sala com sofá-cama;
- Quarto com 2 camas individuais;
- Casa de banho com duche;
- Arrecadação.
O verdadeiro coração da propriedade: A piscina
A zona da piscina, com vista aberta sobre a natureza, é o ponto de encontro perfeito:
para mergulhos ao fim do dia, leituras ao sol ou longos finais de tarde com amigos.
Exterior pensado para viver
Um terreno que convida ao prazer simples:
- Jardim com rega automática
- Árvores de fruto, videiras e horta
- Zona de lazer com churrasqueira, forno a lenha e cozinha exterior
- Telheiro para várias viaturas
- Armazém e arrecadações
Aqui, cada canto tem potencial, seja para relaxar, receber ou criar.
Para quem é este lugar?
Para quem quer sair da correria e viver com mais qualidade
Para casa de férias ou escapadelas
Para quem sente que o corpo pede natureza, silêncio e espaço
Para um eventual projeto turístico
Simples. Bonito. Verdadeiramente Alentejano.
Marque já a sua visita e descubra este refúgio de sonho!
Consigo sempre na procura de imóvel | 3 razões para comprar com a Zome
+ Acompanhamento
Com uma preparação e experiência única no mercado imobiliário, os consultores Zome põem toda a sua dedicação em dar-lhe o melhor acompanhamento, orientando-o com a máxima confiança, na direção certa das suas necessidades e ambições.
Daqui para a frente, vamos criar uma relação próxima e escutar com atenção as suas expectativas, porque a nossa prioridade é a sua felicidade!
Porque é importante que sinta que está acompanhado, e que estamos consigo sempre.
+ Simples
Os consultores Zome têm uma formação única no mercado, ancorada na partilha de experiência prática entre profissionais e fortalecida pelo conhecimento de neurociência aplicada que lhes permite simplificar e tornar mais eficaz a sua experiência imobiliária.
Deixe para trás os pesadelos burocráticos porque na Zome encontra o apoio total de uma equipa experiente e multidisciplinar que lhe dá suporte prático em todos os aspetos fundamentais, para que a sua experiência imobiliária supere as expectativas.
+ Feliz
O nosso maior valor é entregar-lhe felicidade! Liberte-se de preocupações e ganhe o tempo de qualidade que necessita para se dedicar ao que lhe faz mais feliz.
Agimos diariamente para trazer mais valor à sua vida com o aconselhamento fiável de que precisa para, juntos, conseguirmos atingir os melhores resultados.
Com a Zome nunca vai estar perdido ou desacompanhado e encontrará algo que não tem preço: a sua máxima tranquilidade!
É assim que se vai sentir ao longo de toda a experiência: Tranquilo, seguro, confortável e... FELIZ!
Notas:
1. Caso seja um consultor imobiliário, este imóvel está disponível para partilha de negócio. Não hesite em apresentar aos seus clientes compradores e fale connosco para agendar a sua visita.
2. Para maior facilidade na identificação deste imóvel, por favor, refira o respetivo ID ZMPT ou o respetivo agente que lhe tenha enviado a sugestão.
Localização
Monte Mirante, Foros da Casa Nova
São Domingos e Vale de Água, Santiago do Cacém, Setúbal
A localização exacta do imóvel não está disponível. O mapa apresenta a zona aproximada.
Informação do anúncio
ID do anúncio
470985
Referência Externa
ZMPT552646
Atualizado em
26/04/2026 06:04:08
Quinta T5 para Venda em São Domingos e Vale de Água