Negócio para Venda em Custóias, Leça do Balio e Guifões
264.000 €
Tipo
Negócio
Negócio
Venda
Casas de Banho
1
Garagem
1 lugar
Condição
Novo
Certificado Energético
D
Descrição
Identificação do imóvel: ZMPT559437
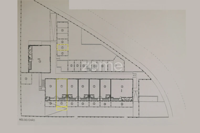
Loja no RC, versátil para Estúdio, Atelier, Escritório, com 2 pisos, Garagem fechada na cave, Armazém, 1 WC, Sul, Poente, 2 Aparcamentos, Rua de S. Gens, Sra Hora, Matosinhos.
Preço de venda da sociedade limitada (Traço Atual) sujeito a consulta. Sociedade com 25 anos de atividade no mercado português e estrangeiro. Tem loja online bem organizada e estruturada com vendas para todo o mundo, sendo de gestão directa através de software desenvolvido para a empresa. Imagem corporativa da empresa moderna e atraente. Vendas para clientes finais em loja física, loja online e profissionais do ramo de Decoração e Iluminação.
Morada: (Rua de S. Gens 3444A, 4460-409 Sra da Hora, Matosinhos)
https://goo.gl/maps/LaXdsbCSMsdCcLf26
Vídeo Youtube:
https://youtu.be/i6xVuEUhpK8
ÁREAS:
- Área bruta privativa: 60m²
- Área bruta dependente: 117 m²
- Área total: 177m²
VALORES:
Valor patrimonial: 75.421,97€ (ano 2022)
IMI: 282.83€/ano
Condomínio: 27.41€/mês
CARACTERÍSTICAS:
- Para vários fins, ideal para continuar o ramo de decoração e iluminação, bastante flexibilidade do espaço, exemplo: pequena empresa, serviços, comércio, escritório, atelier, estúdio, armazém...
- Certificado Energético "D"
- 1 WC (lavatório, espelho, sanita)
- 2 Entradas (entrada principal pelo R/C e outra entrada pela garagem na cave)
- 2 Lugares de aparcamento (Frente e Traseiras)
- 2 Pisos
- 5 Luminárias de teto fluorescentes na cave
- 8 Frações no prédio (lavandaria, cabeleireiro, centro de estética, stand de automóveis, loja de máquinas e ferramentas, centro veterinário,...)
- Acesso para pessoas com mobilidade reduzida
- Ar condicionado na loja (máquina encontra-se na cobertura do edifício)
- Atualmente em funcionamento: empresa de decoração e iluminação
- Áudio-porteiro na loja
- Câmaras de vídeo (3un)
- Caixa de saneamento na cave (pode ter WC + cozinha na cave)
- Cave com prateleiras e mesas de trabalho incluídas
- Certidão do Registo Predial: "ESTABELECIMENTO na cave e rés-do-chão destinado a atividades do ramo alimentar, prestação de serviços e outras que não exijam alvará de sanidade ou de indústria, e dois lugares de estacionamento no logradouro."
- Destinada a comércio / Afetação: Comércio
- Escada de acesso à cave com janelas de iluminação a todo o comprimento
- Estacionamento à porta para Clientes
- Exterior em calçada de cubos de granito 5x5
- Extintor e sinalética de segurança
- Garagem fechada para 1 ou 2 viaturas
- Iluminação de teto em sanca e projetores
- Licença de Utilização de 2002 (21 anos)
- Luminosidade
- Loja para Atelier / Estúdio ou Escritório com Armazém e garagem privativa
- Mobiliário da loja não incluído
- Montra principal voltada a Poente, envidraçada
- Permite transformação:
- do interior para outros fins e ramos de atividade
- criação de mais divisões, quer no R/C, quer na cave
- criação na cave de WC ou kitchenette / cozinha
- Porta automática na cave com 3.5 m de largura
- Revestimento exterior do edifício a tijolo burro
- Privacidade e sigilo
- Próximo da futura Estação de METRO Xanana Gusmão, a 100 m
- Rodapés em aço inox
- Tomadas da marca alemã "JUNG"
- União de Freguesias de São Mamede Infesta e Senhora da Hora
- Ventilação normal na cave. Pré-instalação de ar condicionado na cave
- Vídeo-porteiro na cave
- Zona com autocarros permanentes e excelentes acessos
- Zona dos Caulinos / Montes Caulinos
DIMENSÕES:
- Escada: Comp: 4.784m x Larg: 0.977m (janelas do lado Nascente)
- WC: Comp: 1.854m x ( Lmáx: 1.48m e Lmín: 1.10m)
- Montra: Comp: 4.741m x Alt: 2.638m
- Loja: Larg: 4.809m x (Cmáx 8.38m ou Cmín 6.809m) + Larg: 2.77m x Comp: 1.598m
- Escritório de apoio na Cave: Larg: 2.416m x Comp: 5.515m x Alt: 2.717m. Porta com abertura de 0.872m
- Cave: Larg: 9.548m x Comp: 8.562m
- Aproveitamento de Vão de escada: Comp: 2.857 x Larg: 0.9m
DISTÂNCIAS:
- Acessos rápidos: VCI, Via Norte, Circunvalação, Cruzamento de Montes Burgos
- 100m futura Estação de METRO Xanana Gusmão
- 100m da Av. Xanana Gusmão
- 550m da Escola Básica Quinta de S. Gens
- 600m das Piscinas de Custóias
- 650m do City Golf
- 650m da Bomba de Gasolina da GALP
- 650m da Escola Básica
- 750m da Estrada da Circunvalação
- 750m do Padroense Futebol Clube
- 900m de Creche/Infantário ABC
- 1.2km da Nasamotor
- 1.3km do Auditório Padrão da Légua
- 1.5km do Colégio Efanor
- 1.7km do CONTINENTE
- 1.7km do PINGO DOCE
- 1.8km do LIDL
- 2.0km do Norte-Shopping
- 2.4km da Escola Secundária Senhora da Hora
- 2.6km da Filinto Mota-Citroen
- 3.4km do HOSPITAL da Prelada
- 4.3km do HOSPITAL de S. João
NOTA: Caso seja um consultor imobiliário, este imóvel está disponível para partilha de negócio.
É possível equacionar negócio de venda da sociedade de decoração e iluminação.
Faça Proposta de Compra!
3 razões para comprar com a Zome
+ acompanhamento
Com uma preparação e experiência única no mercado imobiliário, os consultores Zome põem toda a sua dedicação em dar-lhe o melhor acompanhamento, orientando-o com a máxima confiança, na direção certa das suas necessidades e ambições.
Daqui para a frente, vamos criar uma relação próxima e escutar com atenção as suas expectativas, porque a nossa prioridade é a sua felicidade! Porque é importante que sinta que está acompanhado, e que estamos consigo sempre.
+ simples
Os consultores Zome têm uma formação única no mercado, ancorada na partilha de experiência prática entre profissionais e fortalecida pelo conhecimento de neurociência aplicada que lhes permite simplificar e tornar mais eficaz a sua experiência imobiliária.
Deixe para trás os pesadelos burocráticos porque na Zome encontra o apoio total de uma equipa experiente e multidisciplinar que lhe dá suporte prático em todos os aspetos fundamentais, para que a sua experiência imobiliária supere as expectativas.
+ feliz
O nosso maior valor é entregar-lhe felicidade!
Liberte-se de preocupações e ganhe o tempo de qualidade que necessita para se dedicar ao que lhe faz mais feliz.
Agimos diariamente para trazer mais valor à sua vida com o aconselhamento fiável de que precisa para, juntos, conseguirmos atingir os melhores resultados.
Com a Zome nunca vai estar perdido ou desacompanhado e encontrará algo que não tem preço: a sua máxima tranquilidade!
É assim que se vai sentir ao longo de toda a experiência: Tranquilo, seguro, confortável e... FELIZ!
Notas:
1. Caso seja um consultor imobiliário, este imóvel está disponível para partilha de negócio. Não hesite em apresentar aos seus clientes compradores e fale connosco para agendar a sua visita.
2. Para maior facilidade na identificação deste imóvel, por favor, refira o respetivo ID ZMPT ou o respetivo agente que lhe tenha enviado a sugestão.
Loja no RC, versátil para Estúdio, Atelier, Escritório, com 2 pisos, Garagem fechada na cave, Armazém, 1 WC, Sul, Poente, 2 Aparcamentos, Rua de S. Gens, Sra Hora, Matosinhos.
Preço de venda da sociedade limitada (Traço Atual) sujeito a consulta. Sociedade com 25 anos de atividade no mercado português e estrangeiro. Tem loja online bem organizada e estruturada com vendas para todo o mundo, sendo de gestão directa através de software desenvolvido para a empresa. Imagem corporativa da empresa moderna e atraente. Vendas para clientes finais em loja física, loja online e profissionais do ramo de Decoração e Iluminação.
Morada: (Rua de S. Gens 3444A, 4460-409 Sra da Hora, Matosinhos)
https://goo.gl/maps/LaXdsbCSMsdCcLf26
Vídeo Youtube:
https://youtu.be/i6xVuEUhpK8
ÁREAS:
- Área bruta privativa: 60m²
- Área bruta dependente: 117 m²
- Área total: 177m²
VALORES:
Valor patrimonial: 75.421,97€ (ano 2022)
IMI: 282.83€/ano
Condomínio: 27.41€/mês
CARACTERÍSTICAS:
- Para vários fins, ideal para continuar o ramo de decoração e iluminação, bastante flexibilidade do espaço, exemplo: pequena empresa, serviços, comércio, escritório, atelier, estúdio, armazém...
- Certificado Energético "D"
- 1 WC (lavatório, espelho, sanita)
- 2 Entradas (entrada principal pelo R/C e outra entrada pela garagem na cave)
- 2 Lugares de aparcamento (Frente e Traseiras)
- 2 Pisos
- 5 Luminárias de teto fluorescentes na cave
- 8 Frações no prédio (lavandaria, cabeleireiro, centro de estética, stand de automóveis, loja de máquinas e ferramentas, centro veterinário,...)
- Acesso para pessoas com mobilidade reduzida
- Ar condicionado na loja (máquina encontra-se na cobertura do edifício)
- Atualmente em funcionamento: empresa de decoração e iluminação
- Áudio-porteiro na loja
- Câmaras de vídeo (3un)
- Caixa de saneamento na cave (pode ter WC + cozinha na cave)
- Cave com prateleiras e mesas de trabalho incluídas
- Certidão do Registo Predial: "ESTABELECIMENTO na cave e rés-do-chão destinado a atividades do ramo alimentar, prestação de serviços e outras que não exijam alvará de sanidade ou de indústria, e dois lugares de estacionamento no logradouro."
- Destinada a comércio / Afetação: Comércio
- Escada de acesso à cave com janelas de iluminação a todo o comprimento
- Estacionamento à porta para Clientes
- Exterior em calçada de cubos de granito 5x5
- Extintor e sinalética de segurança
- Garagem fechada para 1 ou 2 viaturas
- Iluminação de teto em sanca e projetores
- Licença de Utilização de 2002 (21 anos)
- Luminosidade
- Loja para Atelier / Estúdio ou Escritório com Armazém e garagem privativa
- Mobiliário da loja não incluído
- Montra principal voltada a Poente, envidraçada
- Permite transformação:
- do interior para outros fins e ramos de atividade
- criação de mais divisões, quer no R/C, quer na cave
- criação na cave de WC ou kitchenette / cozinha
- Porta automática na cave com 3.5 m de largura
- Revestimento exterior do edifício a tijolo burro
- Privacidade e sigilo
- Próximo da futura Estação de METRO Xanana Gusmão, a 100 m
- Rodapés em aço inox
- Tomadas da marca alemã "JUNG"
- União de Freguesias de São Mamede Infesta e Senhora da Hora
- Ventilação normal na cave. Pré-instalação de ar condicionado na cave
- Vídeo-porteiro na cave
- Zona com autocarros permanentes e excelentes acessos
- Zona dos Caulinos / Montes Caulinos
DIMENSÕES:
- Escada: Comp: 4.784m x Larg: 0.977m (janelas do lado Nascente)
- WC: Comp: 1.854m x ( Lmáx: 1.48m e Lmín: 1.10m)
- Montra: Comp: 4.741m x Alt: 2.638m
- Loja: Larg: 4.809m x (Cmáx 8.38m ou Cmín 6.809m) + Larg: 2.77m x Comp: 1.598m
- Escritório de apoio na Cave: Larg: 2.416m x Comp: 5.515m x Alt: 2.717m. Porta com abertura de 0.872m
- Cave: Larg: 9.548m x Comp: 8.562m
- Aproveitamento de Vão de escada: Comp: 2.857 x Larg: 0.9m
DISTÂNCIAS:
- Acessos rápidos: VCI, Via Norte, Circunvalação, Cruzamento de Montes Burgos
- 100m futura Estação de METRO Xanana Gusmão
- 100m da Av. Xanana Gusmão
- 550m da Escola Básica Quinta de S. Gens
- 600m das Piscinas de Custóias
- 650m do City Golf
- 650m da Bomba de Gasolina da GALP
- 650m da Escola Básica
- 750m da Estrada da Circunvalação
- 750m do Padroense Futebol Clube
- 900m de Creche/Infantário ABC
- 1.2km da Nasamotor
- 1.3km do Auditório Padrão da Légua
- 1.5km do Colégio Efanor
- 1.7km do CONTINENTE
- 1.7km do PINGO DOCE
- 1.8km do LIDL
- 2.0km do Norte-Shopping
- 2.4km da Escola Secundária Senhora da Hora
- 2.6km da Filinto Mota-Citroen
- 3.4km do HOSPITAL da Prelada
- 4.3km do HOSPITAL de S. João
NOTA: Caso seja um consultor imobiliário, este imóvel está disponível para partilha de negócio.
É possível equacionar negócio de venda da sociedade de decoração e iluminação.
Faça Proposta de Compra!
3 razões para comprar com a Zome
+ acompanhamento
Com uma preparação e experiência única no mercado imobiliário, os consultores Zome põem toda a sua dedicação em dar-lhe o melhor acompanhamento, orientando-o com a máxima confiança, na direção certa das suas necessidades e ambições.
Daqui para a frente, vamos criar uma relação próxima e escutar com atenção as suas expectativas, porque a nossa prioridade é a sua felicidade! Porque é importante que sinta que está acompanhado, e que estamos consigo sempre.
+ simples
Os consultores Zome têm uma formação única no mercado, ancorada na partilha de experiência prática entre profissionais e fortalecida pelo conhecimento de neurociência aplicada que lhes permite simplificar e tornar mais eficaz a sua experiência imobiliária.
Deixe para trás os pesadelos burocráticos porque na Zome encontra o apoio total de uma equipa experiente e multidisciplinar que lhe dá suporte prático em todos os aspetos fundamentais, para que a sua experiência imobiliária supere as expectativas.
+ feliz
O nosso maior valor é entregar-lhe felicidade!
Liberte-se de preocupações e ganhe o tempo de qualidade que necessita para se dedicar ao que lhe faz mais feliz.
Agimos diariamente para trazer mais valor à sua vida com o aconselhamento fiável de que precisa para, juntos, conseguirmos atingir os melhores resultados.
Com a Zome nunca vai estar perdido ou desacompanhado e encontrará algo que não tem preço: a sua máxima tranquilidade!
É assim que se vai sentir ao longo de toda a experiência: Tranquilo, seguro, confortável e... FELIZ!
Notas:
1. Caso seja um consultor imobiliário, este imóvel está disponível para partilha de negócio. Não hesite em apresentar aos seus clientes compradores e fale connosco para agendar a sua visita.
2. Para maior facilidade na identificação deste imóvel, por favor, refira o respetivo ID ZMPT ou o respetivo agente que lhe tenha enviado a sugestão.
Localização
Rua de São Gens - Impares de 2747 a 3227
Custóias, Leça do Balio e Guifões, Matosinhos, Porto
A localização exacta do imóvel não está disponível. O mapa apresenta a zona aproximada.
Informação do anúncio
ID do anúncio
548213
Referência Externa
ZMPT559437
Atualizado em
26/04/2026 06:01:18
Anunciante
Chamada para a rede fixa nacional
ZOME Porto - CEC
AMI 17432
Referência do imóvel:
ZMPT559437
Negócio para Venda em Custóias, Leça do Balio e Guifões