Voltar
Terreno para Venda em Rio Tinto Foto 1
Terreno para Venda em Rio Tinto Foto 2
Terreno para Venda em Rio Tinto Foto 3
Terreno para Venda em Rio Tinto Foto 4
Terreno para Venda em Rio Tinto Foto 5

Terreno para Venda em Rio Tinto

549.000 €

Tipo
Terreno
Negócio
Venda
Ano de Construção
2024
Área Bruta
696 m²
Área do Terreno
828 m²

Terreno em Rio Tinto de 696,00 m²

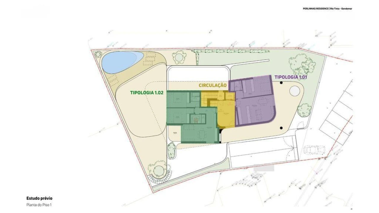
Terreno para Construção de Empreendimento Multifamiliar em Rio Tinto

Procura uma excelente oportunidade de investimento numa localização privilegiada?
Este terreno já loteado, no coração de Rio Tinto, oferece potencial para a construção de um empreendimento multifamiliar com 8 frações e amplas áreas exteriores.

Principais Características:

Área Bruta de Construção possível: 1.620 m²

Possibilidade de avançar com o projeto anteriormente criado ou submeter um novo projeto com a mesma área construtiva;

Estudo de viabilidade anterior para 8 frações (5 T2 e 3 T3), todas com lugar de garagem e arrumos;

Possibilidade de criar condomínio fechado com piscina, parque infantil e zona de convívio com churrasqueira;

Localização central: a 700m da Estação de Metro de Carreira, 900 m da estação de Metro da Campainha e 1 km da estação de comboios de Rio Tinto;

Próximo de diversos serviços e infraestruturas, como o Centro Comercial Parque Nascente, o Retail Park Fábrica do Cobre e o Hospital de S. João.

Com uma área de implantação de 408 m² e 4 pisos (incluindo cave), o terreno permite desenvolver um projeto com espaços amplos e modernos — ideais para famílias que procuram qualidade de vida numa zona em pleno crescimento.

Destaques:

- Potencial para 5 apartamentos T2 e 3 T3 com varandas e áreas interiores generosas;

- Estacionamento privativo para cada fração;

- Excelentes acessos ao Porto, a apenas 5 minutos de distância;

- Zona envolvente com hipermercados, escolas e serviços a menos de 3 km.

Uma oportunidade única para promotores e investidores, com excelente viabilidade para um projeto que valorize o conforto e o lazer num ambiente moderno e exclusivo.

O meu nome é Helena Fernandes, consultora imobiliária independente da iad, a operar no distrito do Porto com toda a dedicação e profissionalismo. Desde a sua criação em 2008, em França, a iad tem expandido para diferentes países, estando presente em Portugal desde 2015. A nossa abordagem moderna e digital dispensa lojas físicas, o que me permite oferecer-lhe um serviço personalizado, onde quer que esteja. Com alicerces firmados no profissionalismo e na transparência, pretendo superar as suas expectativas.

Ao escolher um consultor iad, não só beneficia da experiência local, como também da vasta rede internacional de consultores imobiliários iad. Com clientes espalhados por todo o mundo, estamos preparados para maximizar o potencial de venda da sua propriedade, assegurando a sua satisfação em todos os momentos do processo. Faça a escolha certa para comprar ou vender a sua casa. Escolha a iad e experimente a excelência no serviço imobiliário. Estou disponível para ajudar a alcançar os melhores resultados.
#ref: 127125

Localização

Rio Tinto, Gondomar, Porto

Informação do anúncio

ID do anúncio 866195
Referência Externa 127125
Atualizado em 11/01/2026 00:17:40
IAD Portugal AMI 11220
Referência do imóvel: 127125
Phone
Chamada para a rede fixa nacional
IAD Portugal AMI 11220
Referência do imóvel: 127125
Phone
Chamada para a rede fixa nacional
1 / 26
Terreno para Venda em Rio Tinto Foto 1
Terreno para Venda em Rio Tinto Foto 2
Terreno para Venda em Rio Tinto Foto 3
Terreno para Venda em Rio Tinto Foto 4
Terreno para Venda em Rio Tinto Foto 5
Terreno para Venda em Rio Tinto Foto 6
Terreno para Venda em Rio Tinto Foto 7
Terreno para Venda em Rio Tinto Foto 8
Terreno para Venda em Rio Tinto Foto 9
Terreno para Venda em Rio Tinto Foto 10
Terreno para Venda em Rio Tinto Foto 11
Terreno para Venda em Rio Tinto Foto 12
Terreno para Venda em Rio Tinto Foto 13
Terreno para Venda em Rio Tinto Foto 14
Terreno para Venda em Rio Tinto Foto 15
Terreno para Venda em Rio Tinto Foto 16
Terreno para Venda em Rio Tinto Foto 17
Terreno para Venda em Rio Tinto Foto 18
Terreno para Venda em Rio Tinto Foto 19
Terreno para Venda em Rio Tinto Foto 20
Terreno para Venda em Rio Tinto Foto 21
Terreno para Venda em Rio Tinto Foto 22
Terreno para Venda em Rio Tinto Foto 23
Terreno para Venda em Rio Tinto Foto 24
Terreno para Venda em Rio Tinto Foto 25
Terreno para Venda em Rio Tinto Foto 26
Terreno para Venda em Rio Tinto
Clicky