Escritório para Venda em Belém
2.820.000 €
Tipo
Escritório
Negócio
Venda
Ano de Construção
2001
Garagem
19 lugares
Condição
Usado
Certificado Energético
E
Área do Terreno
2400 m²
Restelo. Escritório/Loja. Venda/Arrendamento. 19 Lugares de estacionamento.
O escritório situa-se no Restelo, tratando-se de um espaço de escritório/loja, inserido numa zona residencial, com uma envolvente centrada na habitação, havendo algum apoio comercial ao nível dos pisos térreos dos edifícios que compõem o conjunto urbano vulgarmente conhecido como Torres do Restelo.
Em termos de enquadramento e localização, trata-se de uma zona estabilizada, localizada no alto do Restelo com vista sobre o Rio Tejo, junto a vários equipamentos tais como Escola Básica e Secundária, Igreja, Áreas comerciais e Estádio do Belenenses.
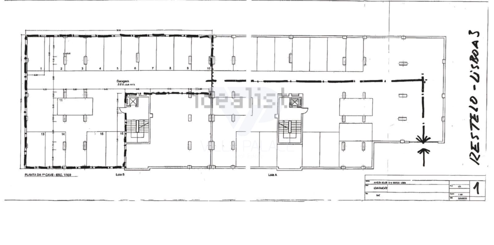
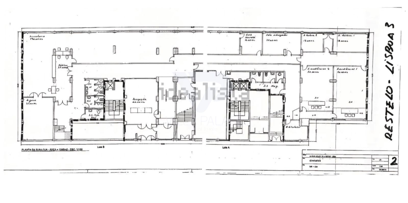
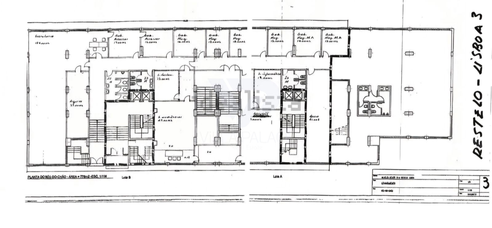
O imóvel está inserido num prédio urbano composto por 16 pisos, sendo 2 caves para estacionamento privativo, zona de comércio e escritórios, distribuída por 3 pisos (Sub-Loja, R/Chão, Sobre-Loja) e 2 blocos habitacionais, cada um deles com 11 pisos destinados a habitação.
O edifício foi construído a meio da década de 80, tendo sido objecto de obras de manutenção exterior em 2002.
Tem uma estrutura resistente de betão armado, com paredes exteriores de alvenaria de tijolo, rebocadas e pintadas. Os vãos são compostos por caixilharias de alumínio com vidros simples.
A fracção em comercialização engloba todo o piso da Sub-Loja, parte do piso do R/Chão e todo o piso da sobre-loja, com uma área total de 2.400 m2, tendo ainda 19 lugares de estacionamento na Cave.
Os acabamentos são constituídos por divisórias em alvenarias ou pladur, pavimentos em madeira e pedra nas áreas de trabalho, mosaico ou vinílico na circulação, tectos falsos, sistema de ar condicionado, sistema de detecção de incêndio e intrusão e rede estruturada de dados e voz.
A circulação entre os pisos de Sub-Loja, R/Chão e Sobre-Loja faz-se através de escadas interiores.
A área de escritórios tem 4 entradas a partir do exterior.
O valor de condomínio trimestral estimado para o ano de 2024 é de € 2.151,30.
Em termos de enquadramento e localização, trata-se de uma zona estabilizada, localizada no alto do Restelo com vista sobre o Rio Tejo, junto a vários equipamentos tais como Escola Básica e Secundária, Igreja, Áreas comerciais e Estádio do Belenenses.
O imóvel está inserido num prédio urbano composto por 16 pisos, sendo 2 caves para estacionamento privativo, zona de comércio e escritórios, distribuída por 3 pisos (Sub-Loja, R/Chão, Sobre-Loja) e 2 blocos habitacionais, cada um deles com 11 pisos destinados a habitação.
O edifício foi construído a meio da década de 80, tendo sido objecto de obras de manutenção exterior em 2002.
Tem uma estrutura resistente de betão armado, com paredes exteriores de alvenaria de tijolo, rebocadas e pintadas. Os vãos são compostos por caixilharias de alumínio com vidros simples.
A fracção em comercialização engloba todo o piso da Sub-Loja, parte do piso do R/Chão e todo o piso da sobre-loja, com uma área total de 2.400 m2, tendo ainda 19 lugares de estacionamento na Cave.
Os acabamentos são constituídos por divisórias em alvenarias ou pladur, pavimentos em madeira e pedra nas áreas de trabalho, mosaico ou vinílico na circulação, tectos falsos, sistema de ar condicionado, sistema de detecção de incêndio e intrusão e rede estruturada de dados e voz.
A circulação entre os pisos de Sub-Loja, R/Chão e Sobre-Loja faz-se através de escadas interiores.
A área de escritórios tem 4 entradas a partir do exterior.
O valor de condomínio trimestral estimado para o ano de 2024 é de € 2.151,30.
Localização
Belém, Lisboa, Lisboa
Informação do anúncio
ID do anúncio
1148743
Referência Externa
N/02172
Atualizado em
02/05/2026 08:10:00
Escritório para Venda em Belém