Apartamento T2 para Venda em Gulpilhares e Valadares
425.000 €
Tipo
Apartamento
Negócio
Venda
Ano de Construção
2027
Quartos
2
Casas de Banho
3
Área Bruta
178 m²
Área Útil
120 m²
Condição
Novo
Certificado Energético
A+
WHITE II praias,T2 Duplex, ótimas áreas, garagem BOX 2 carros
Apartamento T2 DUPLEX com excelentes áreas e varandas, sala com "ILHA", 2 suítes, garagem individual BOX para 2 carros
Espaço, qualidade, funcionalidade e conforto!
Edifício WHITE II by LGPlano - Vila Nova de Gaia / Porto
Junto às praias, na zona de Francelos;
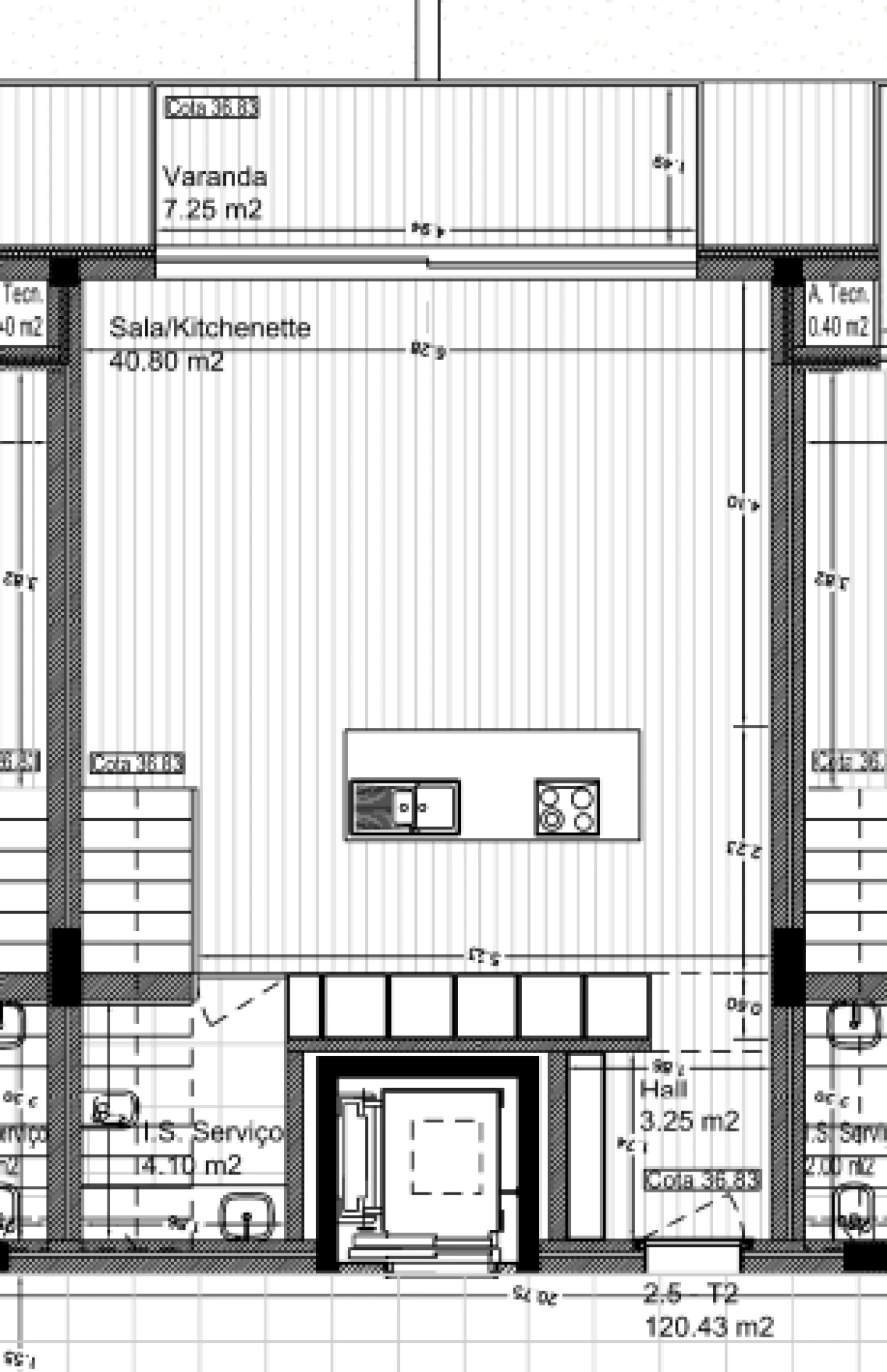
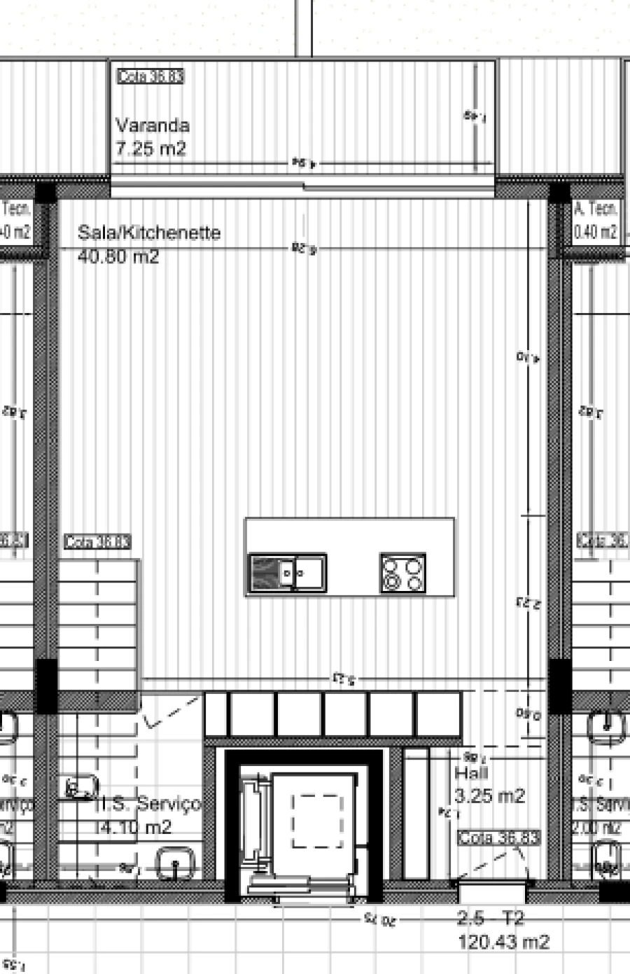
FRAÇAO R – HAB. 2.5
Possui sala / cozinha em open-space com 40,80 m2 com varanda de 7,25 m2 a poente, cozinha equipada MIELE, com “ILHA”, hall de entrada 3,2 m2 com armário e WC social com 4,10 m2, no piso superior tem dois quartos suíte, um com a área de 20,97 m2 e acesso a terraço de 6,72 m2 orientado a nascente e outro com 19,42 m2 e acesso a terraço de 10,12 m2 a poente com vista de mar, com ótimos roupeiros, lavandaria com 3,77 m2 no hall dos quartos, este com claraboia tipo “velux”.
(VENDA DIRETA - somos os construtores)
Área bruta total de 178,43 m2, 120,43 m2 de área coberta (ABP) e 24,09 m2 de varandas e terraços. Garagem individual BOX para 2 carros, com 33,75 m2.
Último andar.
Orientação solar: Nascente / Poente;
Edifício WHITE II by LGPlano:
O edifício WHITE II está situado a apenas 650 metros da praia, oferecendo um excelente equilíbrio entre a proximidade do mar e a tranquilidade residencial.
Aqui poderá desfrutar de magníficas praias e dos extensos percursos pedonais da orla marítima, que lhe proporcionarão uma saudável qualidade de vida.
Porque a vida não tem de ser monótona e aborrecida, o WHITE II sugere-lhe o dinamismo de uma vida ativa, de momentos e aventuras com o oceano em pano de fundo, proporcionando-lhe a criação de laços, memórias e uma harmoniosa união familiar.
Este empreendimento será composto por 22 apartamentos de tipologias T0, T1+Office, T2+Office, T2 Duplex, T3 e T3+Office Duplex, distribuídos por 4 pisos, com áreas brutas compreendidas entre os 63 m2 e os 295 m2, sendo que alguns deles beneficiarão de terraços ou de um jardim com deck privado.
Com um design moderno e diferenciado, o edifício oferece apartamentos projetados para potenciar o conforto de toda a família, com jardins privativos que permitem a construção da sua piscina, generosos terraços, espaços Office e opções em duplex, que promovem um ambiente tranquilo e relaxante, atendendo a diferentes necessidades e estilos de vida.
Possui fachada com paredes duplas, sendo a parede exterior em tijolo face à vista da “Vale da Gândara”, referência “Branco Alcácer”, que garante uma elevada inércia térmica, excelente desempenho acústico e grande resistência ao fogo, além dos baixos custos de manutenção, zonas comuns com excelente decoração, caixilharia minimalista com corte térmico, vidro duplo térmico, sendo o vidro exterior laminado para maior segurança e estores elétricos pelo exterior em alumínio perfilado com isolamento de poliuretano, estacionamento na cave reservado e acessos para mobilidade reduzida.
As áreas interiores são generosas, criadas num conceito de modernidade e funcionalidade, onde realçam os espaços ”Office” e os acabamentos, equipamentos e construção de qualidade “premium”.
Destacam-se as cozinhas equipadas com eletrodomésticos da MIELE, ar condicionado MITSUBISHI, bomba de calor, portas interiores lacadas de altura igual ao pé direito da habitação, soalho LINKFLOOR KINGDOM e cerâmicas da Porcelanosa, louças sanitárias suspensas, na zona de duche tem um nicho iluminado com LED para colocar o gel de banho e champô, tetos falsos com iluminação LED, portas de segurança, videoporteiro a cores e alarme completo nos apartamentos de rés do chão.
O Edifício WHITE2 by LGPlano promete ser um marco na região, oferecendo exclusividade, conforto e qualidade de vida.
Venha conhecer e descubra o seu novo lar!
Edifício WHITE II by LGPlano
EXCLUSIVE APARTMENTS
Siga-nos no Instagram!
lgplano_
Observações:
- As imagens apresentadas são virtuais, exemplificativas do tipo de acabamentos que irão ser utilizados e foram criadas com base num apartamento T2+Office com jardim.
Espaço, qualidade, funcionalidade e conforto!
Edifício WHITE II by LGPlano - Vila Nova de Gaia / Porto
Junto às praias, na zona de Francelos;
FRAÇAO R – HAB. 2.5
Possui sala / cozinha em open-space com 40,80 m2 com varanda de 7,25 m2 a poente, cozinha equipada MIELE, com “ILHA”, hall de entrada 3,2 m2 com armário e WC social com 4,10 m2, no piso superior tem dois quartos suíte, um com a área de 20,97 m2 e acesso a terraço de 6,72 m2 orientado a nascente e outro com 19,42 m2 e acesso a terraço de 10,12 m2 a poente com vista de mar, com ótimos roupeiros, lavandaria com 3,77 m2 no hall dos quartos, este com claraboia tipo “velux”.
(VENDA DIRETA - somos os construtores)
Área bruta total de 178,43 m2, 120,43 m2 de área coberta (ABP) e 24,09 m2 de varandas e terraços. Garagem individual BOX para 2 carros, com 33,75 m2.
Último andar.
Orientação solar: Nascente / Poente;
Edifício WHITE II by LGPlano:
O edifício WHITE II está situado a apenas 650 metros da praia, oferecendo um excelente equilíbrio entre a proximidade do mar e a tranquilidade residencial.
Aqui poderá desfrutar de magníficas praias e dos extensos percursos pedonais da orla marítima, que lhe proporcionarão uma saudável qualidade de vida.
Porque a vida não tem de ser monótona e aborrecida, o WHITE II sugere-lhe o dinamismo de uma vida ativa, de momentos e aventuras com o oceano em pano de fundo, proporcionando-lhe a criação de laços, memórias e uma harmoniosa união familiar.
Este empreendimento será composto por 22 apartamentos de tipologias T0, T1+Office, T2+Office, T2 Duplex, T3 e T3+Office Duplex, distribuídos por 4 pisos, com áreas brutas compreendidas entre os 63 m2 e os 295 m2, sendo que alguns deles beneficiarão de terraços ou de um jardim com deck privado.
Com um design moderno e diferenciado, o edifício oferece apartamentos projetados para potenciar o conforto de toda a família, com jardins privativos que permitem a construção da sua piscina, generosos terraços, espaços Office e opções em duplex, que promovem um ambiente tranquilo e relaxante, atendendo a diferentes necessidades e estilos de vida.
Possui fachada com paredes duplas, sendo a parede exterior em tijolo face à vista da “Vale da Gândara”, referência “Branco Alcácer”, que garante uma elevada inércia térmica, excelente desempenho acústico e grande resistência ao fogo, além dos baixos custos de manutenção, zonas comuns com excelente decoração, caixilharia minimalista com corte térmico, vidro duplo térmico, sendo o vidro exterior laminado para maior segurança e estores elétricos pelo exterior em alumínio perfilado com isolamento de poliuretano, estacionamento na cave reservado e acessos para mobilidade reduzida.
As áreas interiores são generosas, criadas num conceito de modernidade e funcionalidade, onde realçam os espaços ”Office” e os acabamentos, equipamentos e construção de qualidade “premium”.
Destacam-se as cozinhas equipadas com eletrodomésticos da MIELE, ar condicionado MITSUBISHI, bomba de calor, portas interiores lacadas de altura igual ao pé direito da habitação, soalho LINKFLOOR KINGDOM e cerâmicas da Porcelanosa, louças sanitárias suspensas, na zona de duche tem um nicho iluminado com LED para colocar o gel de banho e champô, tetos falsos com iluminação LED, portas de segurança, videoporteiro a cores e alarme completo nos apartamentos de rés do chão.
O Edifício WHITE2 by LGPlano promete ser um marco na região, oferecendo exclusividade, conforto e qualidade de vida.
Venha conhecer e descubra o seu novo lar!
Edifício WHITE II by LGPlano
EXCLUSIVE APARTMENTS
Siga-nos no Instagram!
lgplano_
Observações:
- As imagens apresentadas são virtuais, exemplificativas do tipo de acabamentos que irão ser utilizados e foram criadas com base num apartamento T2+Office com jardim.
Localização
Gulpilhares e Valadares, Vila Nova de Gaia, Porto
Informação do anúncio
ID do anúncio
1159501
Referência Externa
25.001 R
Atualizado em
06/03/2026 09:31:27
Apartamento T2 para Venda em Gulpilhares e Valadares