Voltar
Terreno para Venda em Alfena Foto 1
Terreno para Venda em Alfena Foto 2
Terreno para Venda em Alfena Foto 3
Terreno para Venda em Alfena Foto 4
Terreno para Venda em Alfena Foto 5

Terreno para Venda em Alfena

92.000 €

Tipo
Terreno
Negócio
Venda
Condição
Novo
Certificado Energético
Não se aplica

Terreno para construção urbana

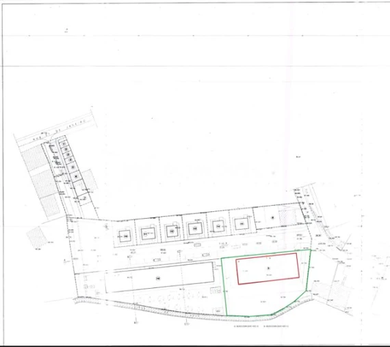
Terreno para construção urbana inserido em loteamento aprovado pela Câmara Municipal de Valongo, sito em Alfena, com as seguintes características:

Área total do lote: 1.782,00 m2;

Capacidade construtiva no âmbito do ordenamento do território.

Cave: 562,50 m2;
Andares: 825,00 m2;
Total de construção: 1.487,50 m2;
Implantação: 562,50 m2;

O lote possui 37,50 m de frente urbana, e 15,00 m de largura, com dois blocos distintos, um com capacidade construtiva de Cave, R/c + 2 (17,50 m de frente urbana), outro com capacidade de construção de Cave, R/c + 1 (20,00 m de frente urbana);

Número de frações previstas: 15, com lugares de estacionamento e arrumos na cave.

- Estação de comboios Cabeda - 2km
- Escola Básica de Cabeda - 900m
- Piscina Municipal de Alfena - 800m

MARQUE VISITA!!!

Localização

Alfena, Valongo, Porto

Informação do anúncio

ID do anúncio 1162596
Referência Externa 1367
Atualizado em 15/04/2025 14:36:49
DOMOVERSUS
Phone
Chamada para a rede móvel nacional
DOMOVERSUS
Phone
Chamada para a rede móvel nacional
1 / 10
Terreno para Venda em Alfena Foto 1
Terreno para Venda em Alfena Foto 2
Terreno para Venda em Alfena Foto 3
Terreno para Venda em Alfena Foto 4
Terreno para Venda em Alfena Foto 5
Terreno para Venda em Alfena Foto 6
Terreno para Venda em Alfena Foto 7
Terreno para Venda em Alfena Foto 8
Terreno para Venda em Alfena Foto 9
Terreno para Venda em Alfena Foto 10
Clicky