Voltar
Quinta T0 para Venda em Crespos e Pousada Foto 1
Quinta T0 para Venda em Crespos e Pousada Foto 2
Quinta T0 para Venda em Crespos e Pousada Foto 3
Quinta T0 para Venda em Crespos e Pousada Foto 4
Quinta T0 para Venda em Crespos e Pousada Foto 5

Quinta T0 para Venda em Crespos e Pousada

290.000 €

Tipo
Quinta
Negócio
Venda
Casas de Banho
5
Área Bruta
622 m²
Área Útil
620 m²
Condição
Para recuperar
Certificado Energético
Não se aplica
Área do Terreno
5200 m²

QUINTA COM PROJETO APROVADO EM CRESPOS, BRAGA

Propriedade única em Crespos, Braga, com 5.200 m² de terreno, projeto aprovado e enorme potencial para quem pretende construir numa zona tranquila, com espaço e liberdade para sonhar.

O terreno encontra-se dividido da seguinte forma:

940 m² em área urbana, com projeto aprovado e 622 m² de área de construção

4.200 m² em área de reserva, ideal para zona de lazer, horta, pomar ou expansão futura

Inclui ruínas em pedra, espigueiro e outros elementos tradicionais que valorizam o ambiente rural

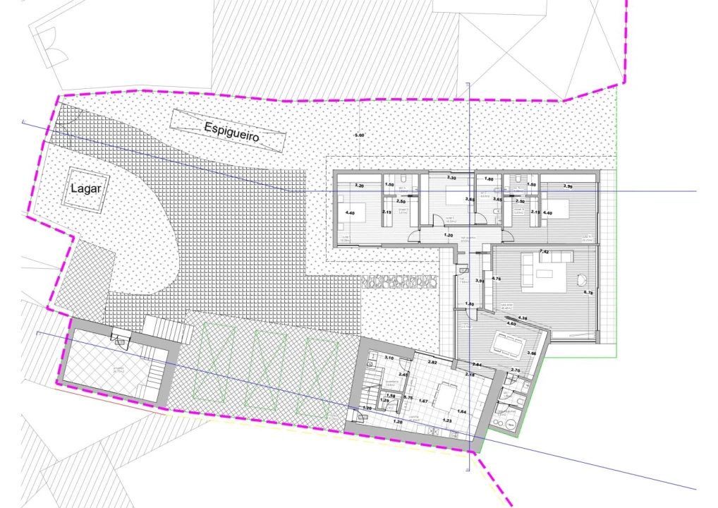
A moradia projetada está distribuída em dois pisos, com áreas amplas, três suites, sala de estar generosa, cozinha funcional, lavandaria e várias divisões técnicas, aliando conforto moderno à envolvência rústica do local. O lagar e espigueiro existentes podem ser reabilitados e integrados no projeto final.

O acesso ao terreno é feito por estrada pública, estando a propriedade bem inserida na malha local, com boa exposição solar e total privacidade.

Ideal para construtores, investidores ou quem procura um refúgio exclusivo nos arredores de Braga.

Marque já a sua visita com um Bestconsultor
[email protected]
934143771
252314007

Localização

Crespos e Pousada, Braga, Braga

Informação do anúncio

ID do anúncio 1221609
Referência Externa 6603
Atualizado em 07/06/2025 08:33:57
Best Best AMI 9610
Referência do imóvel: 6603
Phone
Chamada para a rede móvel nacional
Best Best AMI 9610
Referência do imóvel: 6603
Phone
Chamada para a rede móvel nacional
1 / 20
Quinta T0 para Venda em Crespos e Pousada Foto 1
Quinta T0 para Venda em Crespos e Pousada Foto 2
Quinta T0 para Venda em Crespos e Pousada Foto 3
Quinta T0 para Venda em Crespos e Pousada Foto 4
Quinta T0 para Venda em Crespos e Pousada Foto 5
Quinta T0 para Venda em Crespos e Pousada Foto 6
Quinta T0 para Venda em Crespos e Pousada Foto 7
Quinta T0 para Venda em Crespos e Pousada Foto 8
Quinta T0 para Venda em Crespos e Pousada Foto 9
Quinta T0 para Venda em Crespos e Pousada Foto 10
Quinta T0 para Venda em Crespos e Pousada Foto 11
Quinta T0 para Venda em Crespos e Pousada Foto 12
Quinta T0 para Venda em Crespos e Pousada Foto 13
Quinta T0 para Venda em Crespos e Pousada Foto 14
Quinta T0 para Venda em Crespos e Pousada Foto 15
Quinta T0 para Venda em Crespos e Pousada Foto 16
Quinta T0 para Venda em Crespos e Pousada Foto 17
Quinta T0 para Venda em Crespos e Pousada Foto 18
Quinta T0 para Venda em Crespos e Pousada Foto 19
Quinta T0 para Venda em Crespos e Pousada Foto 20
Planta 1 / 4
Quinta T0 para Venda em Crespos e Pousada Planta 1
Quinta T0 para Venda em Crespos e Pousada Planta 2
Quinta T0 para Venda em Crespos e Pousada Planta 3
Quinta T0 para Venda em Crespos e Pousada Planta 4
Clicky