Apartamento T0 para Venda em Bonfim
395.000 €
Tipo
Apartamento
Negócio
Venda
Ano de Construção
2024
Casas de Banho
1
Área Bruta
94 m²
Área Útil
67 m²
Condição
Renovado
Certificado Energético
C
Área do Terreno
82 m²
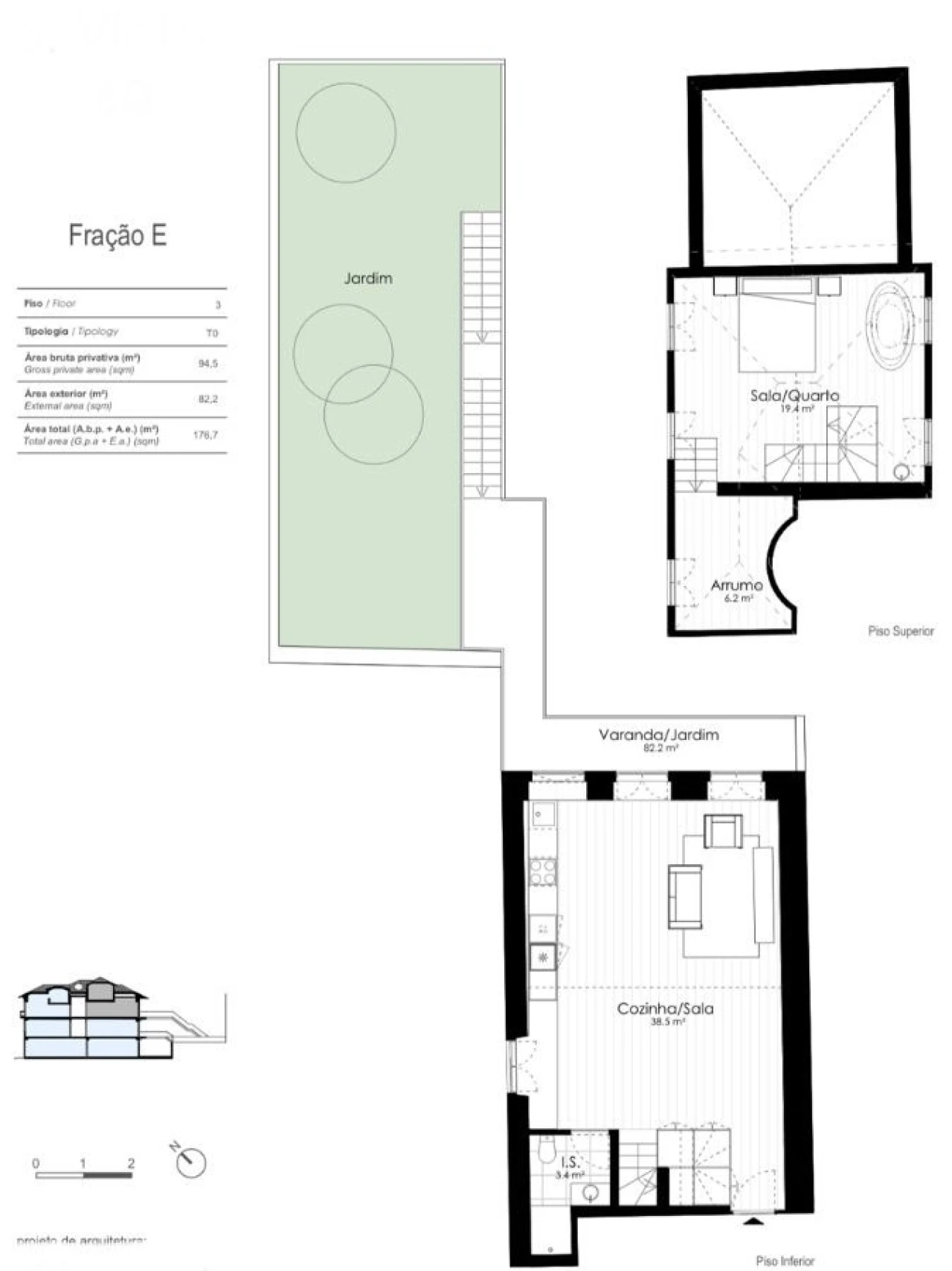
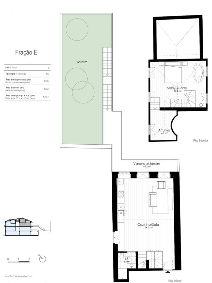
T0 Duplex quarto e escritorio separados e área exterior privativa de 82 m2 no Porto - Bonf
Tipologia T0 Duplex com quarto separado e escritório, e área exterior de 82,2 m²
Área Bruta : 94,5 m²
Área útil de 67,5 m²
Terraço e jardim privativo com 82,2 m²
Quarto com 19,4 m²
Bomba de calor
Apartamento totalmente reabilitado
Excelentes acabamentos: soalho em madeira natural, cozinha totalmente equipada
Localização e descrição : Bonfim, Porto
Apartamento T0 Duplex com 67,5 m² de área útil e um amplo espaço exterior privativo de 82,2 m². O imóvel foi integralmente reabilitado, combinando conforto contemporâneo com acabamentos de elevada qualidade.
A cozinha está totalmente equipada com frigorífico combinado, placa, exaustor, micro-ondas e lava-loiça, integrada numa sala em open space com 38,5 m², proporcionando um ambiente moderno e funcional.
O quarto principal, com 19,4 m², distingue-se pelo conforto e luminosidade, dispondo de banheira integrada no quarto. Todas as divisões beneficiam de excelente exposição solar e luz natural.
O espaço exterior é um dos grandes destaques deste imóvel. Com 82,2 m² distribuídos entre terraço e jardim privativo, oferece um refúgio ao ar livre no coração da cidade.
Localizado no Bonfim, uma das zonas com maior dinâmica e valorização do Porto, este apartamento oferece rápido acesso ao centro histórico, às principais artérias da cidade, à rede de transportes públicos e a uma vasta oferta de comércio, serviços, escolas e espaços verdes.
Imóvel ideal para habitação própria, investimento de rendimento ou exploração em alojamento local.
Potencial e Contexto Local
O Bonfim é atualmente um dos bairros mais procurados e valorizados do Porto, conhecido pelo ambiente jovem, artístico e multicultural. A proximidade às principais universidades e polos académicos torna-o especialmente atrativo para estudantes nacionais e estrangeiros.
A cidade do Porto continua a afirmar-se como um dos destinos turísticos mais procurados da Europa, o que, aliado à forte procura de arrendamento urbano, faz deste imóvel uma excelente oportunidade para investimento em alojamento local ou arrendamento de média e longa duração.
A poucos minutos a pé da Baixa, da Estação de Campanhã e da marginal do Douro, Bonfim beneficia de acessos rápidos a toda a cidade e de um ambiente de bairro dinâmico, com cafés, galerias, mercados e espaços culturais. Um local onde o tradicional e o contemporâneo convivem lado a lado, e onde o potencial de valorização imobiliária permanece elevado.
Área Bruta : 94,5 m²
Área útil de 67,5 m²
Terraço e jardim privativo com 82,2 m²
Quarto com 19,4 m²
Bomba de calor
Apartamento totalmente reabilitado
Excelentes acabamentos: soalho em madeira natural, cozinha totalmente equipada
Localização e descrição : Bonfim, Porto
Apartamento T0 Duplex com 67,5 m² de área útil e um amplo espaço exterior privativo de 82,2 m². O imóvel foi integralmente reabilitado, combinando conforto contemporâneo com acabamentos de elevada qualidade.
A cozinha está totalmente equipada com frigorífico combinado, placa, exaustor, micro-ondas e lava-loiça, integrada numa sala em open space com 38,5 m², proporcionando um ambiente moderno e funcional.
O quarto principal, com 19,4 m², distingue-se pelo conforto e luminosidade, dispondo de banheira integrada no quarto. Todas as divisões beneficiam de excelente exposição solar e luz natural.
O espaço exterior é um dos grandes destaques deste imóvel. Com 82,2 m² distribuídos entre terraço e jardim privativo, oferece um refúgio ao ar livre no coração da cidade.
Localizado no Bonfim, uma das zonas com maior dinâmica e valorização do Porto, este apartamento oferece rápido acesso ao centro histórico, às principais artérias da cidade, à rede de transportes públicos e a uma vasta oferta de comércio, serviços, escolas e espaços verdes.
Imóvel ideal para habitação própria, investimento de rendimento ou exploração em alojamento local.
Potencial e Contexto Local
O Bonfim é atualmente um dos bairros mais procurados e valorizados do Porto, conhecido pelo ambiente jovem, artístico e multicultural. A proximidade às principais universidades e polos académicos torna-o especialmente atrativo para estudantes nacionais e estrangeiros.
A cidade do Porto continua a afirmar-se como um dos destinos turísticos mais procurados da Europa, o que, aliado à forte procura de arrendamento urbano, faz deste imóvel uma excelente oportunidade para investimento em alojamento local ou arrendamento de média e longa duração.
A poucos minutos a pé da Baixa, da Estação de Campanhã e da marginal do Douro, Bonfim beneficia de acessos rápidos a toda a cidade e de um ambiente de bairro dinâmico, com cafés, galerias, mercados e espaços culturais. Um local onde o tradicional e o contemporâneo convivem lado a lado, e onde o potencial de valorização imobiliária permanece elevado.
Localização
Bonfim, Porto, Porto
Informação do anúncio
ID do anúncio
1272096
Referência Externa
T0-SVitor
Atualizado em
26/04/2026 08:34:01
Anunciante
Chamada para a rede móvel nacional
Atena Capital
AMI 21035
Referência do imóvel:
T0-SVitor
Apartamento T0 para Venda em Bonfim