Voltar
Terreno para Venda em Loule (São Clemente) Foto 1
Terreno para Venda em Loule (São Clemente) Foto 2
Terreno para Venda em Loule (São Clemente) Foto 3
Terreno para Venda em Loule (São Clemente) Foto 4
Terreno para Venda em Loule (São Clemente) Foto 5

Terreno para Venda em Loule (São Clemente)

42.000 €

Tipo
Terreno
Negócio
Venda
Área Bruta
54 m²
Área Útil
54 m²
Condição
Para Obras
Certificado Energético
Não aplicável
Área do Terreno
36 m²

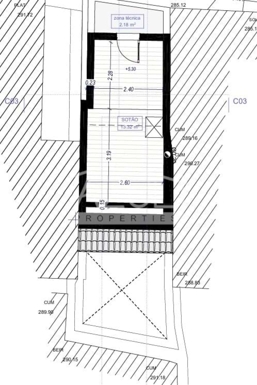
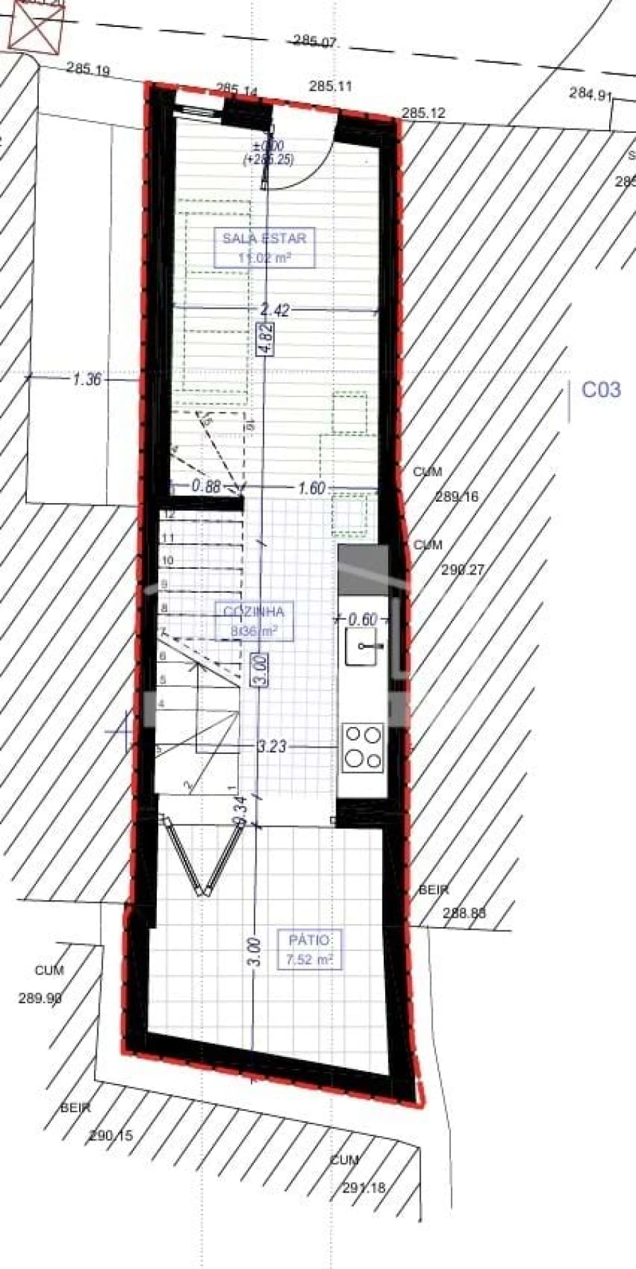
Projeto aprovado para moradia de aldeia de dois pisos com logradouro

Esta pitoresca propriedade (atualmente em ruínas), perfeita para quem procura um projeto, está aninhada nesta vila tranquila, oferecendo uma oportunidade única de criar uma casa de sonho. Com 1 quarto e 1 casa de banho distribuídos por 54 metros quadrados de área de casa numa área de terreno de 36 metros quadrados, esta propriedade possui um terraço, varanda e vistas deslumbrantes sobre a aldeia.

A propriedade está localizada em uma área tranquila, oferecendo um refúgio sereno da agitação da vida da cidade.

Este projeto totalmente aprovado dá a você a chance de criar uma elegante residência de dois andares com um pátio privativo murado para refeições ao ar livre e um terraço ensolarado na cobertura para desfrutar de vistas panorâmicas do campo.

Localizada no centro de Benafim, a propriedade desfruta de fácil acesso a comodidades essenciais, incluindo banco, supermercado, restaurantes locais e lojas - tudo a uma curta distância. Quer esteja à procura de uma residência a tempo inteiro, uma escapadinha de férias ou um investimento para arrendamento no Algarve, este projeto combina a autêntica vida na aldeia com o potencial moderno.

Esta casa é um dos cinco projetos aprovados para venda na mesma rua e pode ser combinada com uma ou todas as outras propriedades para fazer uma casa maior.

Com preços competitivos para atrair investidores e construtores ansiosos para dar vida a uma casa de sonho numa das regiões mais desejadas de Portugal. Observe que este é um projeto aprovado e não inclui o custo de construção da propriedade.

Localização

Loule (São Clemente), Loulé, Faro

Informação do anúncio

ID do anúncio 1286076
Referência Externa 1001-2380
Atualizado em 29/10/2025 02:15:29
Azul Properties AMI 5604
Referência do imóvel: 1001-2380
Phone
Chamada para a rede fixa nacional
Azul Properties AMI 5604
Referência do imóvel: 1001-2380
Phone
Chamada para a rede fixa nacional
1 / 15
Terreno para Venda em Loule (São Clemente) Foto 1
Terreno para Venda em Loule (São Clemente) Foto 2
Terreno para Venda em Loule (São Clemente) Foto 3
Terreno para Venda em Loule (São Clemente) Foto 4
Terreno para Venda em Loule (São Clemente) Foto 5
Terreno para Venda em Loule (São Clemente) Foto 6
Terreno para Venda em Loule (São Clemente) Foto 7
Terreno para Venda em Loule (São Clemente) Foto 8
Terreno para Venda em Loule (São Clemente) Foto 9
Terreno para Venda em Loule (São Clemente) Foto 10
Terreno para Venda em Loule (São Clemente) Foto 11
Terreno para Venda em Loule (São Clemente) Foto 12
Terreno para Venda em Loule (São Clemente) Foto 13
Terreno para Venda em Loule (São Clemente) Foto 14
Terreno para Venda em Loule (São Clemente) Foto 15
Clicky