Terreno para Venda em Canidelo
195.000 €
Tipo
Terreno
Negócio
Venda
Área Bruta
240 m²
Área Útil
161 m²
Condição
Não Aplicável
Certificado Energético
Não se aplica
Área do Terreno
1238 m²
Terreno | Canidelo | a 500 metros das praias com projeto totalmente aprovado
Estudamos com interesse propostas de permuta, especialmente se o imóvel a trocar corresponder às nossas necessidades e valor. Fale connosco para encontrar a melhor solução.
Diretamente com o proprietário, projeto totalmente aprovado — arquitetura e especialidades — apenas o terreno, sem construção incluída - pronto para iniciar a construção. Localização privilegiada, a 500 metros do oceano, do colégio privado O Colégio Novo e de todas as comodidades.
Oportunidade Rara em Canidelo – Terreno de 1.238 m² a Apenas 500 Metros do Oceano e das Praias – Projeto de Arquitetura Aprovado
Em Zona ARU, situado numa zona tranquila e residencial, sem prédios altos nas proximidades, garantindo privacidade e vistas desimpedidas.
Localização Privilegiada – A Apenas 500 Metros do Oceano e das Praias
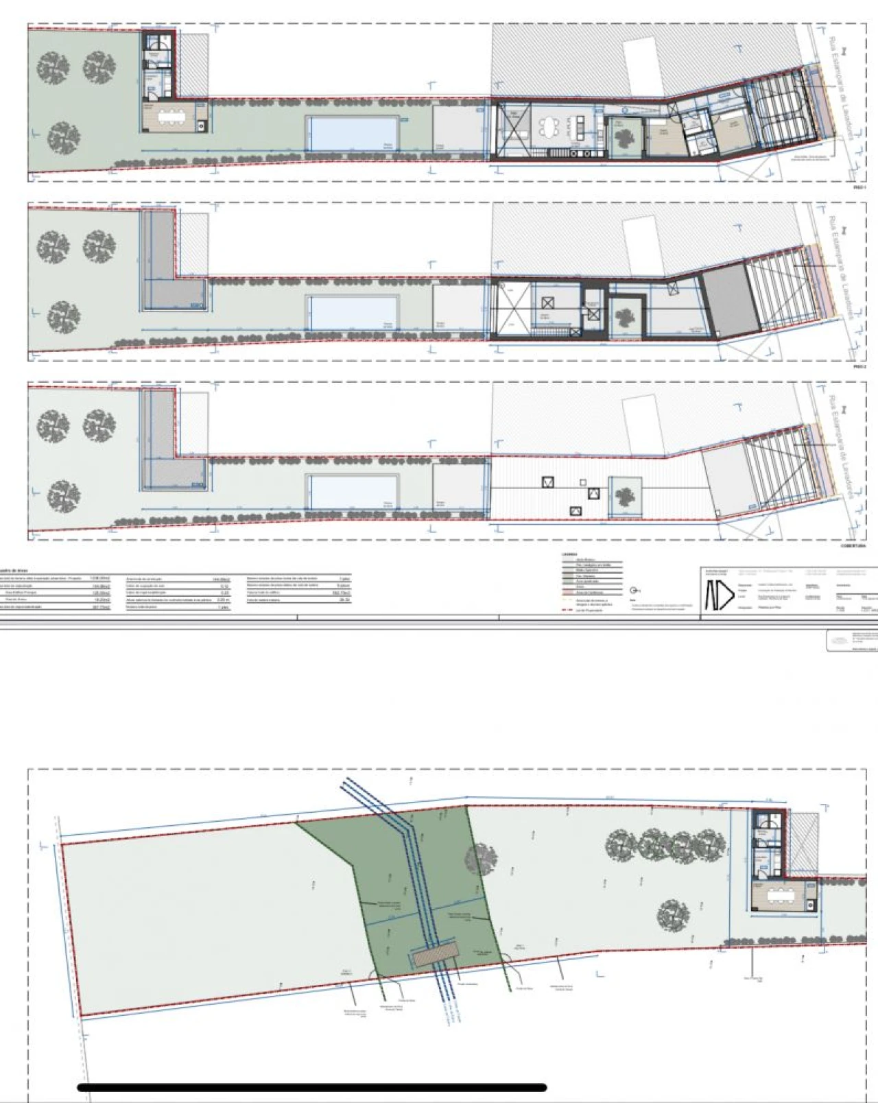
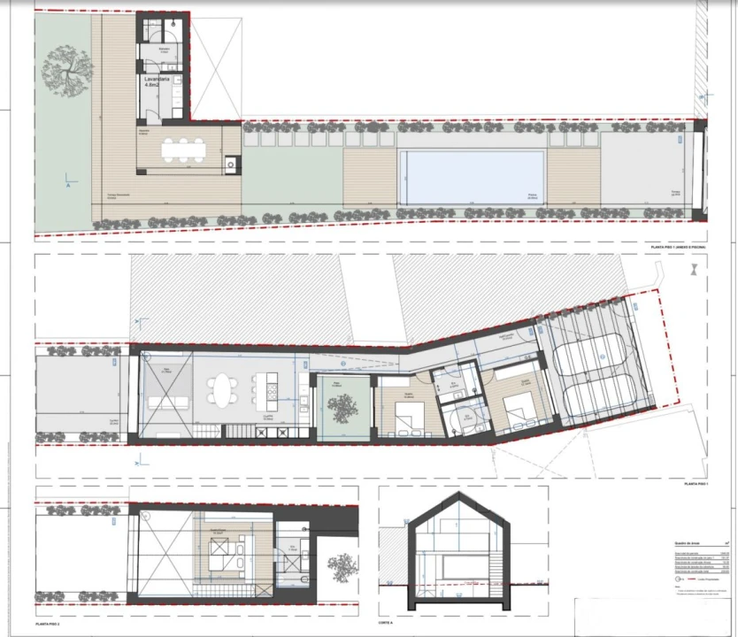
Projeto de arquitetura moderna aprovado, com projeto de especialidades em fase de execução.
O terreno sera vendido pronto para construir, com todas as taxas pagas.
Características do Projeto Arquitetónico – Pensado para Conforto e Luminosidade
Três suítes, proporcionando privacidade e funcionalidade.
Pátio interior, maximizando a luz natural.
Áreas sociais e master suite banhadas pelo sol durante todo o dia, graças à sua exposição total a sul.
Piscina e pool house integradas aos espaços interiores para uma transição fluida entre interior e exterior.
Construção térrea e económica, reduzindo significativamente os custos de edificação.
Imagens interiores 3D em desenvolvimento para uma melhor visualização do projeto.
Detalhes Técnicos
Área bruta de construção: 161,07 m²
Anexo (Pool House): 19,30 m²
Desvão de cobertura: 59,45 m²
Área bruta total de construção: 239,80 m²
Ambiente Exclusivo & Infraestruturas Próximas
Sem edifícios altos ao redor, garantindo privacidade e vistas desafogadas.
Passeio marítimo ideal para caminhadas, corridas ou passeios de bicicleta.
Restaurantes e bares com vistas incríveis sobre o Oceano Atlântico.
Infraestruturas e Comodidades na Zona
Educação:
Colégio NOVO, um dos colégios privados mais prestigiados da região, a poucos minutos a pé.
Saúde & Serviços Públicos:
Centro de Saúde de Canidelo, Esquadra da Polícia, CTT (Correios).
Comércio & Supermercados:
Lidl, Mercadona, Auchan, Mercado de Canidelo, Retail Park.
Centros Comerciais:
Arrábida Shopping e GaiaShopping, com lojas, restaurantes e cinemas.
Hospitais & Clínicas:
Hospital da Luz Arrábida e Centro Hospitalar de Vila Nova de Gaia/Espinho.
Acesso rápido às principais vias, ligando rapidamente ao centro do Porto e arredores.
Uma Oportunidade de Investimento Única
Este terreno combina localização excecional, design moderno e todas as comodidades urbanas, sendo ideal para construir uma moradia contemporânea junto ao mar, a poucos minutos do Porto e das famosas caves de Gaia.
Perfeito para residência principal de família, segunda habitação exclusiva ou investimento para arrendamento de alto rendimento.
Para mais informações ou para agendar uma visita, contacte-nos!
Diretamente com o proprietário, projeto totalmente aprovado — arquitetura e especialidades — apenas o terreno, sem construção incluída - pronto para iniciar a construção. Localização privilegiada, a 500 metros do oceano, do colégio privado O Colégio Novo e de todas as comodidades.
Oportunidade Rara em Canidelo – Terreno de 1.238 m² a Apenas 500 Metros do Oceano e das Praias – Projeto de Arquitetura Aprovado
Em Zona ARU, situado numa zona tranquila e residencial, sem prédios altos nas proximidades, garantindo privacidade e vistas desimpedidas.
Localização Privilegiada – A Apenas 500 Metros do Oceano e das Praias
Projeto de arquitetura moderna aprovado, com projeto de especialidades em fase de execução.
O terreno sera vendido pronto para construir, com todas as taxas pagas.
Características do Projeto Arquitetónico – Pensado para Conforto e Luminosidade
Três suítes, proporcionando privacidade e funcionalidade.
Pátio interior, maximizando a luz natural.
Áreas sociais e master suite banhadas pelo sol durante todo o dia, graças à sua exposição total a sul.
Piscina e pool house integradas aos espaços interiores para uma transição fluida entre interior e exterior.
Construção térrea e económica, reduzindo significativamente os custos de edificação.
Imagens interiores 3D em desenvolvimento para uma melhor visualização do projeto.
Detalhes Técnicos
Área bruta de construção: 161,07 m²
Anexo (Pool House): 19,30 m²
Desvão de cobertura: 59,45 m²
Área bruta total de construção: 239,80 m²
Ambiente Exclusivo & Infraestruturas Próximas
Sem edifícios altos ao redor, garantindo privacidade e vistas desafogadas.
Passeio marítimo ideal para caminhadas, corridas ou passeios de bicicleta.
Restaurantes e bares com vistas incríveis sobre o Oceano Atlântico.
Infraestruturas e Comodidades na Zona
Educação:
Colégio NOVO, um dos colégios privados mais prestigiados da região, a poucos minutos a pé.
Saúde & Serviços Públicos:
Centro de Saúde de Canidelo, Esquadra da Polícia, CTT (Correios).
Comércio & Supermercados:
Lidl, Mercadona, Auchan, Mercado de Canidelo, Retail Park.
Centros Comerciais:
Arrábida Shopping e GaiaShopping, com lojas, restaurantes e cinemas.
Hospitais & Clínicas:
Hospital da Luz Arrábida e Centro Hospitalar de Vila Nova de Gaia/Espinho.
Acesso rápido às principais vias, ligando rapidamente ao centro do Porto e arredores.
Uma Oportunidade de Investimento Única
Este terreno combina localização excecional, design moderno e todas as comodidades urbanas, sendo ideal para construir uma moradia contemporânea junto ao mar, a poucos minutos do Porto e das famosas caves de Gaia.
Perfeito para residência principal de família, segunda habitação exclusiva ou investimento para arrendamento de alto rendimento.
Para mais informações ou para agendar uma visita, contacte-nos!
Localização
Canidelo, Vila Nova de Gaia, Porto
Informação do anúncio
ID do anúncio
1287312
Referência Externa
HP-EST704/2
Atualizado em
25/09/2025 08:36:24
Anunciante
Chamada para a rede móvel nacional
Atena Capital
AMI 21035
Referência do imóvel:
HP-EST704/2
Terreno para Venda em Canidelo