Voltar
Apartamento T3 para Venda em Bonfim Foto 1
Apartamento T3 para Venda em Bonfim Foto 2
Apartamento T3 para Venda em Bonfim Foto 3
Apartamento T3 para Venda em Bonfim Foto 4
Apartamento T3 para Venda em Bonfim Foto 5

Apartamento T3 para Venda em Bonfim

1.100.000 €

Tipo
Apartamento
Negócio
Venda
Ano de Construção
2022
Quartos
3
Casas de Banho
4
Área Bruta
227 m²
Área Útil
163 m²
Condição
Renovado
Certificado Energético
A
Área do Terreno
127 m²

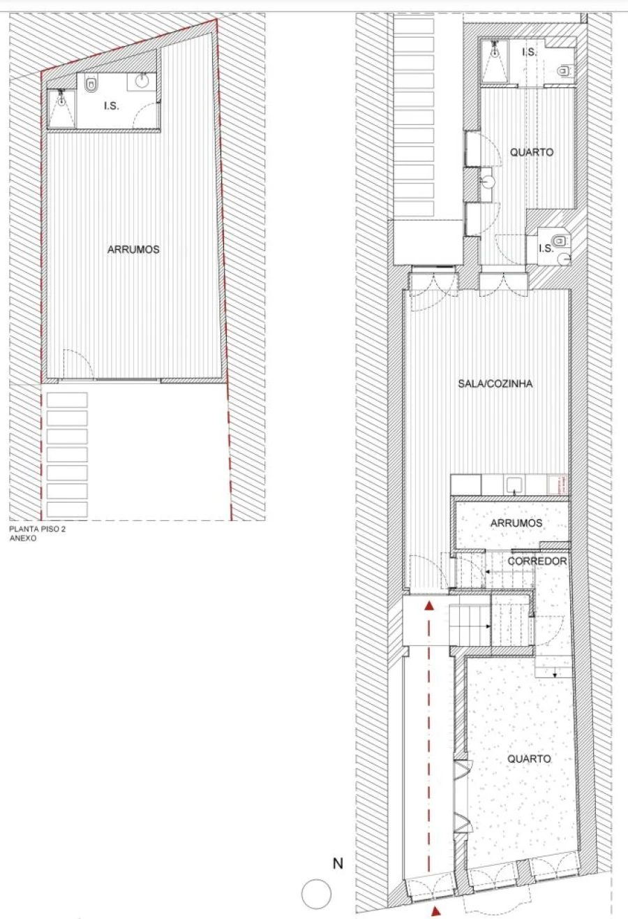
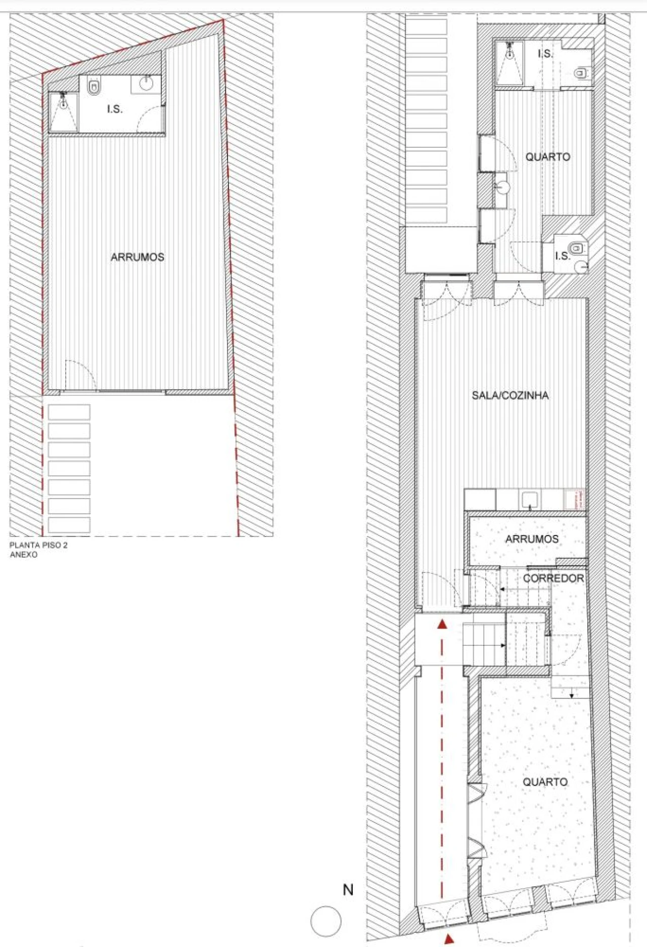
Duplex T3+ um estúdio com logradouro de 128 m2 e anexo privativos

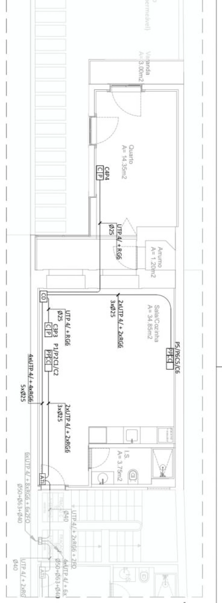
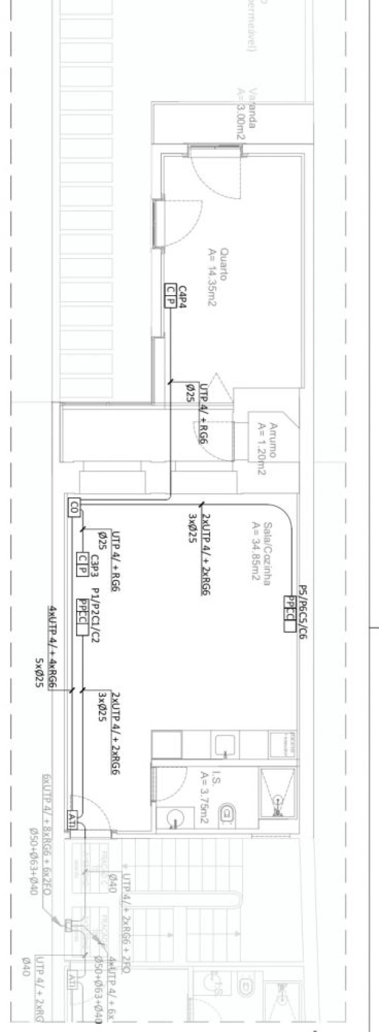
227,9 m² de área bruta, 163,7 m² de área útil, 127 m² de jardim privativo com um anexo que pode funcionar como escritório ou quarto independente com casa de banho privativa

Neste edifício excecionalmente reabilitado com requinte e atenção ao detalhe, onde o charme da arquitetura burguesa do início do século XX se funde com uma estética contemporânea de grande bom gosto, este apartamento T3 mais m estúdio distingue-se pelo seu conforto, pelos seus volumes generosos e pela qualidade superior dos materiais e acabamentos. Cada elemento foi cuidadosamente escolhido para criar um espaço cossu, harmonioso e acolhedor.

Localizado no coração do Bonfim, um dos bairros mais dinâmicos e autênticos do Porto, a poucos passos da Rua de Santa Catarina e do Mercado do Bolhão, este apartamento beneficia de uma localização absolutamente central, onde o ritmo urbano convive com a tranquilidade residencial. O jardim privativo de 127 m² – verdadeiro luxo no centro da cidade – oferece um espaço exterior raro, ideal para momentos de lazer, para receber ou até para criar uma zona independente com acesso direto.

O imóvel não se encontra atualmente arrendado, permitindo total liberdade ao futuro proprietário: quer seja para habitação própria permanente, para arrendamento tradicional de longa duração ou para exploração turística em Alojamento Local, o seu potencial é evidente. O anexo, totalmente autónomo e com casa de banho privativa, pode ser utilizado como espaço de trabalho, estúdio independente ou como fonte adicional de rendimento.

Uma oportunidade única para adquirir uma fração exclusiva, inserida num edifício de grande personalidade, que alia localização, estética e rentabilidade.

Localização

Bonfim, Porto, Porto

Informação do anúncio

ID do anúncio 1298935
Referência Externa T3/BMGF
Atualizado em 17/09/2025 09:42:15
Atena Capital AMI 21035
Referência do imóvel: T3/BMGF
Phone
Chamada para a rede móvel nacional
Atena Capital AMI 21035
Referência do imóvel: T3/BMGF
Phone
Chamada para a rede móvel nacional
1 / 35
Apartamento T3 para Venda em Bonfim Foto 1
Apartamento T3 para Venda em Bonfim Foto 2
Apartamento T3 para Venda em Bonfim Foto 3
Apartamento T3 para Venda em Bonfim Foto 4
Apartamento T3 para Venda em Bonfim Foto 5
Apartamento T3 para Venda em Bonfim Foto 6
Apartamento T3 para Venda em Bonfim Foto 7
Apartamento T3 para Venda em Bonfim Foto 8
Apartamento T3 para Venda em Bonfim Foto 9
Apartamento T3 para Venda em Bonfim Foto 10
Apartamento T3 para Venda em Bonfim Foto 11
Apartamento T3 para Venda em Bonfim Foto 12
Apartamento T3 para Venda em Bonfim Foto 13
Apartamento T3 para Venda em Bonfim Foto 14
Apartamento T3 para Venda em Bonfim Foto 15
Apartamento T3 para Venda em Bonfim Foto 16
Apartamento T3 para Venda em Bonfim Foto 17
Apartamento T3 para Venda em Bonfim Foto 18
Apartamento T3 para Venda em Bonfim Foto 19
Apartamento T3 para Venda em Bonfim Foto 20
Apartamento T3 para Venda em Bonfim Foto 21
Apartamento T3 para Venda em Bonfim Foto 22
Apartamento T3 para Venda em Bonfim Foto 23
Apartamento T3 para Venda em Bonfim Foto 24
Apartamento T3 para Venda em Bonfim Foto 25
Apartamento T3 para Venda em Bonfim Foto 26
Apartamento T3 para Venda em Bonfim Foto 27
Apartamento T3 para Venda em Bonfim Foto 28
Apartamento T3 para Venda em Bonfim Foto 29
Apartamento T3 para Venda em Bonfim Foto 30
Apartamento T3 para Venda em Bonfim Foto 31
Apartamento T3 para Venda em Bonfim Foto 32
Apartamento T3 para Venda em Bonfim Foto 33
Apartamento T3 para Venda em Bonfim Foto 34
Apartamento T3 para Venda em Bonfim Foto 35
Clicky