Terreno para Venda em Tavira (Santa Maria e Santiago)
9.900.000 €
Tipo
Terreno
Negócio
Venda
Área Bruta
237120 m²
Área do Terreno
237120 m²
Terreno para construção em Tavira (Santa Maria e Santiago) de 237120,00 m²
Terreno para Desenvolvimento Urbano em Tavira – 21,8 ha. Com o PIP e projectos aprovados.
Apresenta-se uma oportunidade única de investimento num terreno com 218.837 m², estrategicamente localizado entre a A22 (Via do Infante) e o centro da cidade de Tavira, no Sotavento Algarvio.
Esta localização privilegiada oferece excelente acessibilidade e um elevado potencial de valorização.
Enquadramento geográfico:
A cerca de 37 km da cidade de Faro (39 km do Aeroporto Internacional de Faro), 300 km de Lisboa e 172 km da cidade de Sevilha-Espanha. A 4 Km das famosas praias da Ilha de Tavira (Parque Natural da Ria Formosa).
Enquadramento Urbanístico:
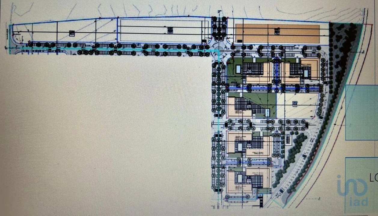
O terreno está inserido no Plano de Pormenor de Pêro Gil, que permite um potencial construtivo total de 76.021 m², distribuído por áreas residenciais, comerciais e uma unidade hoteleira.
Estrutura do Projeto O terreno está organizado em três Unidades de Execução (UE) e uma Área Rústica, permitindo um desenvolvimento faseado e eficiente:
Unidade de Execução 1 (UE1) 9 lotes: 1 lote para unidade hoteleira, 5 lotes para habitação coletiva (2 com comércio no piso térreo), 3 lotes para equipamentos (incluindo uma clínica privada).
Unidade de Execução 2 (UE2) 11 lotes: 8 lotes para habitação coletiva 3 destes com áreas comerciais no piso térreo Orientação Nascente-Poente.
Unidade de Execução 3 (UE3) 27 lotes: 3 para habitação coletiva 24 para moradias isoladas, inclui bacia de retenção prevista no plano Área Rústica 79.885 m² destinados a uso agrícola. Potencial para culturas vinícolas e frutícolas.
Resumo de Áreas:
Área Total - 218.837 m²; Área Urbana - 138.952 m²; Área Rústica - 79.885 m².
Envolvente Zona caracterizada por terrenos agrícolas, prédios mistos e moradias dispersas, com forte potencial de integração urbana e valorização futura.
Imovel de entidade bancária.
A documentação será facultada aos interessados, pelo Consultor Imobiliário Iad, Manuel Silva [email protected] ..
#ref: 148244
Apresenta-se uma oportunidade única de investimento num terreno com 218.837 m², estrategicamente localizado entre a A22 (Via do Infante) e o centro da cidade de Tavira, no Sotavento Algarvio.
Esta localização privilegiada oferece excelente acessibilidade e um elevado potencial de valorização.
Enquadramento geográfico:
A cerca de 37 km da cidade de Faro (39 km do Aeroporto Internacional de Faro), 300 km de Lisboa e 172 km da cidade de Sevilha-Espanha. A 4 Km das famosas praias da Ilha de Tavira (Parque Natural da Ria Formosa).
Enquadramento Urbanístico:
O terreno está inserido no Plano de Pormenor de Pêro Gil, que permite um potencial construtivo total de 76.021 m², distribuído por áreas residenciais, comerciais e uma unidade hoteleira.
Estrutura do Projeto O terreno está organizado em três Unidades de Execução (UE) e uma Área Rústica, permitindo um desenvolvimento faseado e eficiente:
Unidade de Execução 1 (UE1) 9 lotes: 1 lote para unidade hoteleira, 5 lotes para habitação coletiva (2 com comércio no piso térreo), 3 lotes para equipamentos (incluindo uma clínica privada).
Unidade de Execução 2 (UE2) 11 lotes: 8 lotes para habitação coletiva 3 destes com áreas comerciais no piso térreo Orientação Nascente-Poente.
Unidade de Execução 3 (UE3) 27 lotes: 3 para habitação coletiva 24 para moradias isoladas, inclui bacia de retenção prevista no plano Área Rústica 79.885 m² destinados a uso agrícola. Potencial para culturas vinícolas e frutícolas.
Resumo de Áreas:
Área Total - 218.837 m²; Área Urbana - 138.952 m²; Área Rústica - 79.885 m².
Envolvente Zona caracterizada por terrenos agrícolas, prédios mistos e moradias dispersas, com forte potencial de integração urbana e valorização futura.
Imovel de entidade bancária.
A documentação será facultada aos interessados, pelo Consultor Imobiliário Iad, Manuel Silva [email protected] ..
#ref: 148244
Localização
Tavira (Santa Maria e Santiago), Tavira, Faro
Informação do anúncio
ID do anúncio
1344698
Referência Externa
148244
Atualizado em
14/05/2026 23:40:12
Terreno para Venda em Tavira (Santa Maria e Santiago)
Vídeo