Voltar
Apartamento T2 para Venda em Ílhavo (São Salvador) Foto 1
Apartamento T2 para Venda em Ílhavo (São Salvador) Foto 2
Apartamento T2 para Venda em Ílhavo (São Salvador) Foto 3
Apartamento T2 para Venda em Ílhavo (São Salvador) Foto 4
Apartamento T2 para Venda em Ílhavo (São Salvador) Foto 5

Apartamento T2 para Venda em Ílhavo (São Salvador)

310.000 €

Tipo
Apartamento
Negócio
Venda
Quartos
2
Casas de Banho
2
Área Útil
96 m²
Garagem
2 lugares
Condição
Em construção
Certificado Energético
A+
Área do Terreno
157 m²

Apartamento T2 à venda em Ílhavo | 310.000€

Apartamento T2 à venda em Ílhavo | 310.000€

Prazo de finalização: final de 2026

área: 157 m²
Varanda: 61,50 m²
Lugares de garagem: 2

Apresentamos este magnífico T2 inserido num prestigiado empreendimento na Vista Alegre, em Ílhavo.

Características do apartamento:
- Dois quartos, sendo um deles uma suíte
- Segunda casa de banho completa
- Sala e cozinha em open space, com muita luz natural

*Características do Edifício*

O empreendimento está a ser construído com toda a tecnologia atual, incluindo lugares de estacionamento equipados com sistema de carregamento para veículos elétricos.

Localização privilegiada:
- Apenas a 1 km do centro de Ílhavo
- 5 km da cidade de Aveiro
- Perto das magníficas praias da Barra, Costa Nova do Prado, Vagueira e São Jacinto

O empreendimento Vista Alegre é um verdadeiro ex-líbris da cidade, repleto de história e arte, perfeito para quem procura viver numa zona tranquila, mas com todas as comodidades por perto.
Edifício exclusivo com apenas seis frações T2, com áreas generosas e acabamentos de qualidade superior.

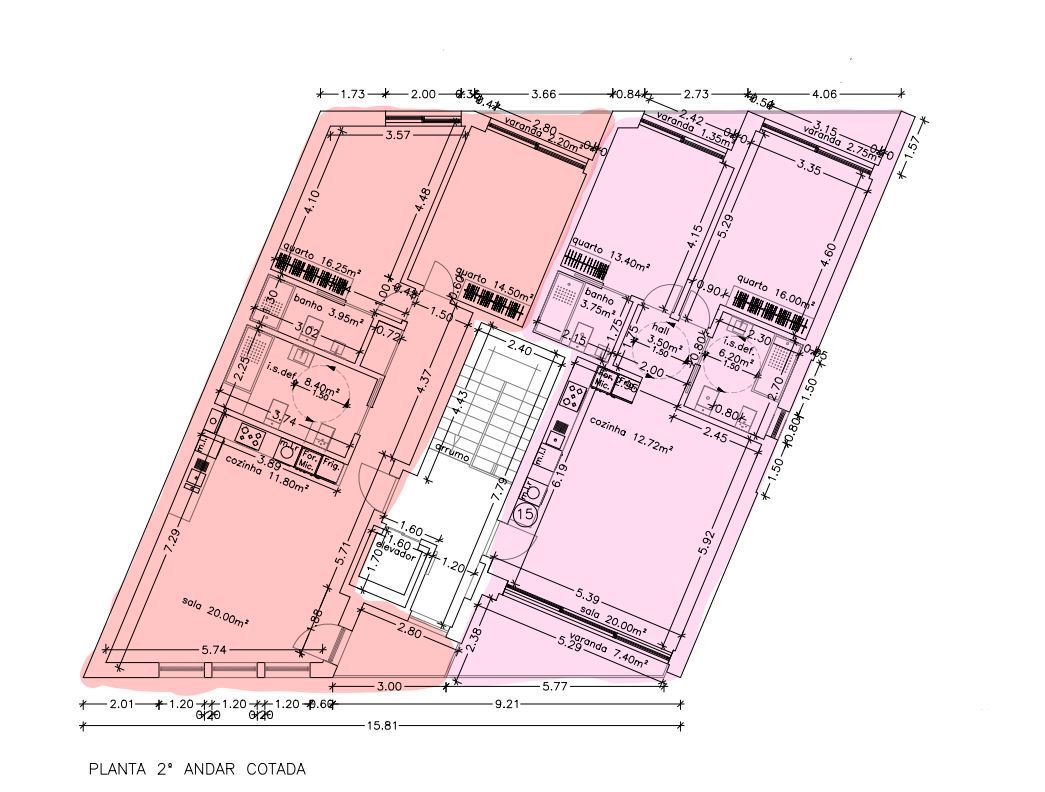
Planta desta fração sublinhada a vermelho.

Visite já! Esperamos por si.
Chave Nova Aveiro
Licença AMI 7142

Localização

Ílhavo (São Salvador), Ílhavo, Aveiro

A localização exacta do imóvel não está disponível. O mapa apresenta a zona aproximada.

Informação do anúncio

ID do anúncio 1365635
Referência Externa AVR/00722
Atualizado em 13/12/2025 09:02:01
CN Aveiro AMI 7142
Referência do imóvel: AVR/00722
Phone
Chamada para a rede móvel nacional
Chave Nova - AVEIRO
Chave Nova - AVEIRO
Phone
Chamada para a rede móvel nacional
CN Aveiro AMI 7142
Referência do imóvel: AVR/00722
Phone
Chamada para a rede móvel nacional
Chave Nova - AVEIRO
Chave Nova - AVEIRO
Phone
Chamada para a rede móvel nacional
1 / 25
Apartamento T2 para Venda em Ílhavo (São Salvador) Foto 1
Apartamento T2 para Venda em Ílhavo (São Salvador) Foto 2
Apartamento T2 para Venda em Ílhavo (São Salvador) Foto 3
Apartamento T2 para Venda em Ílhavo (São Salvador) Foto 4
Apartamento T2 para Venda em Ílhavo (São Salvador) Foto 5
Apartamento T2 para Venda em Ílhavo (São Salvador) Foto 6
Apartamento T2 para Venda em Ílhavo (São Salvador) Foto 7
Apartamento T2 para Venda em Ílhavo (São Salvador) Foto 8
Apartamento T2 para Venda em Ílhavo (São Salvador) Foto 9
Apartamento T2 para Venda em Ílhavo (São Salvador) Foto 10
Apartamento T2 para Venda em Ílhavo (São Salvador) Foto 11
Apartamento T2 para Venda em Ílhavo (São Salvador) Foto 12
Apartamento T2 para Venda em Ílhavo (São Salvador) Foto 13
Apartamento T2 para Venda em Ílhavo (São Salvador) Foto 14
Apartamento T2 para Venda em Ílhavo (São Salvador) Foto 15
Apartamento T2 para Venda em Ílhavo (São Salvador) Foto 16
Apartamento T2 para Venda em Ílhavo (São Salvador) Foto 17
Apartamento T2 para Venda em Ílhavo (São Salvador) Foto 18
Apartamento T2 para Venda em Ílhavo (São Salvador) Foto 19
Apartamento T2 para Venda em Ílhavo (São Salvador) Foto 20
Apartamento T2 para Venda em Ílhavo (São Salvador) Foto 21
Apartamento T2 para Venda em Ílhavo (São Salvador) Foto 22
Apartamento T2 para Venda em Ílhavo (São Salvador) Foto 23
Apartamento T2 para Venda em Ílhavo (São Salvador) Foto 24
Apartamento T2 para Venda em Ílhavo (São Salvador) Foto 25
Clicky