Moradia para Venda em Mira
399.000 €
Tipo
Moradia
Negócio
Venda
Ano de Construção
2003
Casas de Banho
4
Área Útil
924 m²
Certificado Energético
B
Área do Terreno
2004 m²
Armazém em Mira de 924,00 m²
Pavilhão Comercial e de Armazenagem – Mira (Coimbra)
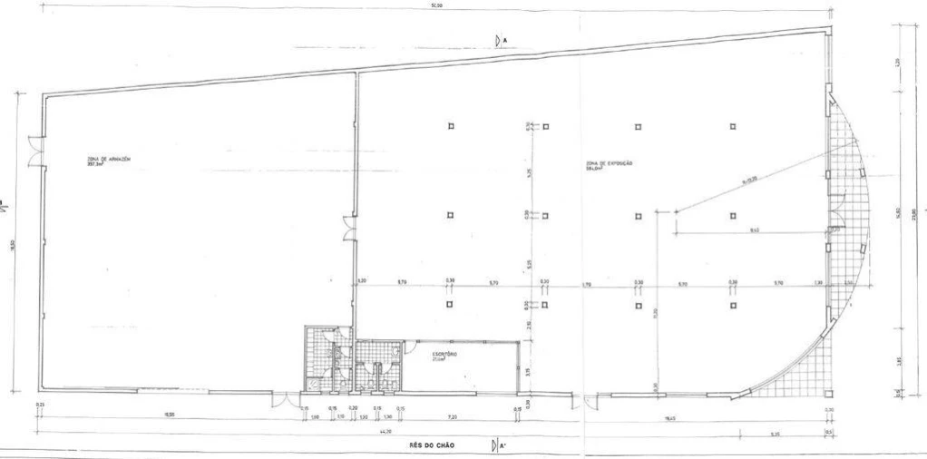
Este imóvel único, com 942 m² de área coberta e inserido em lote de 2.004 m², apresenta-se como uma oportunidade excecional tanto para investidores como para empresários que procuram um espaço funcional, versátil e estrategicamente localizado.
Principais Características:
Área de Exposição / Showroom: 584 m² em open space, com excelente pé-direito, acresce ainda receção, escritório climatizado e instalações sanitárias (masculino e feminino).
Área de Armazém: 358 m² com piso industrial, portão lateral e portão de acesso para veículos pesados e ainda entrada pedonal direta para o showroom e capacidade para empilhadores e porta-paletes.
Logradouro Posterior: 1.200 m², com acesso lateral de 3 metros de largura, facilitando operações logísticas e estacionamento de pesados.
Categoria Energética: B.
Valor para Investidores
Rentabilidade acima da média, com configuração versátil e procura consistente de inquilinos nos segmentos de logística, comércio e armazenagem.
Layout flexível, adaptável a diversos tipos de negócios e exigências de ocupação.
Pé-direito elevado e boas condições estruturais, garantindo longevidade e competitividade.
Valor para Utilização Direta
Operacionalidade imediata, com showroom em piso cerâmico em excelente estado e armazém totalmente funcional.
Áreas administrativas independentes (receção e escritório).
Acessos facilitados para cargas e descargas de grandes dimensões.
Localização Estratégica
Situado em Mira, junto às vias N109 e N235, este pavilhão beneficia de ótimos acessos rodoviários e de proximidade a importantes centros urbanos e logísticos:
Aveiro – 24 km
Coimbra – 35 km
Figueira da Foz – 34 km
Viseu – 74 km
Porto – 80 km
Lisboa – 194 km
Aeroporto do Porto (OPO) – 90 km
Aeroporto de Lisboa (LIS) – 187 km
Porque este Pavilhão?
Quer pretenda maximizar rendimento através de arrendamento a longo prazo, quer precise de um hub logístico pronto a operar, poucas soluções reúnem uma localização estratégica, uma dimensão generosa e características construtivas sólidas como este imóvel em Mira.
#ref: 148240
Este imóvel único, com 942 m² de área coberta e inserido em lote de 2.004 m², apresenta-se como uma oportunidade excecional tanto para investidores como para empresários que procuram um espaço funcional, versátil e estrategicamente localizado.
Principais Características:
Área de Exposição / Showroom: 584 m² em open space, com excelente pé-direito, acresce ainda receção, escritório climatizado e instalações sanitárias (masculino e feminino).
Área de Armazém: 358 m² com piso industrial, portão lateral e portão de acesso para veículos pesados e ainda entrada pedonal direta para o showroom e capacidade para empilhadores e porta-paletes.
Logradouro Posterior: 1.200 m², com acesso lateral de 3 metros de largura, facilitando operações logísticas e estacionamento de pesados.
Categoria Energética: B.
Valor para Investidores
Rentabilidade acima da média, com configuração versátil e procura consistente de inquilinos nos segmentos de logística, comércio e armazenagem.
Layout flexível, adaptável a diversos tipos de negócios e exigências de ocupação.
Pé-direito elevado e boas condições estruturais, garantindo longevidade e competitividade.
Valor para Utilização Direta
Operacionalidade imediata, com showroom em piso cerâmico em excelente estado e armazém totalmente funcional.
Áreas administrativas independentes (receção e escritório).
Acessos facilitados para cargas e descargas de grandes dimensões.
Localização Estratégica
Situado em Mira, junto às vias N109 e N235, este pavilhão beneficia de ótimos acessos rodoviários e de proximidade a importantes centros urbanos e logísticos:
Aveiro – 24 km
Coimbra – 35 km
Figueira da Foz – 34 km
Viseu – 74 km
Porto – 80 km
Lisboa – 194 km
Aeroporto do Porto (OPO) – 90 km
Aeroporto de Lisboa (LIS) – 187 km
Porque este Pavilhão?
Quer pretenda maximizar rendimento através de arrendamento a longo prazo, quer precise de um hub logístico pronto a operar, poucas soluções reúnem uma localização estratégica, uma dimensão generosa e características construtivas sólidas como este imóvel em Mira.
#ref: 148240
Localização
Mira, Mira, Coimbra
Informação do anúncio
ID do anúncio
1376823
Referência Externa
148240
Atualizado em
25/04/2026 23:18:32
Moradia para Venda em Mira