Voltar
Apartamento T4 para Arrendamento em Estrela Foto 1
Apartamento T4 para Arrendamento em Estrela Foto 2
Apartamento T4 para Arrendamento em Estrela Foto 3
Apartamento T4 para Arrendamento em Estrela Foto 4
Apartamento T4 para Arrendamento em Estrela Foto 5

Apartamento T4 para Arrendamento em Estrela

10.000 €

Tipo
Apartamento
Negócio
Arrendamento
Ano de Construção
2025
Quartos
4
Casas de Banho
2
Área Útil
266 m²

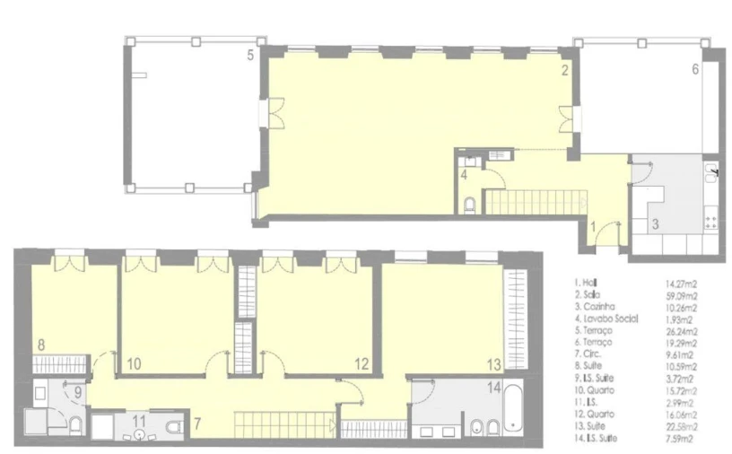
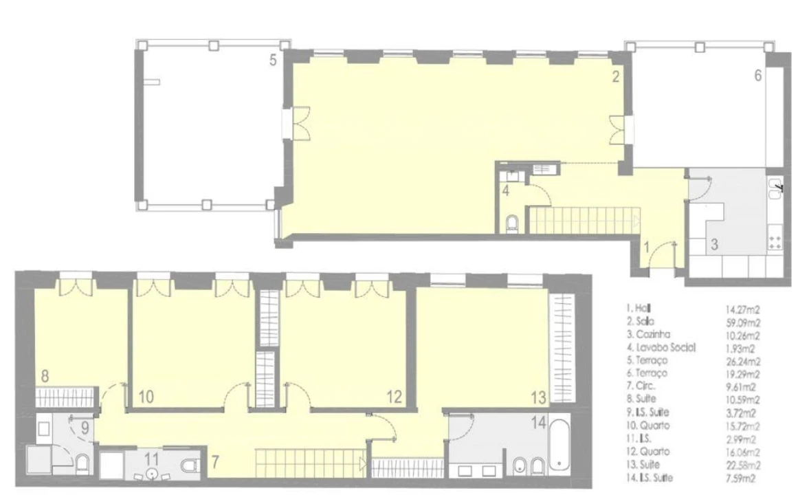
Apartamento T4 em Estrela de 266,00 m²

T4 Duplex | 266 m² | 2 Suítes | 3 Casas de Banho + 1 Lavabo Social | 2 Terraços (46 m²) | 2 Lugares de Garagem | Arrecadação | Elevador | Piscina | Jardim | Ginásio

Extraordinário apartamento T4 duplex, inserido num condomínio de referência no coração da Lapa, resultante da reconversão de um antigo palacete, concluída em 2015.

Um imóvel único, que se distingue pelas áreas generosas, elegância arquitetónica, excelente luminosidade e dois amplos terraços com vistas desafogadas sobre Lisboa e para a Basílica da Estrela.
________________________________________
Piso principal

A zona social foi desenhada para proporcionar conforto, amplitude e luz natural em todos os momentos do dia. A sala de 59 m², com três frentes e orientação sul, possui oito janelas, três delas de sacada com acesso direto aos terraços. A sua exposição solar excecional garante sol durante todo o dia, tornando o espaço particularmente acolhedor e luminoso.
O ambiente divide-se naturalmente em zona de estar e zona de jantar, ambas com ligação ao exterior:
•Terraço 1 (19 m²) — junto à sala de jantar e à cozinha, ideal para refeições ao ar livre.
•Terraço 2 (26 m²) — junto à zona de estar, perfeito como espaço de descanso e convívio, com vista sobre o jardim do condomínio e a cidade.

Ambos os terraços têm soalho em deck e guardas em vidro que lhe conferem leveza e modernidade e desafogo.

A cozinha, moderna e totalmente equipada, possui uma ampla parede envidraçada e acesso direto ao terraço. Neste piso encontra-se ainda um lavabo social.
________________________________________
Piso inferior

A zona privada, totalmente separada para maior privacidade e silêncio, inclui duas suites, dois quartos e duas casas de banho completas. Todos os quartos têm armários embutidos. A escada interior, com guarda em vidro e iluminação LED embutida, acrescenta um toque contemporâneo e sofisticado.
________________________________________
Acabamentos e detalhes
•Soalho em madeira
•Caixilharia dupla branca
•Ar condicionado
•Deck em madeira nos terraços

Principais áreas:
•Sala: 59 m²
•Cozinha: 10.3 m²
•Terraços: 26.3 m² + 19.3 m²
•Suites: 22,6 m² e 10,6 m²
•Quartos: 15,7 m² e 16 m²
________________________________________

Quer o apartamento quer o edifico já sofreram renovações e intervenções que asseguram que se encontra em estado irrepreensivel.

Arrendado sem mobilia e por um período minimo de 1 ano

Condomínio e edifício

O apartamento integra um condomínio privado exclusivo, resultante da reabilitação de um palacete histórico que manteve a fachada original e elementos arquitetónicos nobres, como o pavimento em mármore e arcos em pedra no átrio de entrada.
O condomínio oferece ainda um magnífico jardim, uma piscina exterior rodeada de verde e um ginásio totalmente equipado, de uso exclusivo dos condóminos — um verdadeiro oásis de tranquilidade no centro de Lisboa.
O apartamento dispõe de dois lugares de garagem, com acesso directo por uma rampa, e uma arrecadação.
________________________________________
Localização

Situado numa das zonas residenciais mais prestigiadas da cidade, a Lapa, este imóvel beneficia de um ambiente calmo e elegante, próximo de tudo. Permite caminhar até ao Jardim e Basílica da Estrela, Santos e Campo de Ourique. Zona bem servida de transportes públicos, com futura estação de metro a apenas 5 minutos, e próxima de todo o tipo de comércio e serviços, incluindo um supermercado Pingo Doce a curta distância.
________________________________________
Um apartamento com alma, luz e distinção — no coração da Lapa.

76/UT CML2015
#ref: 149388
Licença de utilização: 76/UT/CML/2015

Localização

Estrela, Lisboa, Lisboa

Informação do anúncio

ID do anúncio 1412031
Referência Externa 149388
Atualizado em 13/12/2025 01:58:06
IAD Portugal AMI 11220
Referência do imóvel: 149388
Phone
Chamada para a rede fixa nacional
IAD Portugal AMI 11220
Referência do imóvel: 149388
Phone
Chamada para a rede fixa nacional
1 / 28
Apartamento T4 para Arrendamento em Estrela Foto 1
Apartamento T4 para Arrendamento em Estrela Foto 2
Apartamento T4 para Arrendamento em Estrela Foto 3
Apartamento T4 para Arrendamento em Estrela Foto 4
Apartamento T4 para Arrendamento em Estrela Foto 5
Apartamento T4 para Arrendamento em Estrela Foto 6
Apartamento T4 para Arrendamento em Estrela Foto 7
Apartamento T4 para Arrendamento em Estrela Foto 8
Apartamento T4 para Arrendamento em Estrela Foto 9
Apartamento T4 para Arrendamento em Estrela Foto 10
Apartamento T4 para Arrendamento em Estrela Foto 11
Apartamento T4 para Arrendamento em Estrela Foto 12
Apartamento T4 para Arrendamento em Estrela Foto 13
Apartamento T4 para Arrendamento em Estrela Foto 14
Apartamento T4 para Arrendamento em Estrela Foto 15
Apartamento T4 para Arrendamento em Estrela Foto 16
Apartamento T4 para Arrendamento em Estrela Foto 17
Apartamento T4 para Arrendamento em Estrela Foto 18
Apartamento T4 para Arrendamento em Estrela Foto 19
Apartamento T4 para Arrendamento em Estrela Foto 20
Apartamento T4 para Arrendamento em Estrela Foto 21
Apartamento T4 para Arrendamento em Estrela Foto 22
Apartamento T4 para Arrendamento em Estrela Foto 23
Apartamento T4 para Arrendamento em Estrela Foto 24
Apartamento T4 para Arrendamento em Estrela Foto 25
Apartamento T4 para Arrendamento em Estrela Foto 26
Apartamento T4 para Arrendamento em Estrela Foto 27
Apartamento T4 para Arrendamento em Estrela Foto 28
Apartamento T4 para Arrendamento em Estrela
Clicky