Lista
Comprar
Arrendar
1.900.000 €
Área de terreno : 428 m²
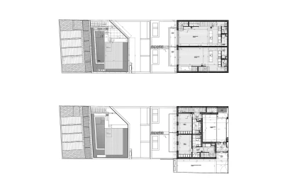
Empreendimento único, de luxo, composto por 7 frações, garantindo privacidade total e um ambiente sereno no coração de Lisboa, na Graça. Cada detalhe foi pensado para proporcionar uma experiência residencial sofisticada, tranquila e verdadeiramente exclusiva. O Projeto, composto por 7 frações, rooftop e logradouro com vistas soberbas sobre a cidade, encontra-se aprovado e com licenças camarárias já pagas. Inclui: (Edifício A)-5 apartamentos T2 e T3 com estacionamento, elevador e piscina no rooftop (Edifício B)- 2 moradias independentes V3, cada uma com entrada privada, jardim e piscina exclusiva Apartamentos (Edifício A) Tipologias T2, T2+1 e T3 Áreas entre 63 m² e 115 m² Estacionamento privativo Varandas e logradouros em algumas unidades Piscina e solário na cobertura (82,54 m²) Acabamentos modernos, conforto térmico e acústico de excelência Moradias (Edifício B) Tipologia V3 Áreas entre 146 m² e 154 m² Estacionamento (1 duplo ou 2 lugares) Jardim e piscina privativa (28,89 m²) Terraços e varandas amplas Entrada totalmente independente -RESUMO: -Inserido na Área Aru e Oru simples com Parecer favoravel de iva de obra a 6% - Licenças de obra pagas - Tipo de obras a executar: Construção Nova - Área total de construção : 943,77m2 - Área de implantação: 300,89m2 - Número de pisos acima da cota de soleira: 4 - Número de pisos abaixo da cota de soleira: 1 - Uso a que se destina a edificação: Habitação - Altura da fachada do edifício: 9,75m
AMI: 2786
Ref. Externa: ILX-015/26
Id: 1737190
Inicie sessão para guardar este imóvel e aceder à sua lista de favoritos em qualquer dispositivo.
1.900.000 €
Área de terreno : 427 m²
Projeto Aprovado | Licença Paga | Condomínio 7 frações | GraçaProjeto arquitetónico contemporâneo, para construção de um condomínio exclusivo, no coração da Graça, uma das zonas mais autênticas e em maior valorização de Lisboa, combinando tradição, identidade histórica e crescente atratividade residencial e turística.Apresentamos uma oportunidade única de investimento com Projeto Aprovado e Licença Paga, em terreno urbano, com estacionamento, pronto para início imediato de construção de um condomínio premium e exclusivo com apenas 7 frações únicas, desenhadas para proporcionar o máximo bem-estar e privacidade.Um conceito residencial de luxo de baixa densidade, com 1.191 m2 de área bruta de construção, localizado em zona ARU e ORU com IVA de 6% na construção. Projeto Aprovado: Este terreno de 428 m², com ruína, tem um projeto aprovado para um prédio com 675 m² de área bruta privativa e 515 m² de área bruta dependente com as seguintes caracteristicas:- Bloco com 5 apartamentos (T2, T3 e T2+1) Estacionamento privativo (uma viatura cada) Elevador Piscina e solário comum, no rooftop com vista panorâmica - Bloco com 2 moradias T3 independentes Entrada privada Estacionamento exclusivo (2 viaturas cada) Jardim e piscina privativa Localização Única: No coração da Graça, junto ao emblemático Miradouro da Senhora do Monte, este projeto beneficia de uma envolvente autêntica e vibrante, onde a tradição lisboeta se cruza com a vida contemporânea. A proximidade ao centro histórico de Lisboa, bem como a vasta oferta de comércio local, restaurantes e serviços, garante uma vivência prática e dinâmica. Com excelentes acessos a transportes públicos, incluindo o icónico elétrico, esta localização oferece o equilíbrio perfeito entre centralidade e tranquilidade, tornando-se uma das mais procuradas e valorizadas da cidade.Excelente oportunidade rara de desenvolver um projeto exclusivo numa das localizações mais desejadas de Lisboa.Contacte-nos para mais informações e detalhes.5SP Lda - AMI 22398
AMI: 22398
Ref. Externa: 6372-TER-AB
Id: 1722222
Inicie sessão para guardar este imóvel e aceder à sua lista de favoritos em qualquer dispositivo.
1.900.000 €
Área de terreno : 427 m²
Graça Living é um condomínio de luxo e exclusividade, um verdadeiro refúgio urbano com apenas 7 frações únicas, desenhadas para proporcionar o máximo bem-estar e privacidade. Um projeto contemporâneo que alia elegância, conforto e funcionalidade, no coração de um dos bairros mais carismáticos de Lisboa. Trata-se de um terreno com projeto aprovado para a construção de prédio com 5 apartamentos e bloco com duas moradias, com licença a pagamento, distribuídos em 1.191 m2 de área bruta. O projeto conta com: - Prédio com 5 apartamentos (T2 e T3), todos com acesso a uma magnífica piscina rooftop com solário e vistas deslumbrantes sobre Lisboa. - 2 moradias independentes, com entrada privada, estacionamento exclusivo, jardim e piscina privativa, trazendo a combinação perfeita entre tranquilidade e centralidade. Áreas: R/C: 150,85m2 Parque Piso 1: T2 - 63,13m2 Piso 1: T2 - 66,26m2 + 57,37m2 Logradouro Piso 2: T2 - 63,13m2 + 5,82m2 Varanda Piso 3: T2 - 66,26 m2 Piso 3: T2+1 - 115,48m2 + 5,82m2 Varanda Cobertura: 82,54m2 Piscina/Solário Moradia V3: 224m2 Moradia V3: 218m2 O projecto 'Graça Living' está em ARU, e ORU, reunindo por isso as exigências para IVA de 6% na construção. Cada unidade foi pensada ao detalhe para proporcionar uma experiência de vida sofisticada, com espaços amplos, luz natural abundante e uma arquitetura que promove a harmonia entre o interior e o exterior. Estacionamento para todas as frações. O projeto dispõe de piscina rooftop com solário para os apartamentos, com vistas panorâmicas. Jardins privativos com piscina nas moradias. Elevados padrões de conforto térmico e acústico, que garantem um ambiente calmo e acolhedor. Um projeto com design contemporâneo com identidade Lisboeta. O Graça Living beneficia de um ambiente vibrante onde tradição e modernidade convivem em perfeita sintonia. A tranquilidade e o charme de um bairro histórico, com a conveniência de estar no centro de tudo. Situado numa das localizações mais carismáticas e em crescente valorização de Lisboa, onde a tradição se funde com a modernidade, oferecendo um ambiente autêntico e vibrante. Com acesso fácil, comércio local e pontos turísticos, além de transportes e pontos turísticos.
AMI: 17077
Ref. Externa: EMP_333.BG.LX
Id: 1709004
Inicie sessão para guardar este imóvel e aceder à sua lista de favoritos em qualquer dispositivo.
1.900.000 €
Área de terreno : 427 m²
Apresentamos o Graça Living, um projeto residencial exclusivo situado numa das zonas mais autênticas e em maior valorização de Lisboa: o emblemático bairro da Graça. Trata-se de um terreno urbano com projeto aprovado e licença liquidada, pronto a avançar para construção, com uma ABC de 1.191 m2. Este projeto foi concebido para dar origem a um condomínio premium de apenas 7 frações, onde o luxo, a privacidade e o bem-estar são prioridades. Composição do projeto: - 5 apartamentos T2 e T3, com estacionamento, elevador e acesso a uma piscina no rooftop, com vista panorâmica e deslumbrante sobre a cidade de Lisboa. - 2 moradias independentes, com entrada privada, estacionamento exclusivo e jardim com piscina privativa, garantindo máxima exclusividade. Destaques para investidores: - Produto escasso e altamente diferenciado: apenas 7 unidades, assegurando exclusividade e forte procura. - Localização em plena valorização: a Graça é hoje uma das zonas mais procuradas de Lisboa, combinando tradição, identidade histórica e crescente atratividade residencial e turística. - Projeto arquitetónico contemporâneo, integrado na identidade lisboeta, ideal para um público nacional e internacional exigente. - Elevado potencial de rentabilidade, quer em arrendamento de segmento premium, quer em revenda. - Projeto com estacionamento e licença liquidada, reduzindo riscos e prazos de desenvolvimento. O Graça Living não é apenas um projeto arquitetónico é uma oportunidade de investimento sólida num terreno urbano em Lisboa, com elevado valor acrescentado, inserido num dos mercados imobiliários mais resilientes e atrativos da Europa.
AMI: 6332
Ref. Externa: CB06-0220
Id: 1378841
Inicie sessão para guardar este imóvel e aceder à sua lista de favoritos em qualquer dispositivo.
790.000 €
Área de terreno : 266 m²
1 Terreno com 266 m2 Pra construção de habitação / prédio Fica numa zona nobre da cidade (Campo Santana)
AMI: 1563
Ref. Externa: pt3224
Id: 222194
Inicie sessão para guardar este imóvel e aceder à sua lista de favoritos em qualquer dispositivo.
Estes agentes são especialistas nesta zona:
Inicie sessão para ocultar este imóvel das suas pesquisas e manter a sua lista de resultados organizada.
© Copyright 2023 | CASACERTA. All rights reserved
Guardar favoritos
Este imóvel foi guardados nos seus favoritos com sucesso.
Para poder guardar pesquisa deverá ter a sua sessão iniciada.
Caso não tenha uma conta, deverá criar uma.
A sua pesquisa foi guardada com sucesso!
Este site utiliza cookies. Ao navegar no site estará a consentir a sua utilização.
Para mais informações sobre os cookies pode consultar a
política de privacidade.