Prédio para Venda em Buarcos
315.000 €
Tipo
Prédio
Negócio
Venda
Ano de Construção
2024
Área Bruta
322 m²
Área Útil
277 m²
Certificado Energético
F
Área do Terreno
148 m²
Prédio no centro da Figueira da Foz ideal para investimento
Apresento-vos um prédio em propriedade total, localizado no coração da encantadora cidade da Figueira da Foz, na prestigiada Rua José da Silva Fonseca.
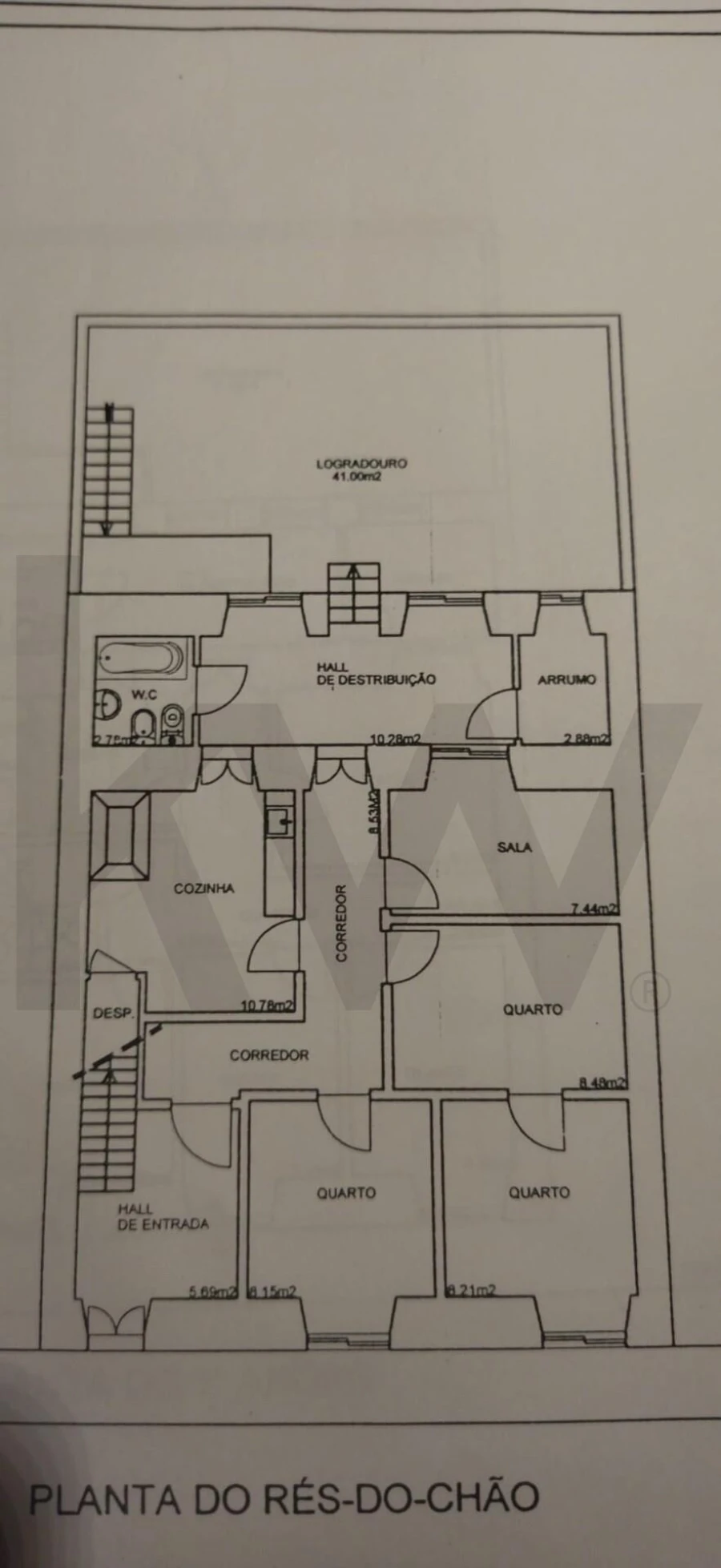
Este edifício é composto por três apartamentos totalmente independentes, distribuídos por rés do chão, primeiro e segundo andar, oferecendo uma excelente oportunidade de investimento ou reabilitação.
Características do Prédio
Tipologia: 3 apartamentos T3
Distribuição: Rés do chão, primeiro andar e segundo andar
Composição dos apartamentos:
Sala
Cozinha
3 quartos
1 ou 2 casas de banho, dependendo do apartamento
Logradouro: 41 m² com acesso pelo rés do chão e pelo primeiro andar
Área total do edifício: 322 m²
Potencial
O prédio necessita de obras de reabilitação, representando uma excelente oportunidade para investidores ou para quem pretende criar habitação própria num imóvel com grande potencial de valorização.
A sua localização central permite fácil acesso a comércio, serviços, escolas e à zona de praia, tornando-o ideal para habitação própria, arrendamento ou projeto turístico.
Nota
Algumas imagens apresentadas são meramente ilustrativas e criadas com recurso a Inteligência Artificial, com o objetivo de demonstrar o potencial do imóvel após remodelação.
Praias:
A Figueira da Foz é conhecida pelas suas praias deslumbrantes. A Praia da Claridade, uma das mais famosas, é um destino perfeito para banhistas e praticantes de desportos aquáticos.
Outras praias populares incluem a Praia de Buarcos, ideal para famílias, e a Praia do Relógio, conhecida pelas suas extensas areias douradas.
Atrações:
Casino da Figueira: Um dos mais antigos de Portugal, oferece entretenimento variado, desde jogos a espetáculos de música e teatro.
Fortaleza de Santa Catarina: Uma visita obrigatória para os amantes de história, com vistas panorâmicas sobre o mar e a cidade.
Parque das Abadias: Um vasto espaço verde perfeito para caminhadas, piqueniques e atividades ao ar livre.
Mercado Municipal: Local vibrante onde se encontram produtos frescos e regionais, proporcionando uma experiência autêntica da cultura local.
Infraestrutura:
Proximidade a escolas, centros de saúde, transportes públicos e uma variedade de comércio e serviços que facilitam o dia a dia dos moradores.
Potencial de Investimento:
Este prédio apresenta um enorme potencial para diversos tipos de projetos imobiliários, como:
Desenvolvimento Residencial: Transformação em apartamentos modernos para venda ou arrendamento.
Estabelecimentos Comerciais: Ideal para lojas, restaurantes ou escritórios, beneficiando da localização central.
Alojamento Turístico: Perfeito para criação de um hostel ou guest house, aproveitando o fluxo constante de turistas na região.
Não perca esta oportunidade única de investir na Figueira da Foz, uma cidade em crescimento contínuo, com uma oferta diversificada de lazer e uma qualidade de vida inigualável.
Entre em contacto para mais informações e agendamento de visitas.
Este edifício é composto por três apartamentos totalmente independentes, distribuídos por rés do chão, primeiro e segundo andar, oferecendo uma excelente oportunidade de investimento ou reabilitação.
Características do Prédio
Tipologia: 3 apartamentos T3
Distribuição: Rés do chão, primeiro andar e segundo andar
Composição dos apartamentos:
Sala
Cozinha
3 quartos
1 ou 2 casas de banho, dependendo do apartamento
Logradouro: 41 m² com acesso pelo rés do chão e pelo primeiro andar
Área total do edifício: 322 m²
Potencial
O prédio necessita de obras de reabilitação, representando uma excelente oportunidade para investidores ou para quem pretende criar habitação própria num imóvel com grande potencial de valorização.
A sua localização central permite fácil acesso a comércio, serviços, escolas e à zona de praia, tornando-o ideal para habitação própria, arrendamento ou projeto turístico.
Nota
Algumas imagens apresentadas são meramente ilustrativas e criadas com recurso a Inteligência Artificial, com o objetivo de demonstrar o potencial do imóvel após remodelação.
Praias:
A Figueira da Foz é conhecida pelas suas praias deslumbrantes. A Praia da Claridade, uma das mais famosas, é um destino perfeito para banhistas e praticantes de desportos aquáticos.
Outras praias populares incluem a Praia de Buarcos, ideal para famílias, e a Praia do Relógio, conhecida pelas suas extensas areias douradas.
Atrações:
Casino da Figueira: Um dos mais antigos de Portugal, oferece entretenimento variado, desde jogos a espetáculos de música e teatro.
Fortaleza de Santa Catarina: Uma visita obrigatória para os amantes de história, com vistas panorâmicas sobre o mar e a cidade.
Parque das Abadias: Um vasto espaço verde perfeito para caminhadas, piqueniques e atividades ao ar livre.
Mercado Municipal: Local vibrante onde se encontram produtos frescos e regionais, proporcionando uma experiência autêntica da cultura local.
Infraestrutura:
Proximidade a escolas, centros de saúde, transportes públicos e uma variedade de comércio e serviços que facilitam o dia a dia dos moradores.
Potencial de Investimento:
Este prédio apresenta um enorme potencial para diversos tipos de projetos imobiliários, como:
Desenvolvimento Residencial: Transformação em apartamentos modernos para venda ou arrendamento.
Estabelecimentos Comerciais: Ideal para lojas, restaurantes ou escritórios, beneficiando da localização central.
Alojamento Turístico: Perfeito para criação de um hostel ou guest house, aproveitando o fluxo constante de turistas na região.
Não perca esta oportunidade única de investir na Figueira da Foz, uma cidade em crescimento contínuo, com uma oferta diversificada de lazer e uma qualidade de vida inigualável.
Entre em contacto para mais informações e agendamento de visitas.
Localização
Buarcos, Figueira da Foz, Coimbra
Informação do anúncio
ID do anúncio
1432699
Referência Externa
KWPT-004059
Atualizado em
26/04/2026 00:02:03
Prédio para Venda em Buarcos