Moradia T6 para Venda em Ponta Delgada (São Sebastião)
1.300.000 €
Tipo
Moradia
Negócio
Venda
Quartos
6
Casas de Banho
5
Área Bruta
960 m²
Condição
Por recuperar
Certificado Energético
Isento
Área do Terreno
660 m²
AMPLO EDIFÍCIO - MORADIA com QUINTAL no centro histórico Ponta Delgada, Ilha São Miguel, A
Amplo Edifício para reabilitar no Centro Histórico de Ponta Delgada
Edifício centenário localizado no coração da cidade de Ponta Delgada, na freguesia de São Sebastião, uma das zonas mais centrais, consolidadas e valorizadas da cidade. A localização privilegia a proximidade imediata a serviços públicos, comércio diversificado, restauração, unidades hoteleiras, equipamentos culturais, jardins, piscinas públicas, porto e marina, tornando este imóvel especialmente adequado para projetos residenciais, turísticos ou de uso misto.
O edifício desenvolve-se em três pisos rés-do-chão, 1.º e 2.º andar e beneficia de várias entradas independentes a partir da via pública. Dispõe ainda de generosas áreas exteriores, nomeadamente dois logradouros ao nível do piso térreo e um terraço no 1.º piso, características de destaque em pleno centro urbano.
Pela sua localização estratégica e configuração, este imóvel apresenta elevado potencial de valorização, sendo adaptável a diferentes tipologias de investimento, tais como:
Projeto de utilização mista (habitação e comércio), com comércio ou serviços no piso térreo e criação de várias unidades habitacionais nos pisos superiores, ideal para investidores orientados para rendimento.
Projeto habitacional, permitindo a criação de várias frações (T0 a T3) ou o desenvolvimento de uma habitação unifamiliar de grande dimensão, preservando elementos arquitetónicos originais.
Projeto turístico, com forte potencial para reconversão em alojamento local premium, hostel boutique ou apartamentos turísticos, beneficiando da proximidade aos principais pontos de interesse da cidade.
Qualquer intervenção ou alteração deverá ser previamente submetida para apreciação do Município de Ponta Delgada.
Configuração atual do edifício:
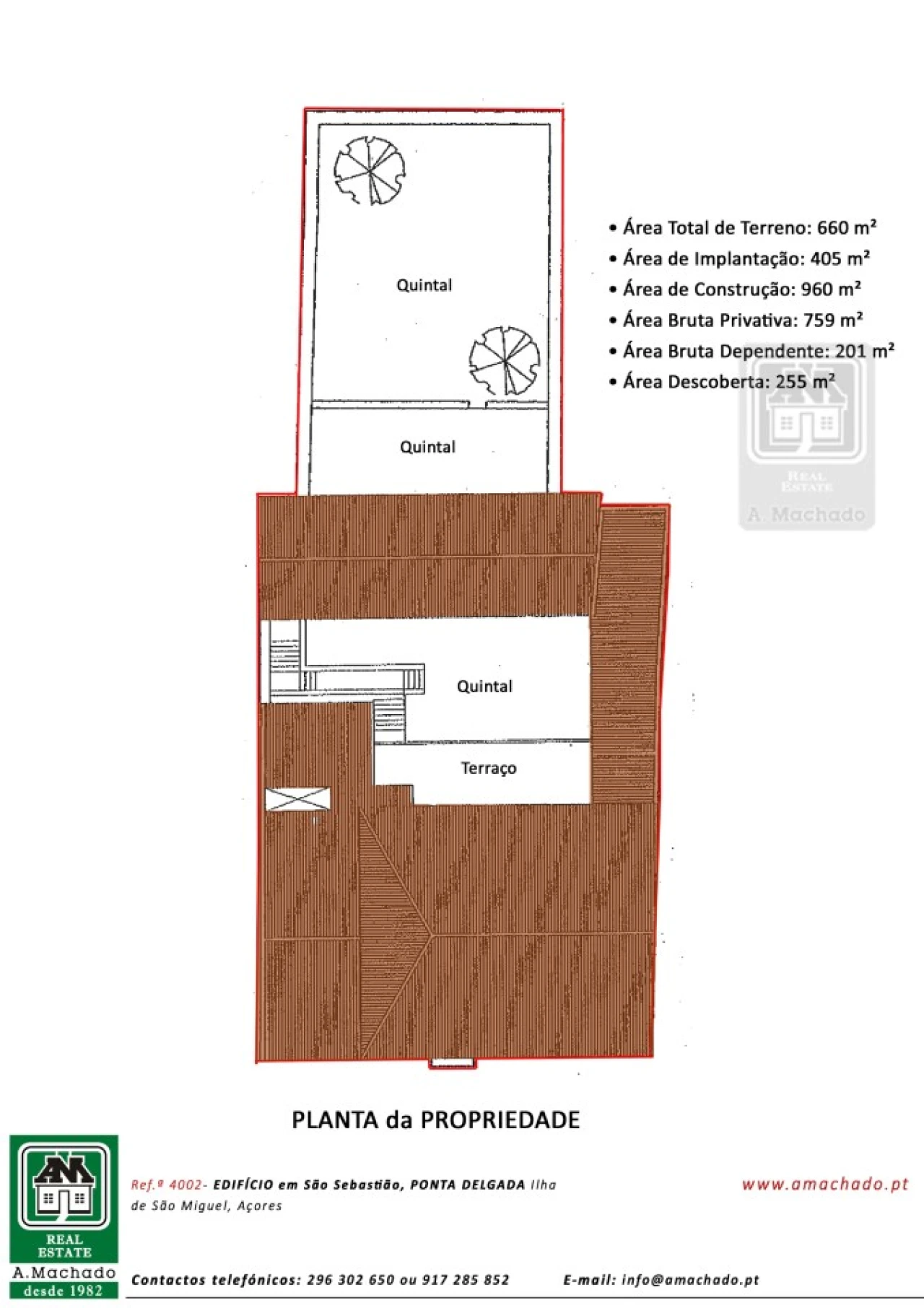
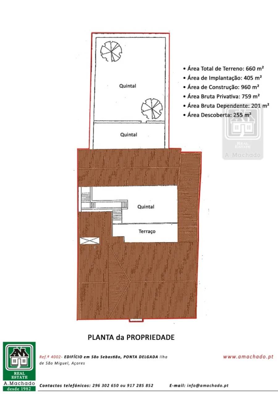
Piso 0 - Fachada principal dividida em três secções independentes: antiga cabeleireira em open space com arrumos, vestiário, duas instalações sanitárias e acesso ao logradouro; zona central com vestíbulo, várias divisões de arrumos, escadas e corredor com ligação ao exterior; e uma terceira secção adaptada a apartamento T0 com kitchenette e instalação sanitária. Na zona posterior existe um amplo quintal que conduz a uma antiga cavalariça, arrumos adicionais e um segundo logradouro, anteriormente ajardinado, com árvores.
Piso 1 - Hall de distribuição, corredor, escritório, salas de estar e jantar, cozinha com acesso ao terraço, lavandaria, casa de banho, dois quartos e várias divisões de arrumos.
Piso 2 - Hall, quatro quartos e uma ampla casa de banho.
Apesar de algumas áreas estarem atualmente classificadas como área bruta dependente, existe potencial para a sua conversão em área bruta privativa, mediante projeto adequado.
O edifício conserva elementos típicos da arquitetura açoriana, como paredes em pedra, pé-direito elevado em várias divisões, pavimentos em basalto no rés-do-chão, soalhos de madeira nos pisos superiores e arcos tradicionais em pedra. O imóvel necessita de obras de recuperação e reabilitação.
Áreas:
Terreno: 660 m²
Implantação: 405 m²
Construção: 960 m²
Área Bruta Privativa: 759 m²
Área Bruta Dependente: 201 m²
Área Descoberta: 255 m²
CERTIFICAÇÃO ENERGÉTICA: De acordo com o Decreto Legislativo Regional n.º 9/2025, de 12 de fevereiro, que adapta à Região Autónoma dos Açores o Decreto-Lei n.º 101-D/2020, e de acordo com o Art.º 32.º do mesmo, informa-se que a obtenção do Certificado Energético encontra-se em curso.
OBSERVAÇÃO IMPORTANTE:
O PRESENTE NEGÓCIO REFERE-SE À CESSÃO DA TOTALIDADE DOS QUINHÕES HEREDITÁRIOS, REALIZADA POR TODOS OS HERDEIROS, INCIDINDO SOBRE UMA HERANÇA CUJO ÚNICO BEM É O EDIFÍCIO AQUI DESCRITO.
CONTACTE-NOS para MAIS INFORMAÇÕES ou MARCAÇÃO DE VISITA.
Edifício centenário localizado no coração da cidade de Ponta Delgada, na freguesia de São Sebastião, uma das zonas mais centrais, consolidadas e valorizadas da cidade. A localização privilegia a proximidade imediata a serviços públicos, comércio diversificado, restauração, unidades hoteleiras, equipamentos culturais, jardins, piscinas públicas, porto e marina, tornando este imóvel especialmente adequado para projetos residenciais, turísticos ou de uso misto.
O edifício desenvolve-se em três pisos rés-do-chão, 1.º e 2.º andar e beneficia de várias entradas independentes a partir da via pública. Dispõe ainda de generosas áreas exteriores, nomeadamente dois logradouros ao nível do piso térreo e um terraço no 1.º piso, características de destaque em pleno centro urbano.
Pela sua localização estratégica e configuração, este imóvel apresenta elevado potencial de valorização, sendo adaptável a diferentes tipologias de investimento, tais como:
Projeto de utilização mista (habitação e comércio), com comércio ou serviços no piso térreo e criação de várias unidades habitacionais nos pisos superiores, ideal para investidores orientados para rendimento.
Projeto habitacional, permitindo a criação de várias frações (T0 a T3) ou o desenvolvimento de uma habitação unifamiliar de grande dimensão, preservando elementos arquitetónicos originais.
Projeto turístico, com forte potencial para reconversão em alojamento local premium, hostel boutique ou apartamentos turísticos, beneficiando da proximidade aos principais pontos de interesse da cidade.
Qualquer intervenção ou alteração deverá ser previamente submetida para apreciação do Município de Ponta Delgada.
Configuração atual do edifício:
Piso 0 - Fachada principal dividida em três secções independentes: antiga cabeleireira em open space com arrumos, vestiário, duas instalações sanitárias e acesso ao logradouro; zona central com vestíbulo, várias divisões de arrumos, escadas e corredor com ligação ao exterior; e uma terceira secção adaptada a apartamento T0 com kitchenette e instalação sanitária. Na zona posterior existe um amplo quintal que conduz a uma antiga cavalariça, arrumos adicionais e um segundo logradouro, anteriormente ajardinado, com árvores.
Piso 1 - Hall de distribuição, corredor, escritório, salas de estar e jantar, cozinha com acesso ao terraço, lavandaria, casa de banho, dois quartos e várias divisões de arrumos.
Piso 2 - Hall, quatro quartos e uma ampla casa de banho.
Apesar de algumas áreas estarem atualmente classificadas como área bruta dependente, existe potencial para a sua conversão em área bruta privativa, mediante projeto adequado.
O edifício conserva elementos típicos da arquitetura açoriana, como paredes em pedra, pé-direito elevado em várias divisões, pavimentos em basalto no rés-do-chão, soalhos de madeira nos pisos superiores e arcos tradicionais em pedra. O imóvel necessita de obras de recuperação e reabilitação.
Áreas:
Terreno: 660 m²
Implantação: 405 m²
Construção: 960 m²
Área Bruta Privativa: 759 m²
Área Bruta Dependente: 201 m²
Área Descoberta: 255 m²
CERTIFICAÇÃO ENERGÉTICA: De acordo com o Decreto Legislativo Regional n.º 9/2025, de 12 de fevereiro, que adapta à Região Autónoma dos Açores o Decreto-Lei n.º 101-D/2020, e de acordo com o Art.º 32.º do mesmo, informa-se que a obtenção do Certificado Energético encontra-se em curso.
OBSERVAÇÃO IMPORTANTE:
O PRESENTE NEGÓCIO REFERE-SE À CESSÃO DA TOTALIDADE DOS QUINHÕES HEREDITÁRIOS, REALIZADA POR TODOS OS HERDEIROS, INCIDINDO SOBRE UMA HERANÇA CUJO ÚNICO BEM É O EDIFÍCIO AQUI DESCRITO.
CONTACTE-NOS para MAIS INFORMAÇÕES ou MARCAÇÃO DE VISITA.
Localização
Ponta Delgada (São Sebastião), Ponta Delgada, Ilha de São Miguel
Informação do anúncio
ID do anúncio
1542334
Referência Externa
4002
Atualizado em
07/05/2026 22:32:15
Anunciante
Chamada para a rede fixa nacional
AMachado Real Estate
AMI 622
Referência do imóvel:
4002
Moradia T6 para Venda em Ponta Delgada (São Sebastião)