Moradia T3 para Venda em São João das Lampas e Terrugem
1.100.000 €
Tipo
Moradia
Negócio
Venda
Ano de Construção
2025
Quartos
3
Casas de Banho
3
Área Bruta
223 m²
Área Útil
223 m²
Certificado Energético
A+
Casa / Villa T3 em Sintra
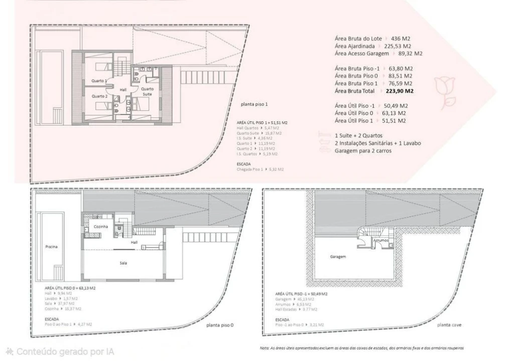
Moradia T3 de arquitetura contemporânea, em fase final de construção, localizada na Abrunheira, uma das zonas mais nobres e em forte valorização no concelho de Sintra. Inserida num lote de 436 m², esta propriedade oferece 224 m² de área bruta de construção, combinando conforto, design e funcionalidade.
No piso térreo, destaca-se um elegante espaço em open space, onde a sala e a cozinha se interligam de forma harmoniosa, criando um ambiente moderno e luminoso, ideal para o convívio familiar e social. Conta ainda com uma casa de banho social.
O primeiro piso é composto por três quartos, todos com varanda e roupeiros embutidos, sendo um deles uma confortável suíte. Existe ainda uma casa de banho completa de apoio aos restantes quartos.
Na cave, a moradia dispõe de garagem para dois veículos, lavandaria e um espaço multiusos, perfeito para ginásio, sala de cinema, escritório ou zona de lazer.
O exterior oferece uma área generosa e convidativa, com jardim e piscina, ideal para desfrutar de momentos únicos ao ar livre, em família ou com amigos.
Com um design moderno e ambiente acolhedor, esta moradia alia luxo, conforto e elevada eficiência energética, proporcionando um estilo de vida contemporâneo e sofisticado.
A localização é um dos seus grandes trunfos: a apenas 5 minutos encontra uma vasta oferta de comércio e serviços, como o Alegro Sintra e o Hospital CUF Sintra, bem como diversas opções de lazer — golf, ginásio, spa, ténis, padel e clube equestre. Na área educativa, destaca-se a proximidade de escolas públicas e privadas de referência, como o Colégio da Beloura, Colégio do Ramalhão, TASIS International School e Carlucci American International School of Lisbon (CAISL).
Com acessos rápidos às principais vias (A16, A5 e IC19), permite ligações fáceis a Lisboa, Sintra, Cascais e Estoril. O Aeroporto de Lisboa encontra-se a apenas 35 minutos, Cascais e Oeiras a 15 minutos, e a histórica Vila de Sintra a apenas 10 minutos.
✨ Uma moradia pensada para quem procura qualidade de vida, exclusividade e uma localização privilegiada.
#ref: 804175
No piso térreo, destaca-se um elegante espaço em open space, onde a sala e a cozinha se interligam de forma harmoniosa, criando um ambiente moderno e luminoso, ideal para o convívio familiar e social. Conta ainda com uma casa de banho social.
O primeiro piso é composto por três quartos, todos com varanda e roupeiros embutidos, sendo um deles uma confortável suíte. Existe ainda uma casa de banho completa de apoio aos restantes quartos.
Na cave, a moradia dispõe de garagem para dois veículos, lavandaria e um espaço multiusos, perfeito para ginásio, sala de cinema, escritório ou zona de lazer.
O exterior oferece uma área generosa e convidativa, com jardim e piscina, ideal para desfrutar de momentos únicos ao ar livre, em família ou com amigos.
Com um design moderno e ambiente acolhedor, esta moradia alia luxo, conforto e elevada eficiência energética, proporcionando um estilo de vida contemporâneo e sofisticado.
A localização é um dos seus grandes trunfos: a apenas 5 minutos encontra uma vasta oferta de comércio e serviços, como o Alegro Sintra e o Hospital CUF Sintra, bem como diversas opções de lazer — golf, ginásio, spa, ténis, padel e clube equestre. Na área educativa, destaca-se a proximidade de escolas públicas e privadas de referência, como o Colégio da Beloura, Colégio do Ramalhão, TASIS International School e Carlucci American International School of Lisbon (CAISL).
Com acessos rápidos às principais vias (A16, A5 e IC19), permite ligações fáceis a Lisboa, Sintra, Cascais e Estoril. O Aeroporto de Lisboa encontra-se a apenas 35 minutos, Cascais e Oeiras a 15 minutos, e a histórica Vila de Sintra a apenas 10 minutos.
✨ Uma moradia pensada para quem procura qualidade de vida, exclusividade e uma localização privilegiada.
#ref: 804175
Localização
São João das Lampas e Terrugem, Sintra, Lisboa
Informação do anúncio
ID do anúncio
1602818
Referência Externa
804175
Atualizado em
21/05/2026 23:33:17
Moradia T3 para Venda em São João das Lampas e Terrugem
Vídeo