Lista
Comprar
Arrendar
Área de terreno : 357 m²
Identificação do imóvel: ZMPT577272Terreno para construção de moradia próximo da EN13:O local da sua futura moradia, próxima dos principais acessos!DESCRIÇÃO DO TERRENO:Terreno urbano com área de 357 m2 localizado na Rua Mainça nº842, em Leça do Balio, junto à EN13 e ao lado do Continente Modelo de Leça do Balio. Neste terreno, prevê-se a construção de uma moradia unifamiliar com 2 frentes e uma área bruta de construção de 227 m2. Contempla ainda uma área dependente para garagem e arrumos com 45m2, assim como áreas exteriores ajardinadas. A nova moradia deverá seguir os alinhamentos existentes com as propriedades vizinhas.DESCRIÇÃO DA ENVOLVENTE:Zona maioritariamente residencial, em Leça do Balio, a escassos metros do supermercado Continente Modelo de Leça do Balio e a escassos metros da Estrada Nacional 13, que une a Maia ao Porto. Na envolvente, é possível encontrar escolas, farmácias, supermercados, padarias, correios e diversos serviços. O acesso à autoestrada A4 é proporcionado por um rápido acesso através da EN13, cujo trajeto tem apenas 2 minutos (acessos a Porto, Aveiro e Lisboa).INFORMAÇÕES GERAIS DO TERRENO:• Localização: Rua Mainça nº 842, Leça do Balio (Matosinhos)• Tipo de terreno: urbano• Área total do terreno: 357 m2• Orientação solar: frente urbana voltada a norte e logradouro a sul• Dimensões aproximadas: 7,3 metros de largura (frente) e 49 metros de profundidade• Confrontações: a norte com a via pública e a nascente, poente e sul com outros privados• Infra-estruturas: eletricidade, abastecimento de água e saneamento públicoÁREAS PREVISTAS DE ACORDO COM A CADERNETA PREDIAL:• Área de bruta de construção: 227 m2• Área de implantação: 136 m2• Áreas dependentes para garagem/arrumos: 45 m2• Natureza da construção: habitação unifamiliar• Tipologia: moradia individual• A moradia deverá ser disposta em 2 pisos (Rc e 1 andar) com áreas ajardinadas• Fachada principal voltada a Norte e fachada posterior para Sul (logradouro)ESTUDO DE VIABILIDADE CONSTRUTIVA (não vinculativo):• Área de bruta de construção: 227 m2• Área de implantação: 136 m2• Possibilidade construção de garagem no Rc• Natureza da construção: habitação unifamiliar• Tipologia: moradia individual (2 frentes)• A moradia deverá ser disposta em 2 pisos (Rc e 1 andar) com áreas ajardinadas• Fachada principal voltada a Norte e fachada posterior para Sul (logradouro)Caso pretenda esclarecimentos adicionais, temos ao seu dispor uma equipa multidisciplinar pronta para o(a) ajudar na concretização do seu novo projeto de habitação neste terreno!PONTOS PRÓXIMOS E DISTÂNCIAS:• A 150 m do supermercado Continente Modelo de Leça do Balio (2 min. a pé)• A 350 m do Parque de Picoutos (6 min. a pé)• A 350 m da Makro de Matosinhos (6 min. a pé)• A 450 m da Staples de Matosinhos (7 min. a pé)• A 650 m da Nacional13 (1 min. carro)• A 1,6 Km da A4 (2 min. carro)• A 1,7 km do supermercado Pingo Doce (5 min. carro)• A 3,5 Km da Efacec (6 min. carro)• A 5,2K m da Câmara Municipal da Maia (8 min. carro)Próximo da EN13 e bem servido de serviços, este pode ser o local onde vai construir a sua futura casa de sonho. Fale connosco para obter mais informações e concretizar este projeto!3 razões para comprar com a Zome+ acompanhamentoCom uma preparação e experiência única no mercado imobiliário, os consultores Zome põem toda a sua dedicação em dar-lhe o melhor acompanhamento, orientando-o com a máxima confiança, na direção certa das suas necessidades e ambições.Daqui para a frente, vamos criar uma relação próxima e escutar com atenção as suas expectativas, porque a nossa prioridade é a sua felicidade! Porque é importante que sinta que está acompanhado, e que estamos consigo sempre.+ simplesOs consultores Zome têm uma formação única no mercado, ancorada na partilha de experiência prática entre profissionais e fortalecida pelo conhecimento de neurociência aplicada que lhes permite simplificar e tornar mais eficaz a sua experiência imobiliária.Deixe para trás os pesadelos burocráticos porque na Zome encontra o apoio total de uma equipa experiente e multidisciplinar que lhe dá suporte prático em todos os aspetos fundamentais, para que a sua experiência imobiliária supere as expectativas.+ felizO nosso maior valor é entregar-lhe felicidade!Liberte-se de preocupações e ganhe o tempo de qualidade que necessita para se dedicar ao que lhe faz mais feliz.Agimos diariamente para trazer mais valor à sua vida com o aconselhamento fiável de que precisa para, juntos, conseguirmos atingir os melhores resultados.Com a Zome nunca vai estar perdido ou desacompanhado e encontrará algo que não tem preço: a sua máxima tranquilidade!É assim que se vai sentir ao longo de toda a experiência: Tranquilo, seguro, confortável e... FELIZ!Notas:1. Caso seja um consultor imobiliário, este imóvel está disponível para partilha de negócio. Não hesite em apresentar aos seus clientes compradores e fale connosco para agendar a sua visita.2. Para maior facilidade na identificação deste imóvel, por favor, refira o respetivo ID ZMPT ou o respetivo agente que lhe tenha enviado a sugestão.
AMI: 17432
Ref. Externa: ZMPT577272
Id: 1635556
Inicie sessão para guardar este imóvel e aceder à sua lista de favoritos em qualquer dispositivo.
Área de terreno : 214 m²
Terreno em Guifões para moradia , junto ao Supermercado Pingo Doce , Igreja e Piscina Municipal. Excelentes acessos, transportes, escolas, supermercado O loteamento está devidamente licenciado, com todas as infraestruturas executadas, é composto por vários lotes de terreno, para construção de moradias de duas frentes: Características dos lotes Área do lote: 214.50 m2. Área de implantação: 91 m2. Cércea: Cave + R/C + 1 pisos + Recuado. Área de habitação: 234 m2. Área de Aparcamento: 91. Área de construção abaixo do solo: 91 m2. Área de construção acima do solo: 234 m2. Área total de construção: 325,00 m2.
AMI: 5380
Ref. Externa: 11895
Id: 1606722
Inicie sessão para guardar este imóvel e aceder à sua lista de favoritos em qualquer dispositivo.
Área de terreno : 283 m²
Lote de terreno em local PREMIUM.(Pedra Verde) Zona verde, de grande sossego e com apoio logístico total. A 5 minutos H. S. João e Faculdades , 12 minutos aeroporto, próximo de transportes, comércios e supermercados Construa a sua moradia de 3 frentes podendo fazê-lo com cave ou sem cave, R7chão e 1º piso. Área de terreno com 283 m2 ; Área de implantação 110 m2 ; Área de construção 278 m2 ( com cave ) e Área dependente de 110 m2.
AMI: 3227
Ref. Externa: 5910
Id: 1600343
Inicie sessão para guardar este imóvel e aceder à sua lista de favoritos em qualquer dispositivo.
Área de terreno : 164 m²
Terreno com 164 m², ideal para moradia unifamiliar em banda, com uma capacidade construtiva total de 325 m², distribuída por 234 m² acima do solo e 91 m² abaixo do solo. Localização privilegiada em Leça do Balio, a poucos minutos da estação de metro de Custió, garantindo excelentes acessos ao Porto e arredores, e com rápida ligação ao centro da Maia, onde encontra comércio, serviços, escolas e todas as comodidades do dia a dia. Uma opção ideal para quem procura qualidade de vida, acessibilidade e potencial de valorização, seja para habitação própria ou investimento. Para mais informações e/ou agendar visita, contacte-nos! A Real Objectiva é uma empresa implantada no norte de Portugal, vocacionada para a venda e arrendamento de imóveis. Fruto dos seus 26 anos de trabalho, pautados pelo rigor e profissionalismo alcançou resultados reconhecidos pelo mercado em que se insere, atuando de forma transversal no mercado habitacional e no mercado industrial. Missão: Praticar um conceito de mediação imobiliária baseada na relação cliente/empresa consolidada pelo papel do consultor especialista e capaz de permitir a superação das expectativas de todos os intervenientes. Posicionamento: Vendemos casas Vendemos armazéns, escritórios, lojas e terrenos Especialistas do mercado imobiliário Princípios de Atuação: Competência Confidencialidade Idoneidade Disponibilidade Modelos de Ação: Rigor e profissionalismo Especialistas na angariação e na mediação imobiliária Estudamos o mercado e propomo-nos a encontrar soluções adequadas Avaliações rigorosas e alvo de estudo pormenorizado Cuidado extremo nas visitas
AMI: 3456
Ref. Externa: RO2762
Id: 1575575
Inicie sessão para guardar este imóvel e aceder à sua lista de favoritos em qualquer dispositivo.
Área de terreno : 4800 m²
Terreno para construção de condomínio fechado de 19 moradias unifamiliares, localizado em Leça do Balio, Matosinhos, junto ao nó da de acesso à EN14 ( via norte) em Leça do Balio. O Terreno possui uma área total de 4.800,00 m2, para o qual foi elaborado um projeto que não irá ocupar a totalidade da sua área somente 4.201,60 m2. A área de intervenção engloba a construção de um novo arruamento que ocupa 1.326,60 m2 e os restantes 2.875,00 m2 são destinados ao conjunto de 19 moradias e espaços verdes envolventes. O conjunto das dezanove habitações dividide-se em dois edifícios de três pisos cada. Os dois volumes são formados por bandas de onze e oito moradias respetivamente. As bandas de moradias posicionam-se paralelamente aos arruamentos, a de onze ao 'Arruamento Novo'e a de oito à Rua António Montenegro. Serão deste modo construídas dezanove habitações de caracter unifamiliar com dezanove espaços verdes próprios e uma área comum também verde dotada de um equipamento coletivo (piscina e sala de condomínio) O uso destinado as construções será de habitação unifamiliar de tipologia T4, com áreas privadas com cerca de 216,50 m2 e com Áreas habitáveis medias na ordem dos 173,00 m2. Todas elas possuem um acesso direto à rua com lugar de estacionamento para um carro. Ao nível do piso 0 existem pequenos logradouros individuais com cerca de 18,00 m2 voltados para as traseiras de cada habitação, um pequeno pátio interior que ilumina/ventila o espaço da cozinha, escadas e zonas de circulação do piso 0 e piso 1, e um segundo logradouro 'parcialmente fechado' com cerca de 22,00 m2 na frente da casa, que funciona como um átrio exterior da habitação e permite parar um carro. No piso inferior fica ainda a sala, a cozinha/lavandaria e uma instalação sanitária. Cada moradia contém 4 instalações sanitárias : uma de serviço no piso 0, duas no 1º piso - onde ficam dois quartos - sendo uma delas completa, e uma no 2º piso -onde ficam mais dois quartos. O terreno fica a apenas 10 minutos do Grande Porto, sendo uma excelente oportunidade de investimento e uma excelente oportunidade para investimento em habitação própria. A FORMAL - PRIVATE REAL ESTATE Integrada no grupo FORMAL que integra há vários anos o sector da mediação imobiliária, foi criada a FORMAL PRIVATE, com o objetivo de trabalhar um segmento de mercado diferenciado, apostando no rigor, excelência e qualidade indiscutíveis dos nossos produtos e serviços. Na FORMAL PRIVATE, desenvolvemos um serviço de destaque, garantido pela nossa equipa especializada que se distingue pela sua formação e conhecimento intrínseco do mercado imobiliário, trabalhando em sinergia com os melhores parceiros nacionais e internacionais. Acompanhamos de perto a evolução do mercado imobiliário e procuramos uma atualização permanente sobre as tendências dos diversos segmentos, por forma a assegurar um serviço de qualidade, seguro e transparente. Para mais informações consulte-nos através do telef. 967 336 230 ou em www.formal.pt
AMI: 1600
Ref. Externa: 31274
Id: 1571011
Inicie sessão para guardar este imóvel e aceder à sua lista de favoritos em qualquer dispositivo.
Área de terreno : 309 m²
Terreno para construção de moradia, com projecto aprovado. Projecto para moradia, composta por 3 pisos: Cave, Rés do Chão e 1º Piso. - Área Total do Terreno - 215,6m² - Área Implantação - 122,25m² - Área Bruta Construção - 281,25m² - Área Bruta Dependente - 28,5m² Conforto e funcionalidade são factores importantes na construção desta moradia. Localizadas a 10 minutos do Porto, de Matosinhos e do Centro da Maia. Localização privilegiada para o Pólo Universitário e Hospital S. João. Marque já a sua visita. Mais informações sobre este ou outro imóvel e marcações de visita, contacte-me.
AMI: 7142
Ref. Externa: PRT/00593
Id: 1570815
Inicie sessão para guardar este imóvel e aceder à sua lista de favoritos em qualquer dispositivo.
Área de terreno : 244 m²
Loteamento em Leça do Balio a 10 minutos do Aeroporto Francisco Sá Carneiro. -Primeira fase com 10 moradias em banda. -Com jardim e zona de espaço público. -As moradias desenvolvem-se em 3 pisos. -Sendo a cave destinada a sala de apoio, garagem e lavandaria. -Rés-do-chão para a zona social. -1º andar com 1 suite, três quartos e casa de banho. LOCALIZAÇÃO O empreendimento Villas Decia, Situado em Leça do Balio É servido pela via Norte e A4. Junto a grandes superfícies comerciais de referência. Está a 5 minutos do centro da Maia e a 10 minutos do Porto, Matosinhos e do Aeroporto Para além deste imóvel, dispomos de mais imóveis que de certeza encaixam naquilo que pretende. Mais informações sobre este ou outro imóvel e marcações de visita, contacte-nos:
AMI: 7142
Ref. Externa: MAD/00717
Id: 1570796
Inicie sessão para guardar este imóvel e aceder à sua lista de favoritos em qualquer dispositivo.
Área de terreno : 1130 m²
Terreno Urbano com PIP aprovado para 1690m2, prevendo a possibilidade de construção de 2 volumes, sendo um volume composto por 5 pisos acima da cota de soleira, ( rch+4) e um outro adjacente mais baixo composto por 3 pisos acima da cota do solo( rch +2), sendo possível neste cenário a criação de 16 fogos habitacionais. A sua proximidade a variados acessos aos centros urbanos, transportes urbanos á porta, bem como a proximidade a todo o tipo de comercio e serviços, faz deste terreno um ponto estratégico para um projeto de habitação multifamiliar. Pontos que se destacam: -A 5 minutos da Circunvalação, VRI, VCI e das várias ás Auto -Estradas, A1; A4 A28;A41... -A 7 minutos do Norte- Shoping / Estação de Metro/ Porto Business Scholl -A 12 minutos da Praia de Matosinhos -A 13 minutos do Polo Universitário Porto/ Hospital de S. João -A 11 minutos do Aeroporto Francisco Sá Carneiro no Porto Para mais informações, entre em contacto connosco! Urban land with PIP approved for 1690m2, providing for the possibility of building 2 volumes, one volume consisting of 5 floors above the ground level, (rch+4) and another adjacent lower one consisting of 3 floors above the ground level (rch +2), making it possible in this scenario to create 16 housing units. Its proximity to various access points to urban centers, urban transport at the doorstep, as well as proximity to all types of commerce and services, makes this land a strategic point for a multi-family housing project. Points that stand out: -5 minutes from the Circunvalação, VRI, VCI and the various motorways, A1; A4 A28;A41... -7 minutes from the North- Shopping / Metro Station/ Porto Business Scholl -12 minutes from Matosinhos Beach -13 minutes from the Porto University Center/ Hospital de S. João -11 minutes from Francisco Sá Carneiro Airport in Porto For more information, contact us! Terrain urbain avec PIP approuvé pour 1690m2, prévoyant la possibilité de construire 2 volumes, un volume composé de 5 étages au dessus du sol, (rch+4) et un autre adjacent inférieur composé de 3 étages au dessus du sol (rch +2 ), permettant dans ce scénario de créer 16 logements. Sa proximité avec différents points d'accès aux centres urbains, les transports urbains à proximité, ainsi que la proximité de tous types de commerces et de services, font de ce terrain un point stratégique pour un projet d'habitation multifamiliale. Points marquants : -5 minutes de la Circunvalação, VRI, VCI et des différentes autoroutes, A1 ; A4A28;A41... -7 minutes du Nord- Shopping / Station de métro/ Porto Business Scholl -12 minutes de la plage de Matosinhos -13 minutes du Centre Universitaire de Porto/Hôpital de S. João -11 minutes de l'aéroport Francisco Sá Carneiro de Porto Pour plus d'informations, contactez-nous!
AMI: 14187
Ref. Externa: MI_SÒL_382
Id: 1564617
Inicie sessão para guardar este imóvel e aceder à sua lista de favoritos em qualquer dispositivo.
Área de terreno : 168 m²
Terreno para construção de moradia em zona sossegada só com moradias, perto do padrão da Légua.
AMI: 8454
Ref. Externa: 02982
Id: 1540074
Inicie sessão para guardar este imóvel e aceder à sua lista de favoritos em qualquer dispositivo.
Área de terreno : 337 m²
Terreno Custoias O loteamento determina construção de cv+ r/c + 4 pisos e considera 2 lojas e oito habitações muito espaçosas (4 T2 e 4 T3). Pode ser alterado para prédio exclusivamente habitacional. Área construtiva 1312.50m2 acima do solo. Estamos ao dispor para todos os esclarecimentos adicionais. . A ESCOLHA ACERTADA . A Escolha Acertada tendo como sócio - gerente Carlos Teixeira, com mais de 25 anos de experiência no mercado Imobiliário, dedica-se à compra, venda e arrendamento de Bens Imóveis. . Somos uma empresa devidamente Legalizada e com todos os requisitos legais assegurando a idoneidade a todos os nossos clientes, possuímos ainda um seguro de atividade protegendo assim todos os intervenientes de qualquer anomalia que possa surgir. . Abrangemos essencialmente os Concelhos do Porto, Matosinhos, Maia, Valongo, Gondomar e Vila do Conde . A Escolha Acertada tem como principio assegurar uma total clareza, transparência e satisfação aos seus intervenientes.
AMI: 5380
Ref. Externa: 11832
Id: 1488918
Inicie sessão para guardar este imóvel e aceder à sua lista de favoritos em qualquer dispositivo.
Área de terreno : 907 m²
Terreno com 907m2 de área em loteamento, urbanização quinta do outeiro, Leça do balio. Área de implantação: 564m2 Área construtiva: 2487m2 Cércea: cave, r/c (comércio) e 3 andares Excelentes acessos à via norte, metro a 10 minuto a pé. Oportunidade de negócio, marque a sua visita! . A ESCOLHA ACERTADA . A Escolha Acertada tendo como sócio - gerente Carlos Teixeira, com mais de 25 anos de experiência no mercado Imobiliário, dedica-se à compra, venda e arrendamento de Bens Imóveis. . Somos uma empresa devidamente Legalizada e com todos os requisitos legais assegurando a idoneidade a todos os nossos clientes, possuímos ainda um seguro de atividade protegendo assim todos os intervenientes de qualquer anomalia que possa surgir. . Abrangemos essencialmente os Concelhos do Porto, Matosinhos, Maia, Valongo, Gondomar e Vila do Conde . A Escolha Acertada tem como principio assegurar uma total clareza, transparência e satisfação aos seus intervenientes.
AMI: 5380
Ref. Externa: 11827
Id: 1482024
Inicie sessão para guardar este imóvel e aceder à sua lista de favoritos em qualquer dispositivo.
Área de terreno : 679 m²
Terreno para construção de moradia. Terreno com ruína para construção de moradia, 3 frentes. Fáceis acessos á Maia, Matosinhos e Porto. Sem projeto.
AMI: 8645
Ref. Externa: CM1011
Id: 1452602
Inicie sessão para guardar este imóvel e aceder à sua lista de favoritos em qualquer dispositivo.
Área de terreno : 540 m²
Lote para Construção de Moradia de Luxo ou Duas Moradias Independentes Descrição do Lote: Localização privilegiada com vista mar e exposição solar total. Lote com 540 m², em zona desafogada, com loteamento aprovado, arruamentos, passeio, infraestruturas concluídas e iluminação pública. Ideal para construção de uma moradia de luxo isolada (CV, RC +1) ou, em alternativa, duas moradias de 3 frentes após reversão de loteamento. Projeto e Infraestruturas: Projeto de arquitetura e especialidades em fase final de aprovação para uma moradia V4 de 4 frentes (CV, RC +1). Área de implantação de 214 m² e área de construção de 500 m². Acessibilidade a partir de duas ruas em níveis diferentes, facilitando a entrada e circulação. Localização: Zona residencial tranquila, rodeada de moradias de alta qualidade. Próximo a serviços essenciais: escolas, supermercados, padarias, transportes públicos (a apenas 220 metros). Fácil acesso à autoestrada A4, situada a cerca de 500 metros. Destaques: Excelente oportunidade para quem busca exclusividade, conforto e uma localização privilegiada. Potencial para construir uma residência de alto padrão ou duas unidades independentes, valorizando ainda mais o investimento. Para mais informações ou agendar uma visita, entre em contato conosco!
AMI: 9721
Ref. Externa: SS1285
Id: 1450311
Inicie sessão para guardar este imóvel e aceder à sua lista de favoritos em qualquer dispositivo.
Área de terreno : 540 m²
Lote para Construção de Moradia de Luxo ou Duas Moradias Independentes Referencia Interna - mat_P251102 Localização privilegiada com vista mar e exposição solar total. Lote com 540 m², em zona desafogada, com loteamento aprovado, arruamentos, passeio, infraestruturas concluídas e iluminação pública. Ideal para construção de uma moradia de luxo isolada (CV, RC +1) ou, em alternativa, duas moradias de 3 frentes após reversão de loteamento. Projeto de arquitetura e especialidades em fase final de aprovação para uma moradia V4 de 4 frentes (CV, RC +1). Área de implantação de 214 m² e área de construção de 500 m². Acessibilidade a partir de duas ruas em níveis diferentes, facilitando a entrada e circulação. Localização: Zona residencial tranquila, rodeada de moradias de alta qualidade. Próximo a serviços essenciais: escolas, supermercados, padarias, transportes públicos (a apenas 220 metros). Fácil acesso à autoestrada A4, situada a cerca de 500 metros. Excelente oportunidade para quem busca exclusividade, conforto e uma localização privilegiada. Potencial para construir uma residência de alto padrão ou duas unidades independentes, valorizando ainda mais o investimento. Para mais informações ou agendar uma visita, entre em contato conosco! Tratamos do financiamento sem qualquer custo! Certificado energético: Isento Área: 540 m2 Valor: 290.000€ Ref: mat_P251102 Marque já a sua visita!! Teremos todo o gosto em ajudar a escolher seu imóvel.
AMI: 14839
Ref. Externa: mat_P251102
Id: 1450285
Inicie sessão para guardar este imóvel e aceder à sua lista de favoritos em qualquer dispositivo.
Área de terreno : 585 m²
Terreno com Viabilidade de Construção – Ponte da Pedra, Porto Frente para 2 ruas | Projeto até R/C + 4 andares | Próximo do Hospital de S. João Excelente oportunidade de investimento em Ponte da Pedra, com viabilidade para construção de edifício habitacional com cave, rés do chão e mais 4 andares, num local com elevada procura e forte valorização. Características do terreno: * Frente com 13 metros para duas ruas * Área total do terreno: 503 m² * Área de implantação: 158 m² * Área bruta de construção: 158 m² * Área bruta dependente: 70 m² * Área bruta privativa: 88 m² Localização privilegiada: * A poucos minutos do Hospital de S. João e do Pólo Universitário * Excelentes acessibilidades à cidade do Porto, VCI e principais vias * Zona consolidada com comércio, serviços, escolas e transportes Imóvel ideal para projeto de habitação multifamiliar ou investimento com elevada rentabilidade, numa zona em contínua expansão. Para mais informações ou agendamento de visita ao local, entre em contacto. Selva de Pedra Imobiliária Let’s find home!
AMI: 16092
Ref. Externa: JA3122025
Id: 1415393
Inicie sessão para guardar este imóvel e aceder à sua lista de favoritos em qualquer dispositivo.
Área de terreno : 2259 m²
Terreno com Viabilidade para Construção em Altura – Ponte da Pedra, Porto Cave + R/C + 4 Andares | 2 Frentes | 2.800 m² de Área Construível Excelente oportunidade de investimento na zona da Ponte da Pedra, com viabilidade de construção para edifício multifamiliar de cave, rés do chão e 4 andares, inserido numa zona urbana consolidada e com forte procura habitacional. Características do terreno: * Área total do terreno: 2.259 m² * Frente com 49,5 metros, com duas frentes de rua * Viabilidade de construção acima do solo: até 2.800 m² * Possibilidade de cave + rés do chão + 4 pisos habitacionais Localização de excelência: * Próximo do Hospital de S. João e do Pólo Universitário * Zona bem servida de transportes públicos, comércio e serviços * Excelentes acessos à cidade do Porto, VCI, Circunvalação e principais vias rápidas Terreno ideal para projeto residencial em altura, com elevada rentabilidade e valorização garantida. Para mais informações ou agendamento de visita, entre em contacto. Selva de Pedra Imobiliária Let’s find home!
AMI: 16092
Ref. Externa: JA3112025
Id: 1415395
Inicie sessão para guardar este imóvel e aceder à sua lista de favoritos em qualquer dispositivo.
Área de terreno : 2960 m²
RO2681 Descubra uma oportunidade única de investimento em Leça do Balio. Trata-se de uma moradia T6 situada num vasto lote de 2.960 m² com enorme potencial de transformação. Possibilidade de reformar a moradia existente ou desenvolver construção em altura (PIP já aprovado/para avançar), maximizando o potencial do terreno. Localização privilegiada, em Leça do Balio, com acesso fácil a uma ampla variedade de serviços, transportes, comércio e lazer. Não perca esta oportunidade de investimento. Para mais informações e agendamento de visita, contacte-nos! A Real Objectiva é uma empresa implantada no norte de Portugal, vocacionada para a venda e arrendamento de imóveis. Fruto dos seus 26 anos de trabalho, pautados pelo rigor e profissionalismo alcançou resultados reconhecidos pelo mercado em que se insere, atuando de forma transversal no mercado habitacional e no mercado industrial. Missão: Praticar um conceito de mediação imobiliária baseada na relação cliente/empresa consolidada pelo papel do consultor especialista e capaz de permitir a superação das expectativas de todos os intervenientes. Posicionamento: - Vendemos casas - Vendemos armazéns, escritórios, lojas e terrenos - Especialistas do mercado imobiliário Princípios de Atuação - Competência - Confidencialidade - Idoneidade - Disponibilidade Modelos de Ação: - Rigor e profissionalismo - Especialistas na angariação e na mediação imobiliária - Estudamos o mercado e propomo-nos a encontrar soluções adequadas - Avaliações rigorosas e alvo de estudo pormenorizado - Cuidado extremo nas visitas
AMI: 3456
Ref. Externa: RO2681
Id: 1393258
Inicie sessão para guardar este imóvel e aceder à sua lista de favoritos em qualquer dispositivo.
Área de terreno : 7902 m²
Identificação do imóvel: ZMPT581142Terreno para construção com 7902m2 sendo uma oportunidade única de investimento em Leça do Balio, Matosinhos.É um terreno com 7.902 m2, estrategicamente localizado, com excelente potencial para desenvolvimento habitacional, com capacidade de edificação para 22 moradias, estando neste momento em estudo um projeto para 8 moradias de 3 frentes e 14 moradias de 2 frentes.Localização:Estação do metro Araújo - 1,3kmVia Norte - 3kmFarmácia Padrão da Légua - 3kmPingo Doce Custóias - 2kmMercadona São Gens - 2,8kmContinente Leça do Balio - 3kmAeroporto - 5,7km3 razões para comprar com a Zome+ acompanhamentoCom uma preparação e experiência única no mercado imobiliário, os consultores Zome põem toda a sua dedicação em dar-lhe o melhor acompanhamento, orientando-o com a máxima confiança, na direção certa das suas necessidades e ambições.Daqui para a frente, vamos criar uma relação próxima e escutar com atenção as suas expectativas, porque a nossa prioridade é a sua felicidade! Porque é importante que sinta que está acompanhado, e que estamos consigo sempre.+ simplesOs consultores Zome têm uma formação única no mercado, ancorada na partilha de experiência prática entre profissionais e fortalecida pelo conhecimento de neurociência aplicada que lhes permite simplificar e tornar mais eficaz a sua experiência imobiliária.Deixe para trás os pesadelos burocráticos porque na Zome encontra o apoio total de uma equipa experiente e multidisciplinar que lhe dá suporte prático em todos os aspetos fundamentais, para que a sua experiência imobiliária supere as expectativas.+ felizO nosso maior valor é entregar-lhe felicidade!Liberte-se de preocupações e ganhe o tempo de qualidade que necessita para se dedicar ao que lhe faz mais feliz.Agimos diariamente para trazer mais valor à sua vida com o aconselhamento fiável de que precisa para, juntos, conseguirmos atingir os melhores resultados.Com a Zome nunca vai estar perdido ou desacompanhado e encontrará algo que não tem preço: a sua máxima tranquilidade!É assim que se vai sentir ao longo de toda a experiência: Tranquilo, seguro, confortável e... FELIZ!Notas:1. Caso seja um consultor imobiliário, este imóvel está disponível para partilha de negócio. Não hesite em apresentar aos seus clientes compradores e fale connosco para agendar a sua visita.2. Para maior facilidade na identificação deste imóvel, por favor, refira o respetivo ID ZMPT ou o respetivo agente que lhe tenha enviado a sugestão.
AMI: 17432
Ref. Externa: ZMPT581142
Id: 1380761
Inicie sessão para guardar este imóvel e aceder à sua lista de favoritos em qualquer dispositivo.
Área de terreno : 230 m²
Identificação do imóvel: ZMPT581018Terreno para Construção – Oportunidade Única em Custóias, MatosinhosConstrua a casa dos seus sonhos a poucos minutos do Porto e das praias de Matosinhos!Este lote urbano de 230 m², localizado na Rua Alves Redol, fica em plena zona residencial tranquila e bem organizada, oferecendo o equilíbrio perfeito entre conforto e acessibilidade.Principais Características- Área de implantação: 90 m²- Área bruta de construção: 180 m²- Área dependente: 90 m²- Área total do lote 230 m²- Frente para a rua, com excelente exposição solar e acesso facilitado.* Imagem da moradia meramente ilustrativa de possibilidade, sem caráter vinculativo nem contratualLocalização Privilegiada- Apenas 20 minutos a pé da estação de Metro, garantindo ligação rápida ao centro do Porto e a toda a rede de transportes.- Próximo de escolas, supermercados, farmácias e restauração.- A poucos minutos do centro de Matosinhos e com acessos diretos à A4 e A28.- 15min a pé da estação dos comboiosPerfeito para quem procura construir uma moradia moderna ou investir num projeto habitacional com forte potencial de valorização.Não deixe escapar esta oportunidade! Agende já a sua visita e descubra todo o potencial deste terreno.3 razões para comprar com a Zome+ acompanhamentoCom uma preparação e experiência única no mercado imobiliário, os consultores Zome põem toda a sua dedicação em dar-lhe o melhor acompanhamento, orientando-o com a máxima confiança, na direção certa das suas necessidades e ambições.Daqui para a frente, vamos criar uma relação próxima e escutar com atenção as suas expectativas, porque a nossa prioridade é a sua felicidade! Porque é importante que sinta que está acompanhado, e que estamos consigo sempre.+ simplesOs consultores Zome têm uma formação única no mercado, ancorada na partilha de experiência prática entre profissionais e fortalecida pelo conhecimento de neurociência aplicada que lhes permite simplificar e tornar mais eficaz a sua experiência imobiliária.Deixe para trás os pesadelos burocráticos porque na Zome encontra o apoio total de uma equipa experiente e multidisciplinar que lhe dá suporte prático em todos os aspetos fundamentais, para que a sua experiência imobiliária supere as expectativas.+ felizO nosso maior valor é entregar-lhe felicidade!Liberte-se de preocupações e ganhe o tempo de qualidade que necessita para se dedicar ao que lhe faz mais feliz.Agimos diariamente para trazer mais valor à sua vida com o aconselhamento fiável de que precisa para, juntos, conseguirmos atingir os melhores resultados.Com a Zome nunca vai estar perdido ou desacompanhado e encontrará algo que não tem preço: a sua máxima tranquilidade!É assim que se vai sentir ao longo de toda a experiência: Tranquilo, seguro, confortável e... FELIZ!Notas:1. Caso seja um consultor imobiliário, este imóvel está disponível para partilha de negócio. Não hesite em apresentar aos seus clientes compradores e fale connosco para agendar a sua visita.2. Para maior facilidade na identificação deste imóvel, por favor, refira o respetivo ID ZMPT ou o respetivo agente que lhe tenha enviado a sugestão.
AMI: 17432
Ref. Externa: ZMPT581018
Id: 1375658
Inicie sessão para guardar este imóvel e aceder à sua lista de favoritos em qualquer dispositivo.
Área de terreno : 1167 m²
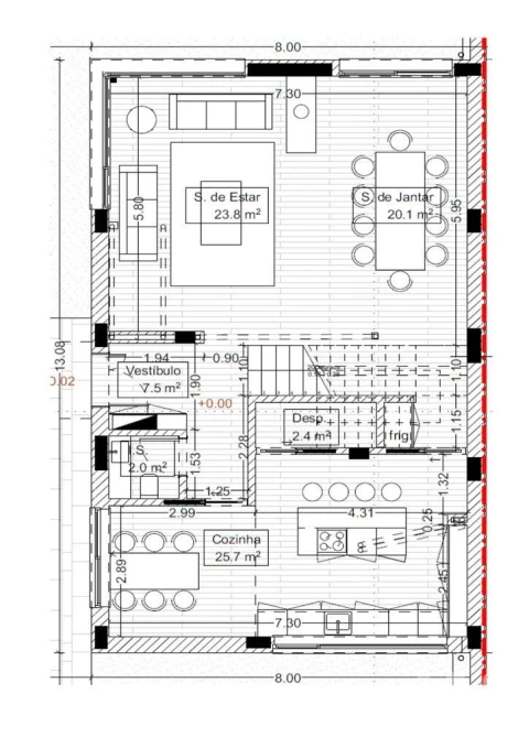
Conjunto moradias devolutas com terreno, Zona ARU S. Mamede Infesta. Investimento com potencial.Apresentamos este conjunto de moradias devolutas e terreno urbano, composto de 4 artigos que perfaz a área total de 1.167 m², localizado em São Mamede de Infesta, uma zona em crescimento contínuo, ideal para investidores e promotores imobiliários que procuram projetos com retorno garantido.Inserido em zona ARU com todos os benefícios fiscais inerentesConstrução anterior a 1951Características do terrenoConstituído por 4 artigos urbanosÁrea total: 1.167 m²Viabilidade para reabilitação urbana de 350 m², permitindo a reconstrução da mancha existente com 8 ou 9 apartamentos T0, com cerca de 35 m² cadaNa área restante de 350 m2, cumprindo a área de afastamento de 3 m pode funcionar como condomínio fechado, permitindo a construção de vários T0, ou dois T1, um T2 ou um T3Possibilidade de estacionamento para cada fração habitacional da construção nova (T1, T2 ou T3)Envolvente e LocalizaçãoSituado numa zona residencial calma, mas com excelente acessibilidade, este terreno encontra-se próximo deHospital de São JoãoPólo UniversitárioEstação de Metro e autocarrosAcesso rápido à A3, A4 e Via NorteComércio, serviços, escolas e zonas verdes nas proximidadesIdeal paraProjeto habitacional, para arrendamento (estudantes/profissionais)Empreendimento de alojamento local ou colivingPromoção imobiliária com várias tipologiasRetorno sobre investimento (ROI de 20% anual)Preço negociável.Não perca esta oportunidade!Fale comigo e saiba mais sobre este projeto com elevado potencial de valorização.Predimed Imobiliária, Mediação Imobiliária, Lda.Avenida Brasil 43, 12º Andar, 1700-062 LisboaLicença AMI nº 22503Pessoa Coletiva nº 517 239 345Seguro Responsabilidade Civil: Nº de Apólice RC65379424 Fidelidade Características: Aeroporto;Áreas de Lazer Infantil;Auto-Estrada;Banco;Bombeiros;Centro Comercial;Centro da Cidade;Escola;Espaços Verdes;Farmácia;Ginásio;Hipermercado;Hospital;Mercado;Metro;Orientação Solar;Polícia;Posto de Combustível;Praça Táxis;Transportes Públicos;Vista para Cidade;Zona Comercial
AMI: 13558
Ref. Externa: 054277
Id: 1316499
Inicie sessão para guardar este imóvel e aceder à sua lista de favoritos em qualquer dispositivo.
Estes agentes são especialistas nesta zona:
Inicie sessão para ocultar este imóvel das suas pesquisas e manter a sua lista de resultados organizada.
Guardar favoritos
Este imóvel foi guardados nos seus favoritos com sucesso.
Para poder guardar pesquisa deverá ter a sua sessão iniciada.
Caso não tenha uma conta, deverá criar uma.
A sua pesquisa foi guardada com sucesso!
© Copyright 2023 | CASACERTA. All rights reserved
Este site utiliza cookies. Ao navegar no site estará a consentir a sua utilização.
Para mais informações sobre os cookies pode consultar a
política de privacidade.