Terreno para Venda em Albergaria-A-Velha e Valmaior
75.000 €
Tipo
Terreno
Negócio
Venda
Condição
Em projecto
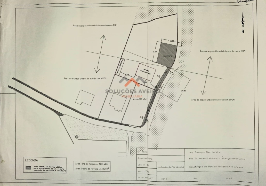
Área do Terreno
2167 m²
Terreno Urbano Centro da Cidade
Oportunidade Rara - Dois Terrenos Urbanos com Privacidade Absoluta e Vista para a Natureza - Albergaria-a-Velha
Apresentamos uma oportunidade verdadeiramente única para quem procura tranquilidade, privacidade e uma ligação privilegiada à natureza. São dois terrenos urbanos individuais, lado a lado, totalmente murados e localizados no final de uma rua calma, charmosa e praticamente sem trânsito um verdadeiro refúgio a poucos minutos do centro de Albergaria-a-Velha.
Com uma vista relaxante para a floresta e um ambiente envolvente verde e silencioso, estes lotes oferecem o cenário perfeito para construir a sua casa de sonho ou desenvolver um projeto de investimento com total privacidade.
Destaques que tornam estes terrenos únicos:
Dois últimos lotes urbanos da rua privacidade incomparável e sem risco de futuras construções laterais.
Furo de água próprio com motor elétrico, garantindo autonomia e conforto.
Ligação imediata disponível à água da rede pública.
Eletricidade pronta a ativar, apenas necessita de colocar em seu nome.
Terreno com árvores de fruto (laranjeiras, tangerineiras, figueiras, limoeiros) em plena produção.
A poucos minutos do centro de Albergaria-a-Velha e a apenas 15-20 minutos de Aveiro.
Um local ideal para quem deseja construir com espaço, privacidade e qualidade de vida.
Detalhes dos Lotes:
Lote 1
Tipo: Lote de construção
Área total: 467 m²
Área de construção: 180 m²
Lote 2
Tipo: Lote de construção
Área total: 1.700 m²
Área de construção: 180 m²
Área total conjunta dos dois lotes: 2.167 m²
Condição Especial - Aquisição Conjunta
A solução mais vantajosa, seja para usufruto próprio, construção de duas moradias ou investimento de futuro.
Privacidade, natureza e excelente localização tudo num só lugar.
Se procura um espaço único para viver ou investir, esta é uma oportunidade que não aparece todos os dias.
Agende já a sua visita e descubra todo o potencial destes terrenos!
Apresentamos uma oportunidade verdadeiramente única para quem procura tranquilidade, privacidade e uma ligação privilegiada à natureza. São dois terrenos urbanos individuais, lado a lado, totalmente murados e localizados no final de uma rua calma, charmosa e praticamente sem trânsito um verdadeiro refúgio a poucos minutos do centro de Albergaria-a-Velha.
Com uma vista relaxante para a floresta e um ambiente envolvente verde e silencioso, estes lotes oferecem o cenário perfeito para construir a sua casa de sonho ou desenvolver um projeto de investimento com total privacidade.
Destaques que tornam estes terrenos únicos:
Dois últimos lotes urbanos da rua privacidade incomparável e sem risco de futuras construções laterais.
Furo de água próprio com motor elétrico, garantindo autonomia e conforto.
Ligação imediata disponível à água da rede pública.
Eletricidade pronta a ativar, apenas necessita de colocar em seu nome.
Terreno com árvores de fruto (laranjeiras, tangerineiras, figueiras, limoeiros) em plena produção.
A poucos minutos do centro de Albergaria-a-Velha e a apenas 15-20 minutos de Aveiro.
Um local ideal para quem deseja construir com espaço, privacidade e qualidade de vida.
Detalhes dos Lotes:
Lote 1
Tipo: Lote de construção
Área total: 467 m²
Área de construção: 180 m²
Lote 2
Tipo: Lote de construção
Área total: 1.700 m²
Área de construção: 180 m²
Área total conjunta dos dois lotes: 2.167 m²
Condição Especial - Aquisição Conjunta
A solução mais vantajosa, seja para usufruto próprio, construção de duas moradias ou investimento de futuro.
Privacidade, natureza e excelente localização tudo num só lugar.
Se procura um espaço único para viver ou investir, esta é uma oportunidade que não aparece todos os dias.
Agende já a sua visita e descubra todo o potencial destes terrenos!
Localização
Albergaria-A-Velha e Valmaior, Albergaria-a-Velha, Aveiro
Informação do anúncio
ID do anúncio
1505047
Referência Externa
6687
Atualizado em
21/02/2026 10:30:14
Anunciante
Chamada para a rede fixa nacional
Dinis Amorim Unipessoal, Lda.
AMI 11283
Referência do imóvel:
6687
Consultor
Soluções Aveiro
Terreno para Venda em Albergaria-A-Velha e Valmaior
Vídeo