Armazém para Venda em Vila de Cucujães
750.000 €
Tipo
Armazém
Negócio
Venda
Ano de Construção
2027
Área Bruta
1619 m²
Área Útil
1618 m²
Condição
Usado
Certificado Energético
E
Área do Terreno
1618 m²
Armazém novo e moderno em Vila de Cucujães
RO2836
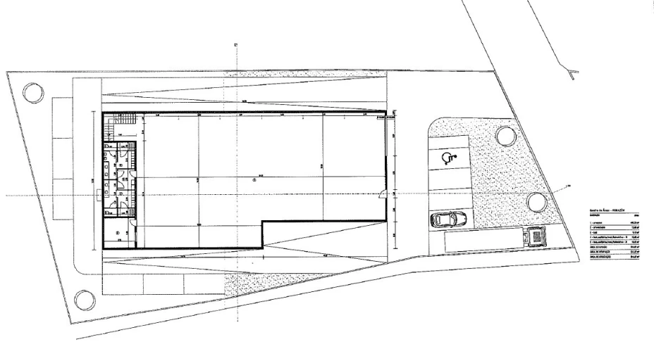
Com uma área de implantação de 600 m², inserido num terreno de 1.618 m², este espaço destaca-se pelo seu excelente pé-direito de 7 metros, permitindo grande versatilidade de utilização, desde armazenamento a atividades industriais ou logísticas.
O imóvel será entregue equipado com instalações sanitárias, balneários e conta ainda com um amplo logradouro murado, proporcionando segurança, privacidade e facilidade de circulação e manobra de viaturas.
Localizado em zona estratégica, com ótimos acessos, em Cucujães, Oliveira de Azeméis, beneficia de uma envolvente que facilita a ligação a importantes vias rodoviárias, tornando-o uma escolha acertada para o crescimento do seu negócio.
Conclusão prevista para junho de 2027.
Valor acrescido de IVA.
Uma oportunidade única de investir num espaço moderno, funcional e preparado para o futuro!
A Real Objectiva é uma empresa implantada no norte de Portugal, vocacionada para a venda e arrendamento de imóveis. Fruto dos seus 26 anos de trabalho, pautados pelo rigor e profissionalismo alcançou resultados reconhecidos pelo mercado em que se insere, atuando de forma transversal no mercado habitacional e no mercado industrial.
Missão:
Praticar um conceito de mediação imobiliária baseada na relação cliente/empresa consolidada pelo papel do consultor especialista e capaz de permitir a superação das expectativas de todos os intervenientes.
Posicionamento:
Vendemos casas
Vendemos armazéns, escritórios, lojas e terrenos
Especialistas do mercado imobiliário
Princípios de Atuação:
Competência
Confidencialidade
Idoneidade
Disponibilidade
Modelos de Ação:
Rigor e profissionalismo
Especialistas na angariação e na mediação imobiliária
Estudamos o mercado e propomo-nos a encontrar soluções adequadas
Avaliações rigorosas e alvo de estudo pormenorizado
Cuidado extremo nas visitas
Com uma área de implantação de 600 m², inserido num terreno de 1.618 m², este espaço destaca-se pelo seu excelente pé-direito de 7 metros, permitindo grande versatilidade de utilização, desde armazenamento a atividades industriais ou logísticas.
O imóvel será entregue equipado com instalações sanitárias, balneários e conta ainda com um amplo logradouro murado, proporcionando segurança, privacidade e facilidade de circulação e manobra de viaturas.
Localizado em zona estratégica, com ótimos acessos, em Cucujães, Oliveira de Azeméis, beneficia de uma envolvente que facilita a ligação a importantes vias rodoviárias, tornando-o uma escolha acertada para o crescimento do seu negócio.
Conclusão prevista para junho de 2027.
Valor acrescido de IVA.
Uma oportunidade única de investir num espaço moderno, funcional e preparado para o futuro!
A Real Objectiva é uma empresa implantada no norte de Portugal, vocacionada para a venda e arrendamento de imóveis. Fruto dos seus 26 anos de trabalho, pautados pelo rigor e profissionalismo alcançou resultados reconhecidos pelo mercado em que se insere, atuando de forma transversal no mercado habitacional e no mercado industrial.
Missão:
Praticar um conceito de mediação imobiliária baseada na relação cliente/empresa consolidada pelo papel do consultor especialista e capaz de permitir a superação das expectativas de todos os intervenientes.
Posicionamento:
Vendemos casas
Vendemos armazéns, escritórios, lojas e terrenos
Especialistas do mercado imobiliário
Princípios de Atuação:
Competência
Confidencialidade
Idoneidade
Disponibilidade
Modelos de Ação:
Rigor e profissionalismo
Especialistas na angariação e na mediação imobiliária
Estudamos o mercado e propomo-nos a encontrar soluções adequadas
Avaliações rigorosas e alvo de estudo pormenorizado
Cuidado extremo nas visitas
Localização
Vila de Cucujães, Oliveira de Azemeis, Aveiro
Informação do anúncio
ID do anúncio
1789263
Referência Externa
RO2836
Atualizado em
17/04/2026 13:43:33
Armazém para Venda em Vila de Cucujães
Vídeo
Armazém para Venda em Vila de Cucujães